Vodice – Moderne Doppelhaushälfte S2, 1300 m vom Strand entf... Vodice – Moderne Doppelhaushälfte S2, 1300 m vom Strand entfernt

450.000 €

Ausstattung
  • 138 m2
  • 4
  • 2
Lage

VODICE

Beschreibung
Vodice – modernes Doppelhaus S2 in ruhiger Lage

Im Angebot steht ein attraktiver Neubau in Vodice – ein modernes Doppelhaus, das erstklassige Bauqualität, funktionalen Grundriss und Privatsphäre vereint, ideal zum Wohnen oder als Investition.

Gelegen an einer ruhigen und angenehmen Lage bietet diese Immobilie die perfekte Balance zwischen Entspannung und Nähe zu allen Annehmlichkeiten – nur 1.300 m vom Strand und 1.100 m vom Zentrum entfernt.

Qualität und Ausstattung ohne Kompromisse:

- moderne Fassade (Styropor 8 cm) für optimale Isolierung
- PVC-Tischlerei mit elektrischen Rollläden und Fliegengittern
- Klimaanlagen in allen wichtigen Räumen
- Fußbodenheizung im Wohnzimmer und in den Badezimmern
- gepflegter Garten und zwei Parkplätze

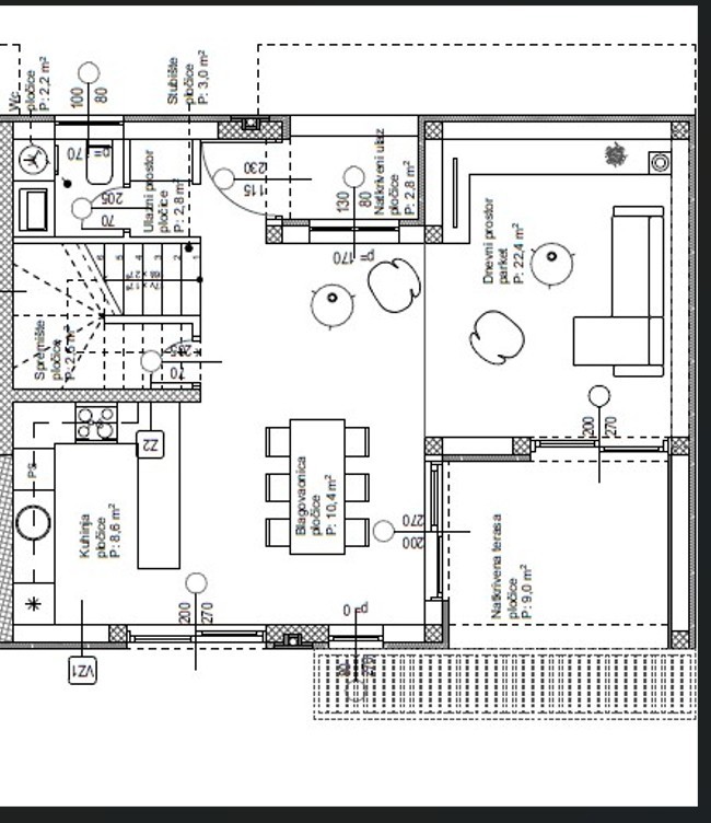
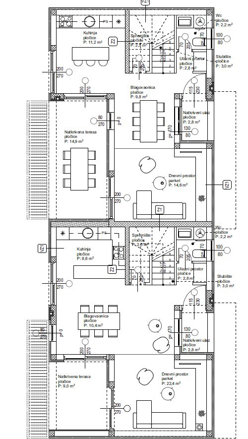
Haus S2 – Funktionalität und Komfort

138,98 m2 | 2 Etagen | 450.000 €

Eine ausgezeichnete Wahl für Familien oder als Investition für touristische Vermietung.

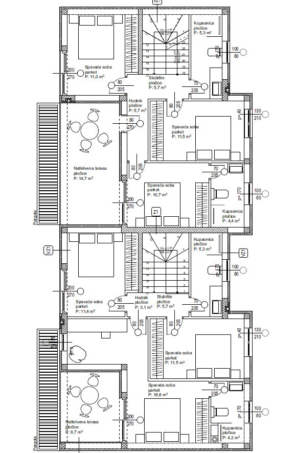
Das Erdgeschoss ist als offener Wohnbereich mit Zugang zur Terrasse und zum Garten gestaltet, während sich im Obergeschoss drei Schlafzimmer befinden, darunter das Hauptschlafzimmer mit eigenem Bad und Ankleidezimmer.

Haus S1 – mehr Platz, mehr Luxus

186,78 m2 | 3 Etagen | 550.000 €

Die perfekte Wahl für diejenigen, die zusätzlichen Komfort und Luxus wünschen.

Das Erdgeschoss bietet ein offenes Konzept mit Küche, Essbereich und Wohnzimmer mit Zugang zur überdachten Terrasse – ideal für geselliges Beisammensein und Entspannung am Pool.

Im Obergeschoss befinden sich drei Schlafzimmer, darunter das Hauptschlafzimmer mit eigenem Bad, während Sie im obersten Stockwerk eine großzügige Terrasse von 67,72 m2 erwartet – perfekt für eine Lounge-Zone, Sonnenbaden oder abendliche Treffen mit Blick auf den Sonnenuntergang.

Diese Immobilie stellt eine hervorragende Gelegenheit für alle dar, die ein modernes Zuhause in ruhiger Lage suchen, sowie eine sichere Investition in der attraktiven Region Vodice.

Übersicht
  • Typ: Haus
  • Fläche: 138 m2
  • Grundstücksfläche: / m2
  • Zimmer: 4 Zimmer
  • Badezimmer: 2 Zimmer
  • Parkplätze: /
  • Parkplatz: 24
  • Garage: /
  • Stockwerk: /
  • Immobilienansicht: /
  • Energieklasse: /
  • Anzahl der Aufrufe: /
Immobiliendetails
Typ
Haus
Fläche
138 m2
Grundstücksfläche
/ m2
Zimmer
4 Zimmer
Badezimmer
2 Zimmer
Parkplätze
/
Parkplatz
24
Garage
/
Stockwerk
/
Immobilienansicht
/
Energieklasse
/
Anzahl der Aufrufe
/
Kartenansicht
  • Ort
    VODICE
  • Region
    ŠIBENSKO-KNINSKA
Agenturinfo
Naš Dom
Verkäufer kontaktieren
Naš Dom
Hrvoje Zurak
+
=