Vodice – Dvojna kuća S1 mit Pool und Dachterrasse Vodice – Dvojna kuća S1 mit Pool und Dachterrasse

550.000 €

Ausstattung
  • 186 m2
  • 4
  • 2
Lage

VODICE

Beschreibung
Vodice – moderne Doppelhaushälfte S1 mit Pool in ruhiger Lage

Im Angebot steht ein attraktiver Neubau in Vodice – eine moderne Doppelhaushälfte, die erstklassige Bauqualität, funktionalen Grundriss und Privatsphäre vereint, ideal zum Wohnen oder als Investition.

Gelegen an einer ruhigen und angenehmen Lage bietet diese Immobilie die perfekte Balance zwischen Entspannung und Nähe zu allen Annehmlichkeiten – nur 1.300 m vom Strand und 1.100 m vom Zentrum entfernt.

Ein besonderes Highlight dieser Immobilie ist der eigene Pool, großzügige Terrassen und die südwestliche Ausrichtung, die den ganzen Tag über reichlich natürliches Licht garantiert.

Qualität und Ausstattung ohne Kompromisse:

- moderne Fassade (Styropor 8 cm) für optimale Dämmung
- PVC-Fenster mit elektrischen Rollläden und Fliegengittern
- Klimaanlagen in allen wichtigen Räumen
- Fußbodenheizung im Wohnzimmer und in den Badezimmern
- privater Pool (26,25 m2)
- gepflegter Garten und zwei Parkplätze

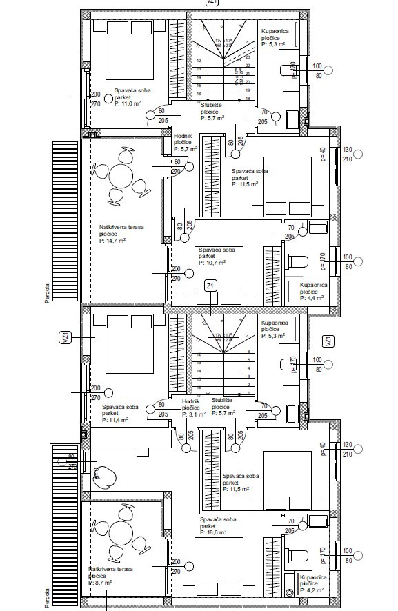
Haus S1 – mehr Raum, mehr Luxus

186,78 m2 | 3 Etagen | 550.000 €

Die perfekte Wahl für alle, die zusätzlichen Komfort und Luxus wünschen.

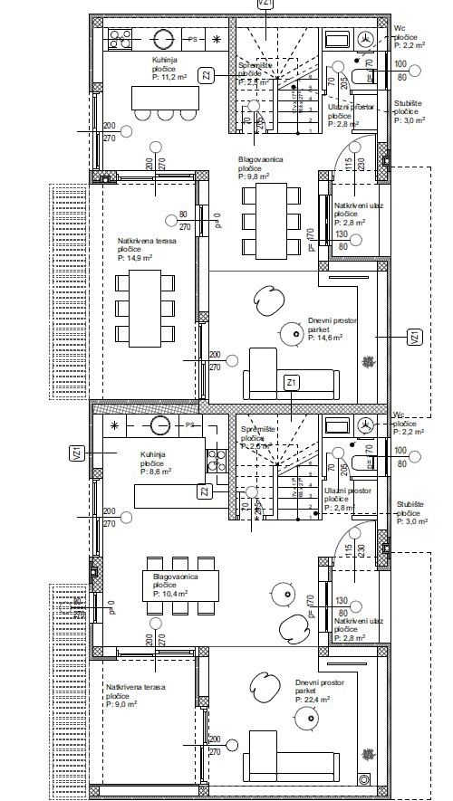
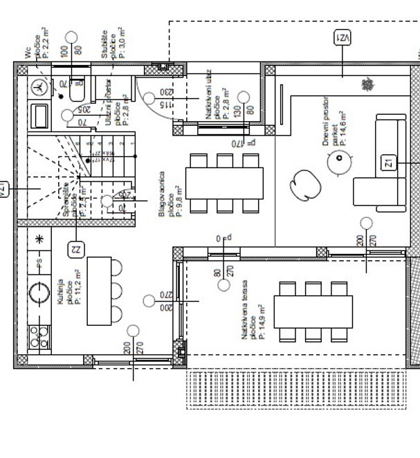
Das Erdgeschoss bietet ein offenes Konzept mit Küche, Essbereich und Wohnzimmer mit Zugang zur überdachten Terrasse – ideal für geselliges Beisammensein und Entspannung am Pool.

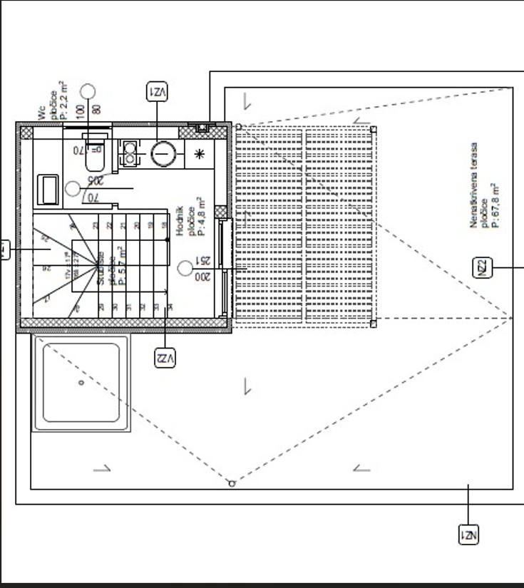
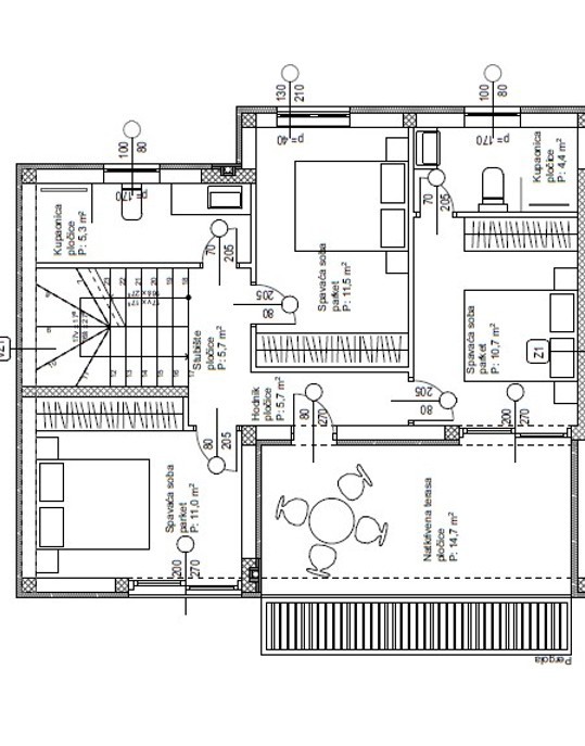
Im Obergeschoss befinden sich drei Schlafzimmer, darunter das Hauptschlafzimmer mit eigenem Bad, während Sie im Dachgeschoss eine großzügige Terrasse von 67,72 m2 erwartet – perfekt als Lounge-Bereich, zum Sonnenbaden oder für abendliche Treffen mit Blick auf den Sonnenuntergang.

Haus S2 – Funktionalität und Komfort

138,98 m2 | 2 Etagen | 450.000 €

Eine ausgezeichnete Wahl für Familien oder als Investition für touristische Vermietung.

Das Erdgeschoss ist als offener Wohnbereich mit Zugang zur Terrasse und zum Garten gestaltet, während sich im Obergeschoss drei Schlafzimmer befinden, darunter das Hauptschlafzimmer mit eigenem Bad und Ankleideraum.

Diese Immobilie stellt eine hervorragende Gelegenheit für alle dar, die ein modernes Zuhause in ruhiger Lage suchen, aber auch eine sichere Investition in der attraktiven Region Vodice.

Übersicht
  • Typ: Haus
  • Fläche: 186 m2
  • Grundstücksfläche: / m2
  • Zimmer: 4 Zimmer
  • Badezimmer: 2 Zimmer
  • Parkplätze: /
  • Parkplatz: 24
  • Garage: /
  • Stockwerk: /
  • Immobilienansicht: aufs Meer
  • Energieklasse: /
  • Anzahl der Aufrufe: /
Immobiliendetails
Typ
Haus
Fläche
186 m2
Grundstücksfläche
/ m2
Zimmer
4 Zimmer
Badezimmer
2 Zimmer
Parkplätze
/
Parkplatz
24
Garage
/
Stockwerk
/
Immobilienansicht
aufs Meer
Energieklasse
/
Anzahl der Aufrufe
/
Kartenansicht
  • Ort
    VODICE
  • Region
    ŠIBENSKO-KNINSKA
Agenturinfo
Naš Dom
Verkäufer kontaktieren
Naš Dom
Hrvoje Zurak
+
=