Vodice - Reihenhaus S1, Pool, Meerblick - NEUBAU Vodice - Reihenhaus S1, Pool, Meerblick - NEUBAU

540.000 €

Ausstattung
  • 168 m2
  • 4
  • 3
Lage

VODICE

Beschreibung
Vodice-**NEUBAU** Luxus-Reihenhäuser mit Swimmingpools und Meerblick werden zum Verkauf angeboten. Das Haus moderner Architektur wird aus hochwertigen Materialien gebaut und nach dem neuesten Baustandard ausgestattet. Zur Ausstattung gehören:

- Styropor-Fassade,
- PVC-Tischlerei,
- elektrisch betriebene Rollläden,
- Hebeschiebetüren,
- keramische Bodenbeläge in Badezimmern, Küche und Wohnzimmer,
- Laminat in den Schlafzimmern,
- moderne Badezimmereinrichtungen,
- elektrischer Warmwasserboiler,
- INVERTER-Klimaanlage Heizung/Kühlung in Schlafzimmern und Wohnzimmer,
- Fußbodenheizung mit Wärmepumpe,
- Videoüberwachung...

Jedes Haus verfügt über einen Pool, einen entsprechenden Gartenbereich und zwei Parkplätze. Der geplante Baubeginn ist im September 2025, die geplante Fertigstellung im Sommer 2026.

Das Objekt befindet sich in einer ruhigen Lage mit herrlichem Meerblick und Umgebung, 650 m vom Strand und 1100 m vom Zentrum von Vodice entfernt.

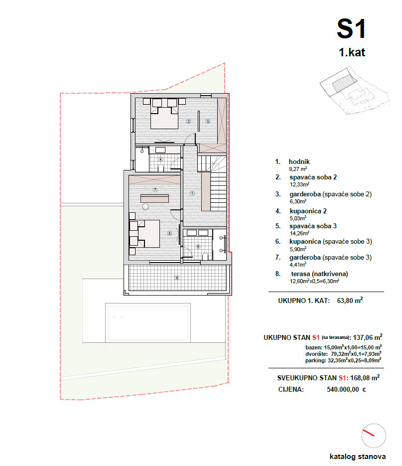
Das Haus S1 mit einer Gesamt-Nettofläche von 137,06 m² besteht aus zwei Etagen: Erdgeschoss + Obergeschoss. Das Erdgeschoss mit einer Nettofläche von 73,26 m² besteht aus Eingangsbereich, Badezimmer, Schlafzimmer, Küche mit Essbereich und offenem Wohnzimmer mit Ausgang zur überdachten Terrasse von 14,20 m², an die sich ein Pool mit 15 m² anschließt. Über eine Innentreppe gelangt man in das Obergeschoss mit einer Nettofläche von 63,80 m², das aus Flur, Schlafzimmer mit Ankleide, Badezimmer sowie Master-Schlafzimmer mit Ankleide und eigenem Badezimmer sowie überdachter Terrasse von 12,60 m² besteht. Zum Apartment gehören außerdem ein Hof/Garten mit 79,32 m² und ein Parkplatz mit 32,35 m². PREIS: 540.000,00 €

WEITERE VERFÜGBARE OBJEKTE:

​​​​Haus S2 mit einer Gesamt-Nettofläche von 193,67 m² besteht aus drei Etagen: Erdgeschoss + Obergeschoss + Dachterrasse. Das Erdgeschoss mit einer Nettofläche von 75,04 m² umfasst Eingangsbereich, Badezimmer, Schlafzimmer, Küche mit Essbereich und offenem Wohnzimmer mit Ausgang zur überdachten Terrasse von 13,18 m², an die sich ein Pool mit 15 m² anschließt. Über eine Innentreppe gelangt man in das Obergeschoss mit einer Nettofläche von 67,55 m², das aus Flur, Schlafzimmer, Badezimmer sowie Master-Schlafzimmer mit Ankleide und eigenem Badezimmer sowie überdachter Terrasse von 12,60 m² besteht. Über eine weitere Innentreppe gelangt man in das oberste Geschoss, das aus Flur und Dachterrasse mit einer Gesamt-Nettofläche von 21,63 m² besteht, welche überdachte und nicht überdachte Bereiche umfasst. Zum Apartment gehören außerdem ein Hof/Garten mit 50,93 m² und ein Parkplatz mit 37,43 m². PREIS: 635.000,00 €

Haus S3 mit einer Gesamt-Nettofläche von 204,04 m² besteht aus drei Etagen: Erdgeschoss, Obergeschoss und Dachterrasse mit Dachhaus. Das Erdgeschoss mit einer Nettofläche von 78,17 m² umfasst Eingang, Eingangsbereich, Abstellraum, Badezimmer, Schlafzimmer, Küche mit Essbereich und offenem Wohnzimmer mit Ausgang zur überdachten Terrasse von 12,14 m², an die sich ein Pool mit 15 m² und Garten anschließt. Über eine Innentreppe gelangt man in das Obergeschoss, das aus Flur, Badezimmer, Schlafzimmer mit Ausgang zur nicht überdachten Terrasse von 4,60 m² sowie Master-Schlafzimmer mit Badezimmer und Ausgang zur überdachten Terrasse von 10,67 m² besteht. Über eine weitere Innentreppe gelangt man in die zweite Etage des Hauses, die aus Flur, überdachter Terrasse von 9,70 m² und nicht überdachter Terrasse von 66,30 m² besteht. Zum Haus gehören außerdem ein Garten/Hof mit 87,31 m² und ein Parkplatz mit 34,56 m². PREIS: 660.000,00 €

Übersicht
  • Typ: Haus
  • Fläche: 168 m2
  • Grundstücksfläche: / m2
  • Zimmer: 4 Zimmer
  • Badezimmer: 3 Zimmer
  • Parkplätze: /
  • Parkplatz: 24
  • Garage: /
  • Stockwerk: /
  • Immobilienansicht: aufs Meer
  • Energieklasse: 2
  • Anzahl der Aufrufe: /
Immobiliendetails
Typ
Haus
Fläche
168 m2
Grundstücksfläche
/ m2
Zimmer
4 Zimmer
Badezimmer
3 Zimmer
Parkplätze
/
Parkplatz
24
Garage
/
Stockwerk
/
Immobilienansicht
aufs Meer
Energieklasse
2
Anzahl der Aufrufe
/
Kartenansicht
  • Ort
    VODICE
  • Region
    ŠIBENSKO-KNINSKA
Agenturinfo
Naš Dom
Verkäufer kontaktieren
Naš Dom
Hrvoje Zurak
+
=