Vodice - Luxuswohnung S2 mit Garten, nur 50 m vom Strand ent... Vodice - Luxuswohnung S2 mit Garten, nur 50 m vom Strand entfernt

320.000 €

Ausstattung
  • 79 m2
  • 3
  • 1
Lage

VODICE

Beschreibung
Zum Verkauf steht eine luxuriöse Wohnung S2 im Erdgeschoss eines hochwertigen Neubaus, nur 50 Meter vom Blauen Strand und 500 Meter vom Stadtzentrum entfernt. Ideale Immobilie für Urlaub, ruhiges Familienleben oder als Investition für touristische Vermietung.

Gebäude im Bau – Baubeginn: April 2025.
Geplante Bezugsfertigkeit: Sommer 2026.
Insgesamt 9 Wohneinheiten – ruhige und angenehme Nachbarschaft
Bau nach neuesten Standards



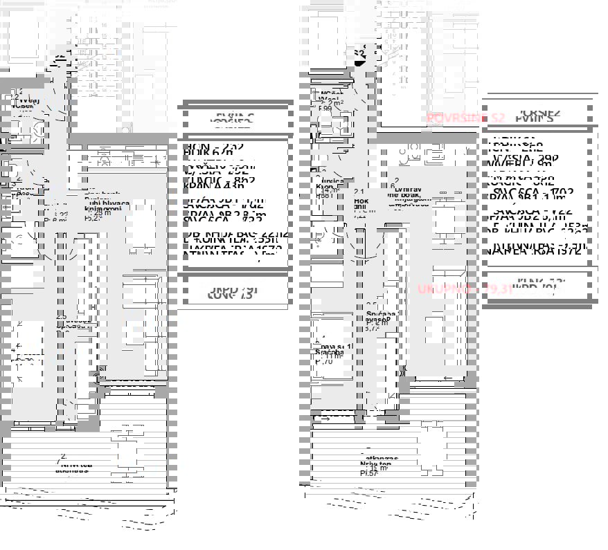
Die Wohnung S2 befindet sich im Erdgeschoss, südlich ausgerichtet, und besteht aus: Flur, WC/Waschraum, Badezimmer, zwei Schlafzimmern, Wohnzimmer, Küche und Essbereich, überdachter Terrasse, Garten (privater Grünbereich) sowie eigenem Stellplatz. Der Preis der Wohnung S2 beträgt 320.000 € (inkl. MwSt.)

Technische Beschreibung und Ausstattung:

AUFZUG

Außenfenster und Eingangstüren: Gealan PVC
Innere Türen: weiß, Höhe 225 cm
Böden: Keramikfliesen MARAZZI (Küche, Wohnzimmer, Zimmer, Terrasse, Badezimmer)

Badezimmer ausgestattet mit:

- Armaturen Hansgrohe


- Duschsystem IBOX HANSGROHE


- Hänge-WC


- Unterputz-Spülkasten Grohe


- Waschbecken


- Duschwanne und Kabine Nord


- Boiler 80 l



Heizung und Kühlung:

- Klimaanlage im Wohnzimmer


- Klimaanlage in jedem Schlafzimmer


- Marke LG oder Gree


- Fußbodenheizung im Badezimmer, Wohnzimmer und Flur



Zusätzliche Ausstattung:

- Mückengitter an allen Fenstern


- Elektrische Rollladenheber in der gesamten Wohnung



WEITERE VERFÜGBARE EINHEITEN :

- S1 - VERKAUFT
- S2 - Zweizimmerwohnung im Erdgeschoss | 79,31 m2 | 320.000 €
- S3 - VERKAUFT
- S4 - Zweizimmerwohnung im ersten Stock | 97,55 m2 | 430.000 €
- S5 VERKAUFT
- S6 VERKAUFT
- S7 - Zweizimmerwohnung im zweiten Stock | 97,52 m2 | 445.000 €
- S8 - VERKAUFT
- S9 VERKAUFT

Übersicht
  • Typ: Wohnung
  • Fläche: 79 m2
  • Grundstücksfläche: / m2
  • Zimmer: 3 Zimmer
  • Badezimmer: 1 Zimmer
  • Parkplätze: /
  • Parkplatz: 12
  • Garage: /
  • Stockwerk: /
  • Immobilienansicht: /
  • Energieklasse: /
  • Anzahl der Aufrufe: /
Immobiliendetails
Typ
Wohnung
Fläche
79 m2
Grundstücksfläche
/ m2
Zimmer
3 Zimmer
Badezimmer
1 Zimmer
Parkplätze
/
Parkplatz
12
Garage
/
Stockwerk
/
Immobilienansicht
/
Energieklasse
/
Anzahl der Aufrufe
/
Kartenansicht
  • Ort
    VODICE
  • Region
    ŠIBENSKO-KNINSKA
Agenturinfo
Naš Dom
Verkäufer kontaktieren
Naš Dom
Hrvoje Zurak
+
=