Vodice - S4 Maisonette-Wohnung mit Dachterrasse 750 m vom St... Vodice - S4 Maisonette-Wohnung mit Dachterrasse 750 m vom Strand entfernt

306.348 €

Ausstattung
  • 109 m2
  • 4
  • 2
Lage

VODICE

Beschreibung
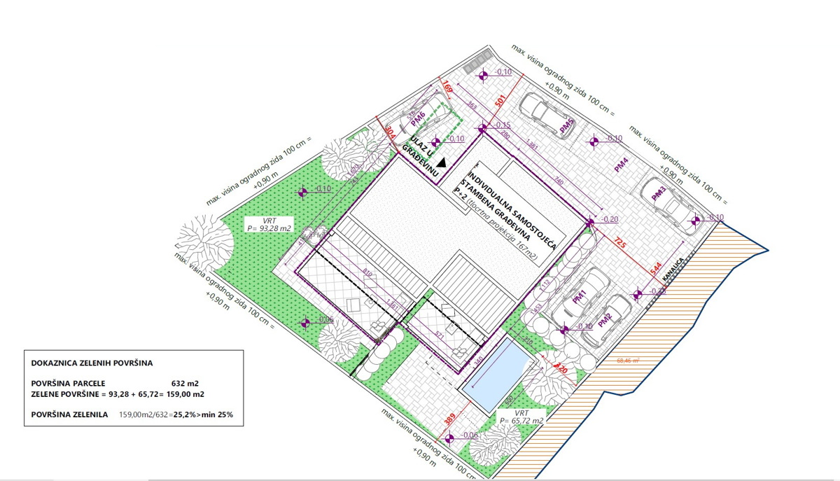
Vodice – zum Verkauf steht eine zweigeschossige Wohnung S4 mit Dachterrasse, in einer kleineren urbanen Villa – Neubau, ideal zum Leben oder als Investition. Das Gebäude mit modernem Erscheinungsbild verfügt über 4 Wohneinheiten, befindet sich derzeit im Bau und wird nach den neuesten Baustandards ausgestattet. Zur Ausstattung gehören: 10 cm Styropor-Fassade, PVC-Fenster, Fliegengitter, elektrische Rollladenheber, Fußbodenheizung in den Badezimmern, Klimaanlagen für Heizung/Kühlung in den Schlafzimmern und im Wohnzimmer, Vinylboden in Küche, Esszimmer und Wohnzimmer (Option Keramik), Laminat in den Schlafzimmern, Glasgeländer auf der Terrasse, Vorbereitung für eine Ladestation für Autos.... Der geplante Fertigstellungstermin ist Sommer 2027.

Die Lage ist ruhig, etwa 750 m vom Zentrum von Vodice und dem nächsten Strand entfernt.

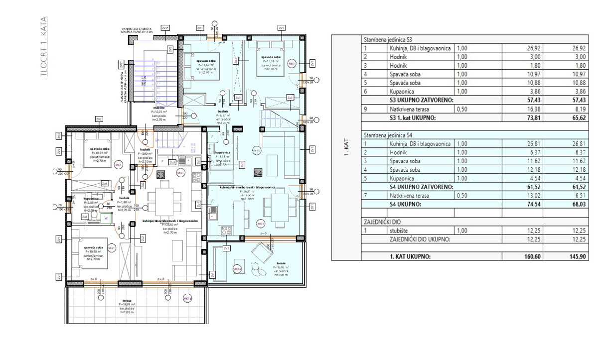
S4 WOHNUNG zweigeschossige Wohnung mit einer Gesamtwohnfläche von 109,41 m2, bestehend aus zwei Etagen: Die untere Etage hat eine Wohnfläche von 61,52 m2 + Terrasse 13,02 m2 und besteht aus Flur, zwei Schlafzimmern, Badezimmer, Küche mit Essbereich und Wohnzimmer mit Ausgang zur überdachten Terrasse. Über eine Innentreppe gelangt man in die obere Etage der Wohnung mit einer Wohnfläche von 27,37 m2 + Terrasse 46,03 m2, die Treppe, Flur, Abstellraum/WC, Küche, Badezimmer, Schlafzimmer und eine unbedeckte Terrasse umfasst. Zur Wohnung gehört ein Parkplatz. PREIS: 306.340,00 €



WEITERE VERFÜGBARE EINHEITEN IM GEBÄUDE:

ERDGESCHOSS:

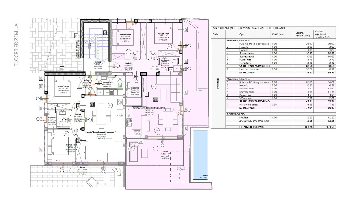
S1 WOHNUNG mit einer Gesamtwohnfläche von 80,51 m2 befindet sich im Erdgeschoss des Gebäudes und besteht aus einem Wohnbereich von 60,60 m2 + Terrasse 16,22 m2 + Garten 93,38 m2. Sie umfasst Flur, WC/Abstellraum, Küche mit Essbereich und Wohnzimmer, Flur, Badezimmer, zwei Schlafzimmer, von denen eines Zugang zur Terrasse und zum Garten hat. Zur Wohnung gehört ein Parkplatz. PREIS: 225.428,00 €

S2 WOHNUNG mit einer Netto-Wohnfläche von 79,63 m2 befindet sich im Erdgeschoss des Gebäudes und besteht aus einem Wohnbereich von 63,31 m2 + Terrasse 14,63 m2 + Pool 15 m2 + Garten 65,72 m2. Sie umfasst Flur, WC/Abstellraum, Küche mit Essbereich und Wohnzimmer mit Ausgang zur überdachten Terrasse, Flur, zwei Schlafzimmer, von denen eines Zugang zur Terrasse und zum Garten hat. Zur Wohnung gehört ein Pool mit 15 m2 und ein Parkplatz. PREIS: 242.964,00 €

1. und 2. STOCK:

S3 WOHNUNG zweigeschossige Wohnung mit einer Gesamtwohnfläche von 104,85 m2, bestehend aus zwei Etagen: Die untere Etage hat eine Wohnfläche von 57,43 m2 + Terrasse 16,38 m2 und besteht aus Flur, Badezimmer, zwei Schlafzimmern, Küche mit Essbereich und Wohnzimmer mit Ausgang zur überdachten Terrasse. Über eine Innentreppe gelangt man in die obere Etage der Wohnung mit einer Wohnfläche von 23,07 m2 + Terrasse 54,62 m2, die Treppe, Flur, Abstellraum/WC, Badezimmer, Schlafzimmer und eine unbedeckte Terrasse umfasst. Zur Wohnung gehört ein Parkplatz. PREIS: 293.580,00 €



Übersicht
  • Typ: Wohnung
  • Fläche: 109 m2
  • Grundstücksfläche: / m2
  • Zimmer: 4 Zimmer
  • Badezimmer: 2 Zimmer
  • Parkplätze: /
  • Parkplatz: 12
  • Garage: /
  • Stockwerk: 1
  • Immobilienansicht: /
  • Energieklasse: 2
  • Anzahl der Aufrufe: /
Immobiliendetails
Typ
Wohnung
Fläche
109 m2
Grundstücksfläche
/ m2
Zimmer
4 Zimmer
Badezimmer
2 Zimmer
Parkplätze
/
Parkplatz
12
Garage
/
Stockwerk
1
Immobilienansicht
/
Energieklasse
2
Anzahl der Aufrufe
/
Kartenansicht
  • Ort
    VODICE
  • Region
    ŠIBENSKO-KNINSKA
Agenturinfo
Naš Dom
Verkäufer kontaktieren
Naš Dom
Hrvoje Zurak
+
=