VODICE, Neubau, Luxushaus, Schwimmbad, Panoramablick, Garten... VODICE, Neubau, Luxushaus, Schwimmbad, Panoramablick, Garten, S2

793.750 €

Ausstattung
  • 193 m2
  • 4
  • 3
Lage

VODICE

Beschreibung
VODICE – Luxuriöses Reihenhaus mit Pool, Dachterrasse und Meerblick in Hanglage zu verkaufen!

Der Bau eines modernen Gebäudes mit drei Wohneinheiten in Reihe hat begonnen. Das Gebäude befindet sich in attraktiver Lage im neuen Wohngebiet von Vodice. Nur 800 m vom Strand und 1200 m vom Stadtzentrum entfernt, bietet es die perfekte Balance zwischen Privatsphäre und der Nähe zu allen wichtigen Einrichtungen. Einer der größten Vorteile dieser Immobilie ist die dreigeschossige Bauweise, die für mehr Privatsphäre und großzügigen Wohnraum sorgt. Jedes Haus verfügt über einen Pool und einen großen, privaten Garten, der eingezäunt und nach Plan gestaltet wird. Diese Immobilie vereint Luxus, Komfort und eine wunderschöne Landschaft.

Für den Bau werden hochwertige Materialien verwendet und erstklassige Ausstattung installiert: 10 cm starke Polystyrolfassade, einbruch- und feuerfeste Eingangstüren, anthrazitfarbene Aluminiumfenster und -türen, Hebe-Schiebe-Wände mit Sonnenschutzglas (Sun Gard), elektrische Rollläden, integrierte Moskitonetze, Fußbodenheizung mit Wärmepumpen, Klimaanlage in allen Räumen, moderne Badezimmerausstattung, hochwertige Bodenbeläge, Glasgeländer und Videoüberwachung. Geplanter Einzugstermin: November 2026.

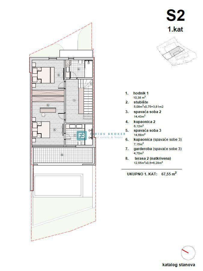
Das Haus S2 mit seinem funktionalen und großzügigen Grundriss bietet eine Gesamtnutzfläche von 193,67 m² (164,22 m² Wohnfläche + 15 m² Poolbereich + 50,93 m² Garten + 37,43 m² Stellplatz). Es erstreckt sich über drei Etagen: Erdgeschoss + 1. Obergeschoss + Dachterrasse. Das Erdgeschoss mit 75,04 m² Wohnfläche verfügt über einen überdachten Eingang, eine Diele, ein Schlafzimmer, ein Badezimmer, eine Wohnküche und ein Wohnzimmer mit Zugang zu einer überdachten Terrasse (13,28 m²). Eine große Schiebewand bietet einen herrlichen Blick auf den Garten und den beheizten Pool (15 m²) mit Sonnenterrasse. Eine Innentreppe führt in den ersten Stock (67,55 m²) mit Flur, Hauptschlafzimmer mit Bad en suite, Ankleidezimmer und einer überdachten Terrasse (12,55 m²), einem weiteren Schlafzimmer und einem Badezimmer. Über eine Treppe gelangt man auf eine Dachterrasse (21,63 m²) mit Panoramablick auf das Meer und die Umgebung. Die Terrasse ist mit Wasser- und Stromanschluss ausgestattet und kann mit einem Whirlpool in eine entspannende Oase verwandelt werden – ideal zum Genießen der Natur. Zum Haus gehören zwei Parkplätze.

Der Preis beträgt 793.750 € (inkl. MwSt. – der Käufer ist von der 3%igen Grunderwerbsteuer befreit).

WEITERE VERFÜGBARE RÄUMLICHKEITEN

Haus S1 - VERKAUFT

Das funktionale und geräumige Haus S3 bietet eine Gesamtnutzfläche von 204,04 m² (171,67 m² Wohnfläche + 15 m² Swimmingpool + 87,31 m² Innenhof + 34,56 m² Stellplatz). Es erstreckt sich über drei Etagen: Erdgeschoss + 1. Obergeschoss + Dachterrasse. Das 78,17 m² große Erdgeschoss umfasst einen überdachten Eingang, eine Diele, einen Abstellraum, ein Schlafzimmer, ein Badezimmer, eine Wohnküche und ein Wohnzimmer mit Zugang zu einer 12,14 m² großen überdachten Terrasse. Eine große Schiebewand bietet einen herrlichen Blick auf den Garten und den 15 m² großen, beheizten Swimmingpool mit Liegewiese. Eine Innentreppe führt in das 71,04 m² große Obergeschoss. Dort befinden sich ein Flur, ein Hauptschlafzimmer mit Bad en suite und einer 10,67 m² großen überdachten Terrasse, ein weiteres Schlafzimmer mit einer 4,60 m² großen, nicht überdachten Terrasse sowie ein Badezimmer. Über die Treppe gelangt man auf eine 22,46 m² große Dachterrasse mit Panoramablick auf das Meer und die Umgebung. Sie ist mit Wasser- und Stromanschluss ausgestattet und kann mit einem Whirlpool in eine entspannende Oase verwandelt werden – ideal zum Genießen der Natur. Das Haus verfügt über zwei Parkplätze. Der Preis beträgt 825.000 € (inkl. MwSt. – der Käufer ist von der 3%igen Grunderwerbsteuer befreit).

Für weitere Informationen kontaktieren Sie uns bitte telefonisch oder per E-Mail.
Übersicht
  • Typ: Haus
  • Fläche: 193 m2
  • Grundstücksfläche: 88 m2
  • Zimmer: 4 Zimmer
  • Badezimmer: 3 Zimmer
  • Parkplätze: /
  • Parkplatz: /
  • Garage: /
  • Stockwerk: /
  • Immobilienansicht: aufs Meer
  • Energieklasse: /
  • Anzahl der Aufrufe: /
Immobiliendetails
Typ
Haus
Fläche
193 m2
Grundstücksfläche
88 m2
Zimmer
4 Zimmer
Badezimmer
3 Zimmer
Parkplätze
/
Parkplatz
/
Garage
/
Stockwerk
/
Immobilienansicht
aufs Meer
Energieklasse
/
Anzahl der Aufrufe
/
Kartenansicht
  • Ort
    VODICE
  • Region
    ŠIBENSKO-KNINSKA
Agenturinfo
FIDIUS BROKER 2
Verkäufer kontaktieren
FIDIUS BROKER 2
Ljubomir Skočić
+
=