VODICE, Neubau, Luxushaus, Pool, Meerblick, Garten, S3 VODICE, Neubau, Luxushaus, Pool, Meerblick, Garten, S3

825.000 €

Ausstattung
  • 204 m2
  • 4
  • 3
Lage

VODICE

Beschreibung
VODICE – Luxuriöses Reihenhaus mit Pool, Dachterrasse und Meerblick in Hanglage zu verkaufen!

Der Bau eines modernen Gebäudes mit drei Wohneinheiten in Reihe hat begonnen. Das Gebäude befindet sich in attraktiver Lage im neuen Wohngebiet von Vodice. Nur 800 m vom Strand und 1200 m vom Stadtzentrum entfernt, bietet es die perfekte Balance zwischen Privatsphäre und der Nähe zu allen wichtigen Einrichtungen. Einer der größten Vorteile dieser Immobilie ist die dreigeschossige Bauweise, die für mehr Privatsphäre und großzügigen Wohnraum sorgt. Jedes Haus verfügt über einen Pool und einen großen, privaten Garten, der eingezäunt und nach Plan gestaltet wird. Diese Immobilie vereint Luxus, Komfort und eine wunderschöne Landschaft.

Für den Bau werden hochwertige Materialien verwendet und erstklassige Ausstattung installiert: 10 cm starke Polystyrolfassade, einbruch- und feuerfeste Eingangstüren, anthrazitfarbene Aluminiumfenster und -türen, Hebe-Schiebe-Wände mit Sonnenschutzglas (Sun Gard), elektrische Rollläden, integrierte Moskitonetze, Fußbodenheizung mit Wärmepumpen, Klimaanlage in allen Räumen, moderne Badezimmerausstattung, hochwertige Bodenbeläge, Glasgeländer und Videoüberwachung. Geplanter Einzugstermin: November 2026.

Das Haus S3 mit seinem funktionalen und großzügigen Grundriss bietet eine Gesamtnutzfläche von 204,04 m² (171,67 m² Wohnfläche + 15 m² Poolbereich + 87,31 m² Garten + 34,56 m² Stellplatz). Es erstreckt sich über drei Etagen: Erdgeschoss + 1. Obergeschoss + Dachterrasse. Das Erdgeschoss mit 78,17 m² Wohnfläche verfügt über einen überdachten Eingang, eine Diele, einen Abstellraum, ein Schlafzimmer, ein Badezimmer, eine Wohnküche und ein Wohnzimmer mit Zugang zu einer überdachten Terrasse (12,14 m²). Eine große Schiebewand bietet einen herrlichen Blick auf den Garten und den beheizten Pool (15 m²) mit Liegewiese. Eine Innentreppe führt in den ersten Stock (71,04 m²) mit Flur, einem Hauptschlafzimmer mit eigenem Bad und einer überdachten Terrasse (10,67 m²), einem weiteren Schlafzimmer mit einer offenen Terrasse (4,60 m²) und einem Badezimmer. Von hier aus gelangt man auf eine Dachterrasse (22,46 m²) mit Panoramablick auf das Meer und die Umgebung. Die Terrasse ist mit Wasser- und Stromanschluss ausgestattet und kann mit einem Whirlpool in eine entspannende Oase verwandelt werden – ideal zum Genießen der Natur. Zum Haus gehören zwei Parkplätze.

Der Preis beträgt 825.000 € (inkl. MwSt. – der Käufer ist von der 3%igen Grunderwerbsteuer befreit).

WEITERE UNTERKÜNFTE IN DER ANLAGE

Haus S1 - VERKAUFT

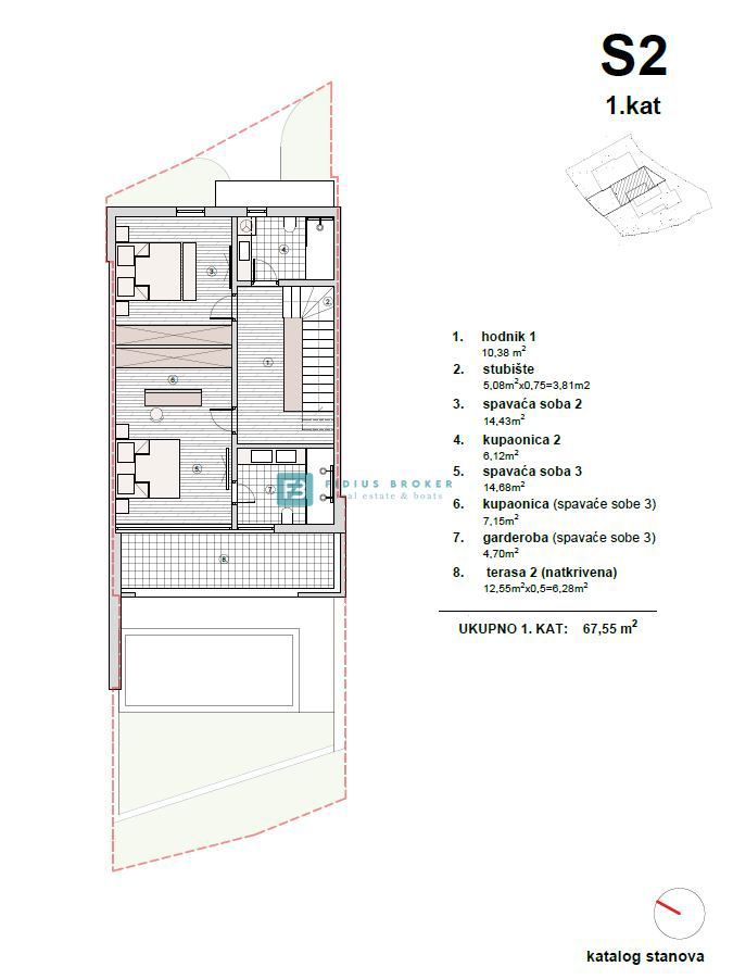
Das funktionale und geräumige Haus (S2) bietet eine Gesamtnutzfläche von 193,67 m² (164,22 m² Wohnfläche + 15 m² Pool + 50,93 m² Garten + 37,43 m² Stellplatz). Es erstreckt sich über drei Etagen: Erdgeschoss + 1. Obergeschoss + Dachterrasse. Das 75,04 m² große Erdgeschoss umfasst einen überdachten Eingang, eine Diele, ein Schlafzimmer, ein Badezimmer, eine Wohnküche und ein Wohnzimmer mit Zugang zu einer 13,28 m² großen, überdachten Terrasse. Eine große Schiebewand bietet einen herrlichen Blick auf den Garten und den beheizten 15 m² großen Pool mit Liegewiese. Eine Innentreppe führt in das 67,55 m² große Obergeschoss mit Flur, Hauptschlafzimmer mit Bad en suite, Ankleidezimmer und überdachter Terrasse (12,55 m²), einem weiteren Schlafzimmer und einem Badezimmer. Von dort gelangt man auf eine 21,63 m² große Dachterrasse mit Panoramablick auf das Meer und die Umgebung. Die Terrasse ist mit Wasser- und Stromanschluss ausgestattet und kann mit einem Whirlpool in eine entspannende Oase verwandelt werden – ideal zum Genießen der Natur. Zum Haus gehören zwei Parkplätze. Der Preis beträgt 793.750 € (inkl. MwSt. – der Käufer ist von der 3%igen Grunderwerbsteuer befreit).

Für weitere Informationen kontaktieren Sie uns bitte telefonisch oder per E-Mail.
Übersicht
  • Typ: Haus
  • Fläche: 204 m2
  • Grundstücksfläche: 121 m2
  • Zimmer: 4 Zimmer
  • Badezimmer: 3 Zimmer
  • Parkplätze: /
  • Parkplatz: /
  • Garage: /
  • Stockwerk: /
  • Immobilienansicht: aufs Meer
  • Energieklasse: /
  • Anzahl der Aufrufe: /
Immobiliendetails
Typ
Haus
Fläche
204 m2
Grundstücksfläche
121 m2
Zimmer
4 Zimmer
Badezimmer
3 Zimmer
Parkplätze
/
Parkplatz
/
Garage
/
Stockwerk
/
Immobilienansicht
aufs Meer
Energieklasse
/
Anzahl der Aufrufe
/
Kartenansicht
  • Ort
    VODICE
  • Region
    ŠIBENSKO-KNINSKA
Agenturinfo
FIDIUS BROKER 2
Verkäufer kontaktieren
FIDIUS BROKER 2
Ljubomir Skočić
+
=