Luxus und Eleganz – nur 70 m vom Strand entfernt – Wohnung S... Luxus und Eleganz – nur 70 m vom Strand entfernt – Wohnung S1B – Okrug Donji, Čiovo

420.000 €

Ausstattung
  • 88 m2
  • 2
  • 2
Lage

ČIOVO

Beschreibung
Luxus und Eleganz – nur 70 m vom Strand entfernt – Wohnung S1B – Okrug Donji, Čiovo

Dieses Projekt moderner und zeitgemäßer Architektur ist ein Ort, an dem das Blau des Meeres auf erstklassiges Design und den mediterranen Lebensstil trifft. Nur 70 Meter vom kristallklaren Meer entfernt, bietet es die perfekte Kombination aus Eleganz, Komfort und Privatsphäre.

Okrug Donji bietet Ruhe, Meer und authentische mediterrane Atmosphäre sowie eine hervorragende Anbindung an Trogir, den Flughafen Split und die Stadt Split – die ideale Wahl für alle, die Luxus in Meeresnähe, aber fernab vom Trubel suchen. Bekannt für seine unberührte Natur, das klare Meer und die Promenaden entlang der Küste, wird Okrug Donji zu einem immer gefragteren Standort zum Wohnen und für den Urlaub.

Der Bau hat gerade begonnen, und jedes Detail wurde sorgfältig geplant, um höchste Qualität zu gewährleisten.

Die Anlage besteht aus luxuriösen Wohnungen, die sich auf drei Doppelhäuser mit jeweils sechs Wohneinheiten sowie ein zusätzliches Gebäude mit drei Wohnungen verteilen. Ein gemeinschaftlicher Pool bietet zusätzlichen Wert – der perfekte Ort zum Entspannen und Beisammensein. Vier Villen werden ebenfalls Teil der Anlage sein und dieses exklusive Projekt, das sich über insgesamt 5.700 m² erstreckt, abrunden.

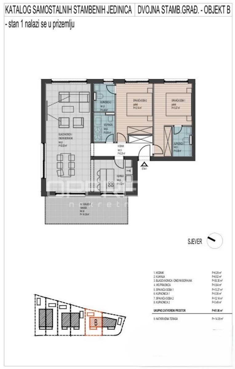
Die Wohnung S1B befindet sich im Erdgeschoss und bietet 81,06 m² Wohnfläche mit durchdachter Raumaufteilung: Flur, Waschküche, WC, zwei Bäder, großzügiges Wohn- und Esszimmer, Küche, zwei Schlafzimmer sowie eine überdachte Terrasse von 14,39 m² (Koeffizient 0,50).

Ein gemeinsamer Pool steht für die Gebäude A und B (insgesamt sechs Wohnungen) zur Verfügung.

Ein Außenstellplatz ist obligatorisch und kostet 12.500 €.

Dieses Projekt stellt eine sichere und wertvolle Investition dar – egal, ob Sie ein modernes Zuhause in Dalmatien oder eine Immobilie mit hervorragendem Potenzial zur touristischen Vermietung suchen.
Übersicht
  • Typ: Wohnung
  • Fläche: 88 m2
  • Grundstücksfläche: / m2
  • Zimmer: 2 Zimmer
  • Badezimmer: 2 Zimmer
  • Parkplätze: /
  • Parkplatz: 1
  • Garage: /
  • Stockwerk: /
  • Immobilienansicht: aufs Meer
  • Energieklasse: /
  • Anzahl der Aufrufe: /
Immobiliendetails
Typ
Wohnung
Fläche
88 m2
Grundstücksfläche
/ m2
Zimmer
2 Zimmer
Badezimmer
2 Zimmer
Parkplätze
/
Parkplatz
1
Garage
/
Stockwerk
/
Immobilienansicht
aufs Meer
Energieklasse
/
Anzahl der Aufrufe
/
Kartenansicht
  • Ort
    ČIOVO
  • Region
    SPLITSKO-DALMATINSKA
Agenturinfo
Opereta Real Estate
Verkäufer kontaktieren
Opereta Real Estate
Zagreb Office
+
=