ERSTE REIHE ZUM MEER – NEUBAU – ČIOVO/OKRUG GORNJI ERSTE REIHE ZUM MEER – NEUBAU – ČIOVO/OKRUG GORNJI

500.835 €

Ausstattung
  • 111 m2
  • 3
  • 1
Lage

ČIOVO

Beschreibung
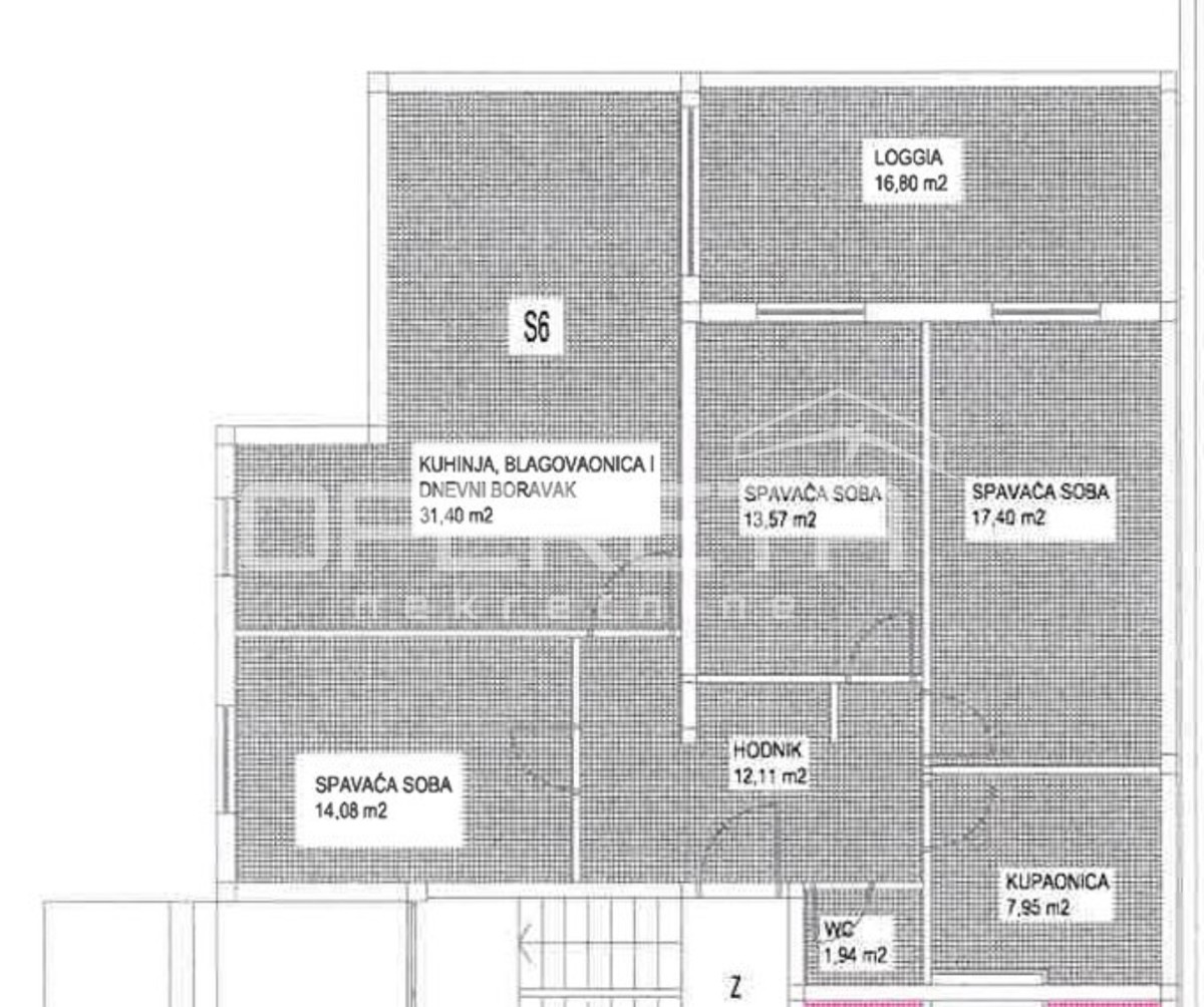
ERSTE REIHE ZUM MEER – NEUBAU – ČIOVO/OKRUG GORNJI (S6/10)

An einem der gefragtesten Standorte in Dalmatien, auf der Insel Čiovo, bieten wir noch mehrere Wohnungen im Neubau mit Nutzungserlaubnis und durchgeführtem Teilungsgutachten an. Das Gebäude befindet sich in erster Reihe zum Meer, entlang einer angelegten Promenade, die zum Hauptstadtstrand führt, was dieser Immobilie zusätzlichen Wert verleiht und sie äußerst attraktiv sowohl für den Aufenthalt als auch für die touristische Vermietung macht.

Aus dem Angebot heben wir die Wohnung S6 hervor, die sich im 2. Stock befindet, mit einer Gesamtberechnungsfläche von 111,05 m².
Der geschlossene Teil der Wohnung hat eine Fläche von 98,45 m² und umfasst einen Flur, eine Küche, die mit dem Esszimmer und dem Wohnzimmer verbunden ist, 3 geräumige Schlafzimmer, ein Badezimmer und eine separate Toilette, während sich der Außenbereich auf eine Loggia mit einer Fläche von 16,80 m² (Koef. 0,75) bezieht.

Preis für den Außenparkplatz: 10.000€

Diese äußerst komfortable Drei-Zimmer-Wohnung bietet einen luftigen und funktionalen Grundriss, der ein angenehmes tägliches Leben oder einen Aufenthalt während des Urlaubs ermöglicht, mit einer natürlichen Verbindung zwischen Innen- und Außenraum, die den mediterranen Lebensstil zusätzlich betont. Ihre Lage sowie die unmittelbare Nähe zum Meer und zur Promenade bieten ein Gefühl von Privatsphäre, aber auch eine ständige Verbindung zur Umgebung.

Die Insel Čiovo, die durch eine Brücke mit der historischen Stadt Trogir verbunden ist, ist bekannt für ihr kristallklares Wasser, schöne Strände und eine entspannte Atmosphäre, und gleichzeitig hervorragend an Split und den Flughafen angebunden, was sie zu einem der begehrtesten Standorte für Leben und Investitionen an der Adria macht.
Übersicht
  • Typ: Wohnung
  • Fläche: 111 m2
  • Grundstücksfläche: / m2
  • Zimmer: 3 Zimmer
  • Badezimmer: 1 Zimmer
  • Parkplätze: /
  • Parkplatz: 1
  • Garage: /
  • Stockwerk: 2
  • Immobilienansicht: /
  • Energieklasse: /
  • Anzahl der Aufrufe: /
Immobiliendetails
Typ
Wohnung
Fläche
111 m2
Grundstücksfläche
/ m2
Zimmer
3 Zimmer
Badezimmer
1 Zimmer
Parkplätze
/
Parkplatz
1
Garage
/
Stockwerk
2
Immobilienansicht
/
Energieklasse
/
Anzahl der Aufrufe
/
Kartenansicht
  • Ort
    ČIOVO
  • Region
    SPLITSKO-DALMATINSKA
Agenturinfo
Opereta Real Estate
Verkäufer kontaktieren
Opereta Real Estate
Zagreb Office
+
=