Mandre – zweigeschossige Wohnung mit Garten – ERSTE REIHE Mandre – zweigeschossige Wohnung mit Garten – ERSTE REIHE

635.000 €

Ausstattung
  • 155 m2
  • 7
  • 3
Lage

MANDRE , PAG

Beschreibung
ERSTE REIHE ZUM MEER – EXKLUSIVER NEUBAU MIT AUFZUG – DOPPELSTOCKWOHNUNG S1

Im Angebot ist eine doppelstöckige Wohnung S1 in einem exklusiven Neubau in erster Meereslinie in Mandrama, gelegen in einem modernen Gebäude mit Aufzug, konzipiert für hohen Wohnkomfort und langfristige Wohnqualität.

Das Projekt besticht durch zeitgenössische Architektur, erstklassige Ausführung und eine außergewöhnliche Lage direkt am Meer. Große Glasfronten mit hochschiebbaren ALU-Fenstern sorgen für reichlich natürliches Licht und angenehmes Wohnen das ganze Jahr über, während Fußbodenheizung und Klimaanlage zu einem hohen Wohnstandard beitragen.

Geplantes Fertigstellungsdatum: Sommer 2026

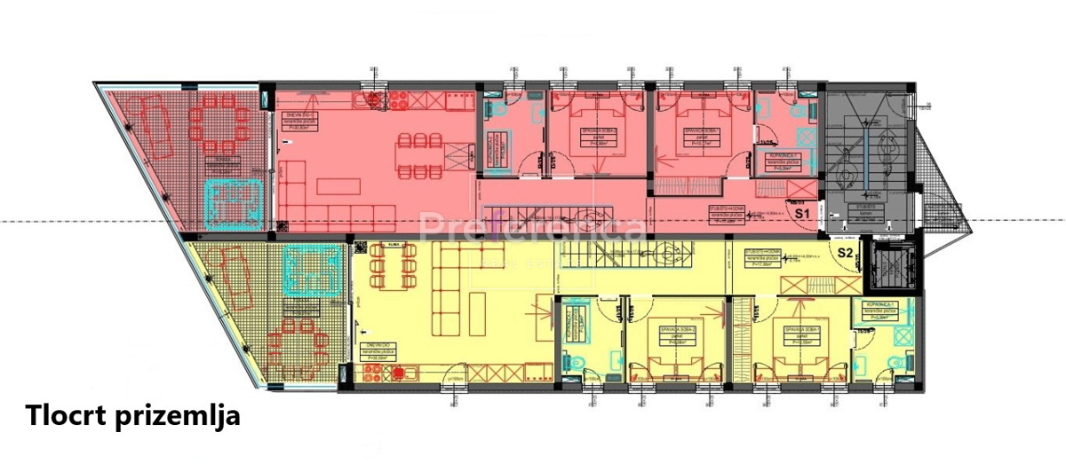
GRUNDRISS – DOPPELSTOCKWOHNUNG

Die Wohnung ist auf zwei Etagen verteilt, mit klarer Raumaufteilung, die mehr Privatsphäre und Funktionalität ermöglicht.

UNTERGESCHOSS (SOUTERRAIN)

- Eingangsbereich mit Treppe
- Abstellraum
- Badezimmer
- zwei Schlafzimmer

Ruhigerer Teil der Wohnung, geeignet zum Entspannen oder für Gäste.

OBERGESCHOSS (ERDGESCHOSS)

- Eingangsbereich mit Treppe
- zwei Schlafzimmer
- zwei Badezimmer
- großzügiges Wohnzimmer mit Küche und Essbereich
- Zugang zur Terrasse und zum Garten

Hauptwohnbereich mit Fokus auf Offenheit und Licht.

Die Wohnung verfügt über zwei Eingänge auf zwei Etagen – vom Untergeschoss und Erdgeschoss, was eine flexible Nutzung der Räume und einfachere Zonentrennung ermöglicht.

Zur Wohnung gehören zwei Parkplätze und ein privater Garten.

Übersicht
  • Typ: Wohnung
  • Fläche: 155 m2
  • Grundstücksfläche: / m2
  • Zimmer: 7 Zimmer
  • Badezimmer: 3 Zimmer
  • Parkplätze: /
  • Parkplatz: 24
  • Garage: /
  • Stockwerk: /
  • Immobilienansicht: /
  • Energieklasse: /
  • Anzahl der Aufrufe: /
Immobiliendetails
Typ
Wohnung
Fläche
155 m2
Grundstücksfläche
/ m2
Zimmer
7 Zimmer
Badezimmer
3 Zimmer
Parkplätze
/
Parkplatz
24
Garage
/
Stockwerk
/
Immobilienansicht
/
Energieklasse
/
Anzahl der Aufrufe
/
Kartenansicht
  • Ortsteil
    PAG
  • Ort
    MANDRE
  • Region
    ZADARSKA
Agenturinfo
RealEstate Novalja
Verkäufer kontaktieren
RealEstate Novalja
Zorica Tamarut
+
=