Mandre – zweigeschossige Wohnung mit Garten – ERSTE REIHE Mandre – zweigeschossige Wohnung mit Garten – ERSTE REIHE

635.000 €

Ausstattung
  • 155 m2
  • 7
  • 3
Lage

MANDRE , PAG

Beschreibung
ERSTE REIHE AM MEER – EXKLUSIVER NEUBAU MIT AUFZUG – DOPPELSTOCKWOHNUNG S2

Im Angebot ist eine Doppelstockwohnung S2 mit einer gesamten Nettowohnfläche von 77,77 m2 und zugehörigen Flächen mit einer Gesamtberechnungsfläche von ca. 154 m2, gelegen in einem exklusiven Neubau in erster Reihe am Meer in Mandrama.

Das Gebäude ist modern, mit Aufzug ausgestattet und für ein hohes Maß an Komfort sowie langfristige Wohnqualität konzipiert.

Das Projekt besticht durch zeitgenössische Architektur, erstklassige Ausführung und eine außergewöhnliche Lage direkt am Meer. Große Glasfronten mit hochschiebbaren ALU-Fenstern sorgen für reichlich Tageslicht und ein angenehmes Wohnerlebnis das ganze Jahr über, während Fußbodenheizung und Klimaanlage zu einem hohen Wohnstandard beitragen.

Geplantes Bauende: vor dem Sommer 2026

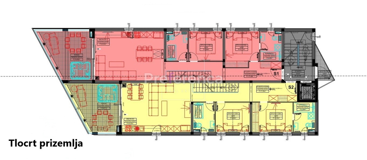
GRUNDRISS – DOPPELSTOCKWOHNUNG

Die Wohnung ist auf zwei Etagen verteilt, mit klarer Raumtrennung, die mehr Privatsphäre und Funktionalität ermöglicht.

UNTERGESCHOSS (SOUTERRAIN)

- Eingangsbereich mit Treppe
- Abstellraum
- Badezimmer
- Schlafzimmer
- Wohnzimmer mit Küche und Essbereich

Diese Etage kann als eigenständige Einheit genutzt werden, ideal für Gäste oder getrenntes Wohnen.

OBERGESCHOSS (ERDGESCHOSS)

- Eingangsbereich mit Treppe
- Zwei Schlafzimmer
- Zwei Badezimmer
- Großzügiges Wohnzimmer mit Küche und Essbereich
- Zugang zur überdachten Terrasse

Vom Wohnzimmer gelangt man auf die überdachte Terrasse mit einer Fläche von 18,07 m2, die erhöht gegenüber Straßenniveau liegt, was mehr Privatsphäre und ein angenehmeres Verweilen im Freien gewährleistet.

Von der Terrasse aus gelangt man in den privaten Garten mit einer Gesamtfläche von 74,17 m2, der ausreichend Platz zum Verweilen, für geselliges Beisammensein oder individuelle Gestaltung bietet.

Vom Garten aus ist ein direkter Zugang zu den Parkplätzen möglich, was die tägliche Nutzung sehr praktisch macht.

Die Wohnung verfügt über Zugänge auf zwei Etagen – vom Souterrain und vom Erdgeschoss, was eine flexible Nutzung der Räume und einfache Zonentrennung ermöglicht.

Für weitere Informationen und Besichtigungen stehen wir Ihnen gerne zur Verfügung.

Übersicht
  • Typ: Wohnung
  • Fläche: 155 m2
  • Grundstücksfläche: / m2
  • Zimmer: 7 Zimmer
  • Badezimmer: 3 Zimmer
  • Parkplätze: /
  • Parkplatz: 24
  • Garage: /
  • Stockwerk: /
  • Immobilienansicht: /
  • Energieklasse: /
  • Anzahl der Aufrufe: /
Immobiliendetails
Typ
Wohnung
Fläche
155 m2
Grundstücksfläche
/ m2
Zimmer
7 Zimmer
Badezimmer
3 Zimmer
Parkplätze
/
Parkplatz
24
Garage
/
Stockwerk
/
Immobilienansicht
/
Energieklasse
/
Anzahl der Aufrufe
/
Kartenansicht
  • Ortsteil
    PAG
  • Ort
    MANDRE
  • Region
    ZADARSKA
Agenturinfo
RealEstate Novalja
Verkäufer kontaktieren
RealEstate Novalja
Zorica Tamarut
+
=