PULA – NOVOGRADNJA | Stan na 1. katu 55 m² | terasa | garažn... PULA – NOVOGRADNJA | Stan na 1. katu 55 m² | terasa | garažno parkirno mjesto

154.000 €

Ausstattung
  • 55 m2
  • 3
  • 1
Lage

PULA

Beschreibung
PULA - NEUES GEBÄUDE | Wohnung im 1. Stock, 55 m² | Terrasse | Garagenstellplatz, A16

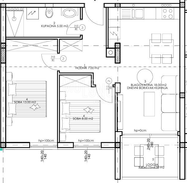
Wir bieten eine Wohnung in einem modernen Neubau in Pula an, die sich im 1. Stock eines hochwertigen Wohngebäudes mit Aufzug befindet. Die Gesamtfläche der Wohnung beträgt 55 m². Das Projekt befindet sich derzeit im Bau und die Fertigstellung der Arbeiten ist für Oktober 2027 geplant.

Die Wohnung verfügt über eine funktionale und praktische Aufteilung und besteht aus:

Eingangshalle
zwei Schlafzimmer
Badezimmer
Küche mit Esszimmer
Wohnzimmer
Terrassen mit Ausgang vom Wohnzimmer

Das Gebäude ist mit einem Aufzug ausgestattet und die Wohnungen verfügen über eine Fußbodenheizung in allen Räumen, hochwertige Tischlerarbeiten und eine hohe Wärme- und Schalldämmung, die für maximalen Wohnkomfort sorgen.

Die Wohnung wird nach dem „schlüsselfertigen“ System verkauft.

Der Preis für einen Garagenstellplatz beträgt 18.500 €.
Es besteht auch die Möglichkeit, einen Lagerraum im Keller des Gebäudes zu erwerben (keine Kaufbedingung).

Die geplante Fertigstellung der Bauarbeiten ist 10/2027. Jahr.

Diese Immobilie stellt eine hervorragende Gelegenheit für ein angenehmes Familienleben oder eine sichere Investition in einen hochwertigen Neubau in attraktiver Lage in Pula dar.
Übersicht
  • Typ: Wohnung
  • Fläche: 55 m2
  • Grundstücksfläche: / m2
  • Zimmer: 3 Zimmer
  • Badezimmer: 1 Zimmer
  • Parkplätze: /
  • Parkplatz: /
  • Garage: 1
  • Stockwerk: 1
  • Immobilienansicht: /
  • Energieklasse: 1
  • Anzahl der Aufrufe: /
Immobiliendetails
Typ
Wohnung
Fläche
55 m2
Grundstücksfläche
/ m2
Zimmer
3 Zimmer
Badezimmer
1 Zimmer
Parkplätze
/
Parkplatz
/
Garage
1
Stockwerk
1
Immobilienansicht
/
Energieklasse
1
Anzahl der Aufrufe
/
Kartenansicht
  • Ort
    PULA
  • Region
    ISTARSKA
Agenturinfo
Molo Longo
Verkäufer kontaktieren
+
=