ISTRA, PULA – VELI VRH | Stan A3 | 2. kat | Novogradnja | 56... ISTRA, PULA – VELI VRH | Stan A3 | 2. kat | Novogradnja | 56,52 m² | terasa + spremište | parking

169.560 €

Ausstattung
  • 56 m2
  • 3
  • 1
Lage

PULA

Beschreibung
PULA – VELI VRH | Wohnung A3 | 2. Etage | Neubau | 56,52 m² | Terrasse + Abstellraum | Parkplatz

Zum Verkauf steht eine moderne Wohnung in einem Neubau in attraktiver und ruhiger Lage in Pula, Siedlung Veli Vrh, nur 1,5 km vom Meer und 3,5 km vom Stadtzentrum entfernt.

Die Wohnung befindet sich im 2. Stock eines kleineren Wohnhauses mit nur 3 Wohneinheiten, was ein hohes Maß an Privatsphäre und ein angenehmes Umfeld zum Wohnen oder Urlauben gewährleistet.

Zeitplan:
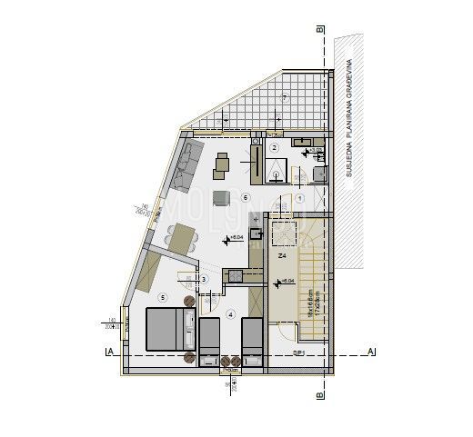
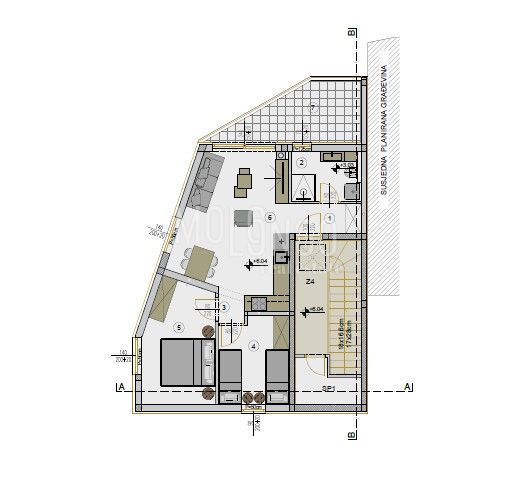
Flur + Garderobe
Vorraum
Badezimmer
2 Schlafzimmer
Küche + Esszimmer + Wohnzimmer
überdachte Terrasse (8,04 m² / rechnerisch 4,02 m²)
Zusätzlich:
Lagerraum 3,50 m² (berechnet 1,75 m²)
Oberflächen:
geschlossener Teil: 50,80 m²
Gesamt berechnet: 56,52 m²

Ausrüstung:
Fußbodenheizung in allen Räumen
hochwertige Zimmerei
Hochwertige Materialien und Verarbeitung
hervorragende Wärme- und Schalldämmung

Parkplatz (nicht im Preis inbegriffen):
Außenparkplatz – 7.500 €

Geplanter Baubeginn: 04/2026
Geplante Fertigstellung: 04/2027

Die Immobilie ist ideal für das Familienleben, den Urlaub oder als Investition zur touristischen Vermietung
Übersicht
  • Typ: Wohnung
  • Fläche: 56 m2
  • Grundstücksfläche: / m2
  • Zimmer: 3 Zimmer
  • Badezimmer: 1 Zimmer
  • Parkplätze: /
  • Parkplatz: /
  • Garage: /
  • Stockwerk: 2
  • Immobilienansicht: /
  • Energieklasse: 1
  • Anzahl der Aufrufe: /
Immobiliendetails
Typ
Wohnung
Fläche
56 m2
Grundstücksfläche
/ m2
Zimmer
3 Zimmer
Badezimmer
1 Zimmer
Parkplätze
/
Parkplatz
/
Garage
/
Stockwerk
2
Immobilienansicht
/
Energieklasse
1
Anzahl der Aufrufe
/
Kartenansicht
  • Ort
    PULA
  • Region
    ISTARSKA
Agenturinfo
Molo Longo
Verkäufer kontaktieren
+
=