PULA – NOVOGRADNJA | Stan u prizemlju 50,80 m² | terasa | ga... PULA – NOVOGRADNJA | Stan u prizemlju 50,80 m² | terasa | garažno parkirno mjesto

137.160 €

Ausstattung
  • 50 m2
  • 3
  • 1
Lage

PULA

Beschreibung
PULA - NEUES GEBÄUDE | Wohnung im Erdgeschoss 50,80 m² | Terrasse | Garagenstellplatz

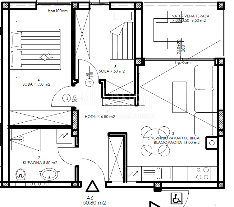
Wir bieten eine Wohnung in einem Neubau in Pula an, die sich im Erdgeschoss eines modernen Wohnhauses befindet, mit einer Gesamtfläche von 50,80 m². Das Projekt befindet sich derzeit im Bau und die Fertigstellung der Arbeiten ist für Oktober 2027 geplant.

Die Wohnung verfügt über eine funktionale Aufteilung und besteht aus:
Eingangshalle
zwei Schlafzimmer
Badezimmer
Küche mit Esszimmer
Wohnzimmer
Terrassen mit Ausgang vom Wohnzimmer

Der Verkauf der Wohnungen erfolgt nach dem „schlüsselfertigen“ System.

Der Preis für einen Garagenstellplatz beträgt 18.500 €.

Es besteht auch die Möglichkeit, einen Lagerraum im Keller des Gebäudes zu erwerben (keine Kaufbedingung).

Die geplante Fertigstellung der Bauarbeiten ist 10/2027. Jahr.

Die Immobilie stellt eine ausgezeichnete Gelegenheit zum Wohnen oder Investieren dar.
Übersicht
  • Typ: Wohnung
  • Fläche: 50 m2
  • Grundstücksfläche: / m2
  • Zimmer: 3 Zimmer
  • Badezimmer: 1 Zimmer
  • Parkplätze: /
  • Parkplatz: /
  • Garage: 1
  • Stockwerk: /
  • Immobilienansicht: /
  • Energieklasse: 1
  • Anzahl der Aufrufe: /
Immobiliendetails
Typ
Wohnung
Fläche
50 m2
Grundstücksfläche
/ m2
Zimmer
3 Zimmer
Badezimmer
1 Zimmer
Parkplätze
/
Parkplatz
/
Garage
1
Stockwerk
/
Immobilienansicht
/
Energieklasse
1
Anzahl der Aufrufe
/
Kartenansicht
  • Ort
    PULA
  • Region
    ISTARSKA
Agenturinfo
Molo Longo
Verkäufer kontaktieren
+
=