PULA – NOVOGRADNJA | Stan u prizemlju 79,10 m² | natkrivena ... PULA – NOVOGRADNJA | Stan u prizemlju 79,10 m² | natkrivena terasa | garažno parkirno mjesto

213.570 €

Ausstattung
  • 79 m2
  • 3
  • 2
Lage

PULA

Beschreibung
PULA - NEUES GEBÄUDE | Wohnung im Erdgeschoss 79,10 m² | überdachte Terrasse | Garagenstellplatz, A7

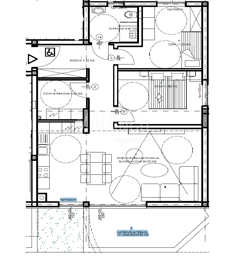
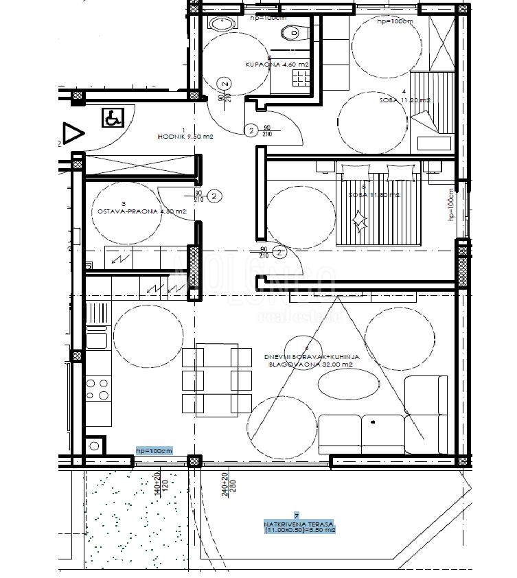
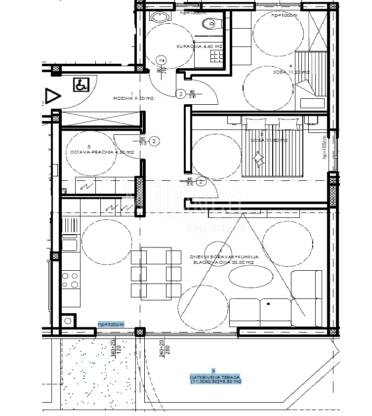
Wir bieten eine Wohnung in einem Neubau in Pula an, die sich im Erdgeschoss eines modernen Wohnhauses befindet, mit einer Gesamtfläche von 79,10 m². Das Projekt befindet sich derzeit im Bau und die Fertigstellung der Arbeiten ist für Oktober 2027 geplant.

Die Wohnung verfügt über eine funktionale Aufteilung und besteht aus:

Eingangshalle
zwei Schlafzimmer
Badezimmer
Speisekammer mit Waschküche
Küche mit Esszimmer
Wohnzimmer
große überdachte Terrassen mit Ausgang vom Wohnzimmer

Der Verkauf der Wohnungen erfolgt nach dem „schlüsselfertigen“ System.

Der Erwerb eines Garagenstellplatzes zum Preis von 18.500 € ist mit der Wohnung zwingend erforderlich.

Es besteht auch die Möglichkeit, einen Lagerraum im Keller des Gebäudes zu erwerben (keine Kaufbedingung).

Die geplante Fertigstellung der Bauarbeiten ist 10/2027. Jahr.

Das Anwesen stellt mit seiner praktischen Raumaufteilung und einer großzügigen überdachten Terrasse eine hervorragende Gelegenheit für ein Familienleben oder eine Investition dar.
Übersicht
  • Typ: Wohnung
  • Fläche: 79 m2
  • Grundstücksfläche: / m2
  • Zimmer: 3 Zimmer
  • Badezimmer: 2 Zimmer
  • Parkplätze: /
  • Parkplatz: /
  • Garage: 1
  • Stockwerk: /
  • Immobilienansicht: /
  • Energieklasse: 1
  • Anzahl der Aufrufe: /
Immobiliendetails
Typ
Wohnung
Fläche
79 m2
Grundstücksfläche
/ m2
Zimmer
3 Zimmer
Badezimmer
2 Zimmer
Parkplätze
/
Parkplatz
/
Garage
1
Stockwerk
/
Immobilienansicht
/
Energieklasse
1
Anzahl der Aufrufe
/
Kartenansicht
  • Ort
    PULA
  • Region
    ISTARSKA
Agenturinfo
Molo Longo
Verkäufer kontaktieren
+
=