Istrien, Pula – Zweizimmerwohnung 54 m² in einem modernen Ne... Istrien, Pula – Zweizimmerwohnung 54 m² in einem modernen Neubau

175.000 €

Ausstattung
  • 54 m2
  • 3
  • 1
Lage

PULA

Beschreibung
Pula ist die größte Stadt der Halbinsel Istrien und bekannt für ihre reiche Geschichte, beeindruckende römische Architektur und malerische Küste. Das Wahrzeichen der Stadt ist das prächtige römische Amphitheater (Arena), eines der am besten erhaltenen weltweit, das noch heute als spektakuläre Bühne für Konzerte und Veranstaltungen dient. Neben seinem kulturellen Erbe bietet Pula zahlreiche Strände, kristallklares Meer und eine entspannte mediterrane Atmosphäre – die perfekte Mischung aus Geschichte, Natur und modernem Leben. Dank des internationalen Flughafens und der hervorragenden Verkehrsanbindung ist Pula ein ideales Reiseziel für Touristen und alle, die ein Zweitwohnsitz an der Adria suchen.

Kaiser Immobilien präsentiert ein neues Wohnprojekt in einem modernen Mehrfamilienhaus mit Erdgeschoss und vier Obergeschossen. Insgesamt umfasst das Gebäude 39 Wohnungen und eine Gewerbefläche. Dieses moderne Wohnprojekt befindet sich in attraktiver Lage im Stadtzentrum, in unmittelbarer Nähe zu Einkaufszentren, Geschäften, Restaurants, Schulen, Kindergärten und allen weiteren Einrichtungen für einen komfortablen und angenehmen Alltag. Die Lage bietet hervorragende Verkehrsanbindungen an den Rest der Stadt. Die Nähe zum Meer, zu Promenaden und zahlreichen Freizeiteinrichtungen trägt zusätzlich zur hohen Wohnqualität bei und macht diese Immobilie zu einer idealen Wahl zum Wohnen oder als Kapitalanlage.

Das Projekt sieht den Bau eines modernen Mehrfamilienhauses mit einem Erdgeschoss vor, in dem sich drei Wohnungen, eine kleine Gewerbefläche von 30 m² für ruhige Aktivitäten sowie Außen- und Garagenstellplätze befinden. In den vier Obergeschossen befinden sich jeweils neun Wohnungen, überwiegend Zweizimmerwohnungen, insgesamt also 36 Wohnungen. Das Gebäude wird mit einem Aufzug ausgestattet, der das Erdgeschoss mit allen Etagen verbindet und so den zukünftigen Mietern zusätzlichen Komfort bietet.

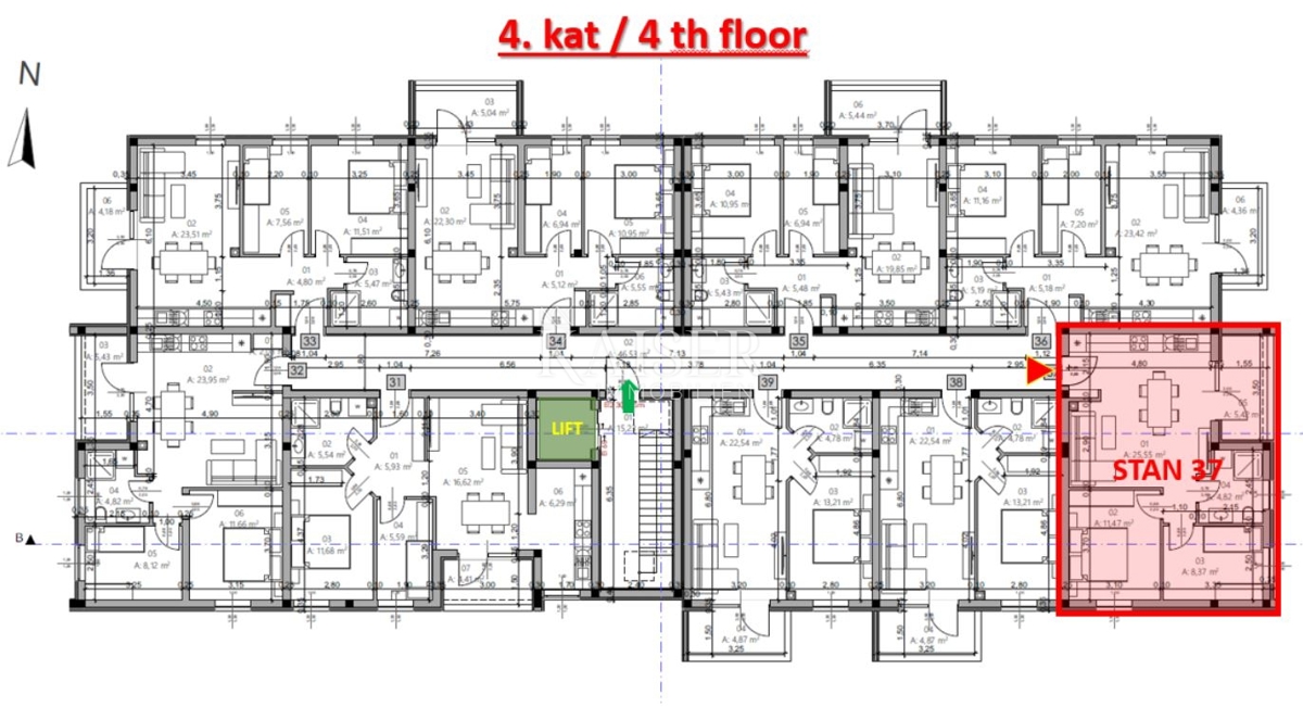
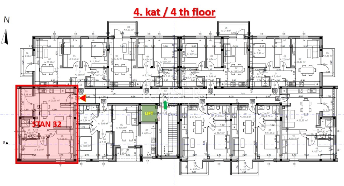
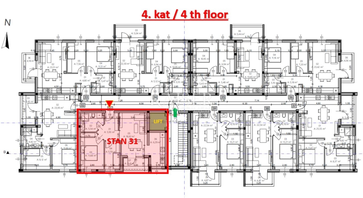
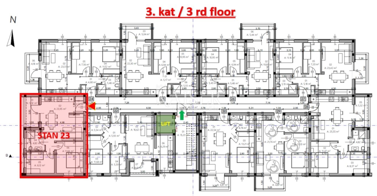
Im dritten und vierten Obergeschoss dieses modernen Gebäudes befinden sich sieben Zweizimmerwohnungen ähnlicher Größe mit 54,57 m², 54,24 m², 54,20 m², 54,96 m², 54,65 m², 54,33 m² und 54,28 m². Die Wohnungen sind funktional gestaltet, um den verfügbaren Raum optimal zu nutzen und ein angenehmes Wohnambiente zu schaffen. Die meisten Wohnungen verfügen über einen Eingangsbereich mit Garderobe, der in den Hauptwohnbereich führt, während zwei Wohnungen direkten Zugang zu einem offenen Wohnbereich bieten. Das Herzstück jeder Wohnung bildet ein offener Wohnbereich, der Küche, Esszimmer und Wohnzimmer vereint und so einen großzügigen und hellen Raum schafft, der sich ideal zum Wohnen und geselligen Beisammensein eignet. Vom Wohnbereich aus gelangt man auf einen eigenen Balkon oder eine Loggia von ca. 4 bis 5 m², die zusätzlichen Platz zum Entspannen im Freien bietet.

Die Wohnungen verfügen über zwei Schlafzimmer, wobei das Hauptschlafzimmer ca. 11 m² groß ist. Das zweite Zimmer, das zwischen ca. 5 m² und 8 m² groß ist, kann als Kinderzimmer, Arbeitszimmer oder Gästezimmer genutzt werden. Das ca. 5 m² große Badezimmer ist auf maximale Funktionalität und Komfort ausgelegt. Die Ausrichtung der Wohnungen variiert zwischen Südwesten, Nordosten, Südosten und Süden, wodurch den ganzen Tag über unterschiedliche Atmosphären und viel Tageslicht entstehen.
Die Wohnungen werden durch Inverter-Klimaanlagen beheizt und gekühlt, die Badezimmer verfügen zusätzlich über eine elektrische Fußbodenheizung. Beim Bau wurde besonderer Wert auf die Qualität der Materialien und die Energieeffizienz gelegt. Das Gebäude erhält eine 10 cm dicke Wärmedämmfassade, und die Wohnungen werden innen mit hochwertigen italienischen Keramikfliesen und erstklassigen Laminaten ausgestattet. Die Eingangstüren sind einbruchsicher, und die Fenster und Türen bestehen aus hochwertigen deutschen PVC-Profilen mit doppeltem IZO-Glas, das mit Argon gefüllt ist und so eine hervorragende Wärme- und Schalldämmung gewährleistet.

Die Umgebung des Gebäudes wird sorgfältig gestaltet, mit geplanten Grünflächen und bis zu zwei Meter hohen Bäumen. Dies wertet den Raum rund um das Gebäude auf und schafft ein angenehmes, naturnahes Stadtbild.

Der Kauf eines Parkplatzes ist obligatorisch. Käufer können zwischen einem Außenstellplatz und einem Garagenstellplatz wählen. Ein Außenstellplatz kostet 8.162,50 €, Garagenstellplätze kosten je nach Größe zwischen 22.446,88 € und 26.528,13 €. Ein besonderer Vorteil für Käufer, die bis zum 31. März 2026 kaufen: Ein Außenstellplatz ist im Kaufpreis enthalten.

Der Käufer dieser Wohnungen zahlt keine 3%ige Grunderwerbsteuer, was einen zusätzlichen finanziellen Vorteil darstellt.

Die Fertigstellung des Projekts ist für Oktober 2027 geplant.

Die Wohnungen befinden sich in einer äußerst begehrten Lage in der Stadt und bieten die perfekte Balance zwischen ruhigem Wohnen und der Nähe zu allen Annehmlichkeiten des täglichen Lebens. In unmittelbarer Nähe befinden sich Geschäfte, Schulen, Kindergärten, Sport- und Freizeiteinrichtungen, Restaurants und Cafés. Das Meer und die berühmten Strände von Pula sind nur wenige Autominuten entfernt. Dank ihrer hochwertigen Bauweise, des funktionalen Grundrisses und der attraktiven Lage bieten diese Wohnungen nicht nur eine hervorragende Gelegenheit für ein komfortables Familienleben, sondern auch eine sichere Investition zur Langzeit- oder Ferienvermietung in einer der begehrtesten Städte an der istrischen Küste.


Nähe zu Einkaufsmöglichkeiten und anderen Annehmlichkeiten:
Zentrum Pula – 1,2 km
Restaurant – 350 m
Café – 80 m
Geschäft (Tommy, Kaufland, Plodine) – 500 m
Einkaufszentrum Pula City – 550 m
Fitnessstudio – 650 m
Markt – 90 m
Friseur/Kosmetikstudio – 300 m
Grundschule – 1,2 km
Kindergarten – 1,3 km
Busbahnhof – 1,3 km
Bushaltestelle – 5 m
Meer – 2 km
Sehenswürdigkeiten – 1,5 km
Flughafen – 6 km

Entfernung zu größeren Städten:
Pula – Ljubljana: 200 km
Pula – Wien: 580 km
Pula – Budapest: 600 km
Pula – Prag: 900 km
Pula – München: 600 km Pula – Zagreb: 264 km

Die Maklerprovision für den Käufer beträgt 3 % zzgl. MwSt. und wird beim Kauf einer Immobilie mit Abschluss des ersten Rechtsaktes fällig. Interessenten können die Immobilie erst nach Unterzeichnung eines Maklervertrags besichtigen.
ID-Code: 127-225

Wenn Sie die Immobilie persönlich besichtigen möchten, kontaktieren Sie bitte: Jennifer Hofmann
E-Mail: jennifer@kaiser-immobilien.hr
Tel.: +385-91-515-0887
http://kaiser-immobilien.hr/
Übersicht
  • Typ: Wohnung
  • Fläche: 54 m2
  • Grundstücksfläche: / m2
  • Zimmer: 3 Zimmer
  • Badezimmer: 1 Zimmer
  • Parkplätze: /
  • Parkplatz: /
  • Garage: /
  • Stockwerk: 3
  • Immobilienansicht: /
  • Energieklasse: /
  • Anzahl der Aufrufe: /
Immobiliendetails
Typ
Wohnung
Fläche
54 m2
Grundstücksfläche
/ m2
Zimmer
3 Zimmer
Badezimmer
1 Zimmer
Parkplätze
/
Parkplatz
/
Garage
/
Stockwerk
3
Immobilienansicht
/
Energieklasse
/
Anzahl der Aufrufe
/
Kartenansicht
  • Ort
    PULA
  • Region
    ISTARSKA
Agenturinfo
Kaiser Immobilien
Verkäufer kontaktieren
+
=