Istrien, Pula – 52 m² große Wohnung in einem Neubau in Topla... Istrien, Pula – 52 m² große Wohnung in einem Neubau in Toplage

170.000 €

Ausstattung
  • 52 m2
  • 3
  • 1
Lage

PULA

Beschreibung
Pula ist die größte Stadt der Halbinsel Istrien und bekannt für ihre reiche Geschichte, beeindruckende römische Architektur und malerische Küste. Das Wahrzeichen der Stadt ist das prächtige römische Amphitheater (Arena), eines der am besten erhaltenen weltweit, das noch heute als spektakuläre Bühne für Konzerte und Veranstaltungen dient. Neben seinem kulturellen Erbe bietet Pula zahlreiche Strände, kristallklares Meer und eine entspannte mediterrane Atmosphäre – die perfekte Mischung aus Geschichte, Natur und modernem Leben. Dank des internationalen Flughafens und der hervorragenden Verkehrsanbindung ist Pula ein ideales Reiseziel für Touristen und alle, die ein Zweitwohnsitz an der Adria suchen.

Kaiser Immobilien präsentiert ein modernes Wohnprojekt mit Erdgeschoss und vier Obergeschossen, insgesamt 39 Wohnungen und einer Gewerbefläche. Das Projekt befindet sich in attraktiver Lage im Stadtzentrum von Pula, in der Nähe von Einkaufszentren, Geschäften, Restaurants, Schulen, Kindergärten und allen anderen Einrichtungen, die für einen angenehmen und komfortablen Alltag notwendig sind. Dank der gut ausgebauten Infrastruktur und Verkehrsanbindung erreichen zukünftige Mieter alle Stadtteile bequem. Die Nähe zum Meer, zu Promenaden und Naherholungsgebieten trägt zusätzlich zur hohen Wohnqualität bei.

Das Projekt sieht den Bau eines modernen Mehrfamilienhauses vor. Im Erdgeschoss befinden sich drei Wohnungen, ein 30 m² großer Gewerberaum für ruhige Aktivitäten sowie Garagen- und Außenstellplätze. In den vier Obergeschossen befinden sich jeweils neun Wohnungen, überwiegend Zweizimmerwohnungen, insgesamt also 36 Wohnungen. Ein Aufzug verbindet das Erdgeschoss mit allen Etagen und bietet den zukünftigen Mietern so zusätzlichen Komfort.

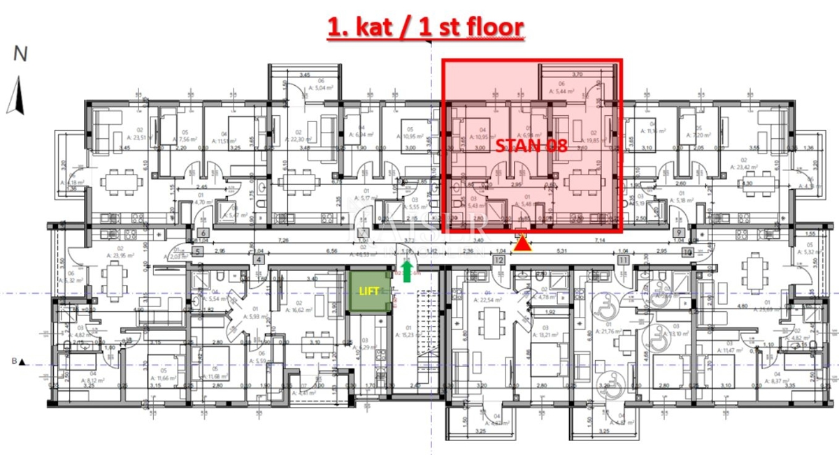
Im ersten Obergeschoss dieses modernen Gebäudes befindet sich eine 52,73 m² große Zweizimmerwohnung, die mit Blick auf maximale Funktionalität und eine angenehme Raumaufteilung gestaltet wurde. Vom 5,48 m² großen Eingangsbereich, der ausreichend Platz für einen Kleiderschrank bietet, gelangt man in alle Räume der Wohnung. Das Herzstück der Wohnung bildet ein heller und freundlicher Wohnbereich von 19,85 m², der Küche, Esszimmer und Wohnzimmer vereint und so ein offenes Raumkonzept schafft, ideal für den Alltag und gesellige Stunden. Vom Wohnzimmer gelangt man auf eine 5,44 m² große Loggia, die zusätzlichen Platz zum Entspannen im Freien bietet. Die Wohnung verfügt über zwei Schlafzimmer: ein größeres mit 10,95 m² und ein kleineres mit 6,94 m², das sich als Kinderzimmer, Gästezimmer oder Arbeitsbereich eignet. Das 5,43 m² große Badezimmer liegt praktischerweise in der Nähe der Schlafzimmer und bietet ausreichend Platz für den täglichen Gebrauch. Die Nordausrichtung der Wohnung sorgt für angenehme Temperaturen in den wärmeren Monaten und eine ruhige Atmosphäre. Die Wohnung wird durch eine Inverter-Klimaanlage beheizt und gekühlt, im Badezimmer sorgt zusätzlich eine elektrische Fußbodenheizung für angenehme Temperaturen. Bei Bau und Einrichtung wurde besonderer Wert auf hochwertige Materialien und Energieeffizienz gelegt. Das Gebäude erhält eine 10 cm dicke Wärmedämmfassade. Die Wohnungen werden mit hochwertigen italienischen Keramikfliesen und erstklassigen Laminaten ausgestattet. Einbruchsichere Eingangstüren gewährleisten die Sicherheit der Mieter. Die Fenster und Türen bestehen aus hochwertigen deutschen PVC-Profilen mit doppeltem IZO-Glas und Argonfüllung, was zusätzlich zur Wärme- und Schalldämmung beiträgt.

Die Außenanlage des Gebäudes wird sorgfältig gestaltet, mit geplanten Grünflächen und bis zu zwei Meter hohen Bäumen. Dies wertet den Raum rund um das Gebäude auf und schafft ein angenehmes, naturnahes Stadtbild.

Der Kauf eines Stellplatzes ist obligatorisch. Käufer können zwischen einem Außenstellplatz und einem Garagenstellplatz wählen. Der Preis für einen Außenstellplatz beträgt 8.162,50 €, die Preise für Garagenstellplätze liegen je nach Größe zwischen 22.446,88 € und 26.528,13 €. Käufer, die bis zum 31.03.2026 kaufen, profitieren von einem besonderen Vorteil. Im Kaufpreis der Wohnung ist ein Außenstellplatz inbegriffen.

Es ist wichtig zu wissen, dass Käufer dieser Wohnungen keine 3%ige Grundsteuer zahlen müssen, was einen zusätzlichen finanziellen Vorteil beim Kauf darstellt.

Die Fertigstellung des Projekts ist für Oktober 2027 geplant.


Diese Immobilie befindet sich in einer äußerst begehrten Lage in Pula und bietet die perfekte Kombination aus ruhigem Wohnen und der Nähe zu allen Annehmlichkeiten der Stadt. In unmittelbarer Nähe befinden sich Geschäfte, Schulen, Kindergärten, Restaurants sowie Sport- und Freizeiteinrichtungen. Das Meer und die berühmten Strände von Pula sind nur wenige Autominuten entfernt. Dank der hochwertigen Bauweise, der funktionalen Raumaufteilung und der exzellenten Lage bietet die Wohnung nicht nur eine hervorragende Gelegenheit für ein angenehmes Familienleben, sondern auch eine sichere Investition zur langfristigen Vermietung oder touristischen Unterbringung in einer der begehrtesten Städte an der istrischen Küste.


Nähe zu Einkaufsmöglichkeiten und anderen Annehmlichkeiten:
Zentrum Pula – 1,2 km
Restaurant – 350 m
Café – 80 m
Geschäft (Tommy, Kaufland, Plodine) – 500 m
Einkaufszentrum Pula City – 550 m
Fitnessstudio – 650 m
Markt – 90 m
Friseur/Kosmetikstudio – 300 m
Grundschule – 1,2 km
Kindergarten – 1,3 km
Busbahnhof – 1,3 km
Bushaltestelle – 5 m
Meer – 2 km
Sehenswürdigkeiten – 1,5 km
Flughafen – 6 km

Entfernung zu größeren Städten:
Pula – Ljubljana: 200 km
Pula – Wien: 580 km
Pula – Budapest: 600 km
Pula – Prag: 900 km
Pula – München: 600 km Pula – Zagreb: 264 km

Die Maklerprovision für den Käufer beträgt 3 % zzgl. MwSt. und wird beim Kauf einer Immobilie mit Abschluss des ersten Rechtsaktes fällig. Interessenten können die Immobilie erst nach Unterzeichnung eines Maklervertrags besichtigen.
ID-Code: 127-220

Wenn Sie die Immobilie persönlich besichtigen möchten, kontaktieren Sie bitte: Jennifer Hofmann
E-Mail: jennifer@kaiser-immobilien.hr
Tel.: +385-91-515-0887
http://kaiser-immobilien.hr/
Übersicht
  • Typ: Wohnung
  • Fläche: 52 m2
  • Grundstücksfläche: / m2
  • Zimmer: 3 Zimmer
  • Badezimmer: 1 Zimmer
  • Parkplätze: /
  • Parkplatz: /
  • Garage: /
  • Stockwerk: 1
  • Immobilienansicht: /
  • Energieklasse: /
  • Anzahl der Aufrufe: /
Immobiliendetails
Typ
Wohnung
Fläche
52 m2
Grundstücksfläche
/ m2
Zimmer
3 Zimmer
Badezimmer
1 Zimmer
Parkplätze
/
Parkplatz
/
Garage
/
Stockwerk
1
Immobilienansicht
/
Energieklasse
/
Anzahl der Aufrufe
/
Kartenansicht
  • Ort
    PULA
  • Region
    ISTARSKA
Agenturinfo
Kaiser Immobilien
Verkäufer kontaktieren
+
=