Vodice - Luxuswohnung S10 mit drei Schlafzimmern, Aufzug, Me... Vodice - Luxuswohnung S10 mit drei Schlafzimmern, Aufzug, Meerblick, zweite Etage

564.750 €

Ausstattung
  • 125 m2
  • 4
  • 2
Lage

VODICE

Beschreibung
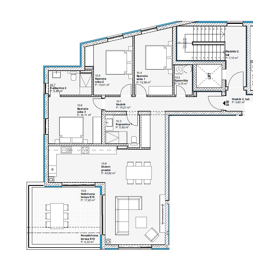
VODICE – WOHNUNG S10, ZWEITES OBERGESCHOSS – MODERNE NEUBAUWOHNUNG MIT AUFZUG, MEERBLICK – 125,50 m2

Zum Verkauf steht die Wohnung S10 im zweiten Obergeschoss eines modernen Wohngebäudes mit Aufzug, gelegen in einer ruhigen und attraktiven Lage in Vodice, nur 700 m vom Strand und 750 m vom Stadtzentrum entfernt.

Das Gebäude mit zeitgemäßem Design umfasst insgesamt 10 Wohnungen (Keller + Erdgeschoss + 1. OG + 2. OG) und wird mit hochwertigen Materialien nach den neuesten Baustandards errichtet. Der geplante Baubeginn ist Anfang 2025, die Fertigstellung im Sommer 2026.

Die Wohnung S10 im 2. Obergeschoss mit einer Gesamtfläche von 125,50 m2 besteht aus: Eingang, Flur, Hauswirtschaftsraum, Badezimmer 1, zwei Schlafzimmern, Schlafzimmer mit eigenem Badezimmer 2, Küche mit Essbereich und Wohnzimmer sowie überdachter Terrasse mit 17,20 m2. Zur Wohnung gehören ein Kellerabteil und ein Stellplatz.
PREIS: 564.750,00 € (MwSt. im Wohnungspreis enthalten).

AUSSTATTUNG UND STANDARDS:

- Styropor-Fassade


- PVC-Fenster in Anthrazitfarbe


- elektrisch betriebene Rollläden


- Steinbodenbeläge


- moderne Badezimmereinrichtungen


- Fußbodenheizung


- Inverter-Klimageräte in allen Zimmern und im Wohnzimmer


- Aufzug im Gebäude



ALLE VERFÜGBAREN WOHNUNGEN IM OBJEKT:

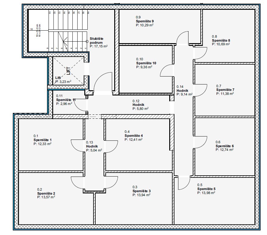
ERDGESCHOSS:

Wohnung S1 mit einer Gesamtfläche von 74,78 m2 besteht aus Eingang, WC/Hauswirtschaftsraum, Flur, Badezimmer, zwei Schlafzimmern, Küche mit Essbereich und Wohnzimmer sowie teilweise überdachter Terrasse mit 19,71 m2. Zur Wohnung gehört ein entsprechender Gartenanteil, Kellerabteil und ein Stellplatz.
PREIS: 291.642,00 € (MwSt. im Wohnungspreis enthalten).

Wohnung S2 mit einer Gesamtfläche von 84,25 m2 besteht aus Eingangsbereich, WC/Hauswirtschaftsraum, Flur, Badezimmer, zwei Schlafzimmern, Küche mit Essbereich und Wohnzimmer sowie überdachter Terrasse mit 17,41 m2. Zur Wohnung gehört ein entsprechender Gartenanteil, Kellerabteil und ein Stellplatz.
PREIS: 345.425,00 € (MwSt. im Wohnungspreis enthalten).

Wohnung S3 mit einer Gesamtfläche von 84,20 m2 besteht aus Eingang, WC/Hauswirtschaftsraum, Badezimmer, Flur, zwei Schlafzimmern, Küche mit Essbereich und Wohnzimmer sowie überdachter Terrasse mit 15,91 m2. Zur Wohnung gehören Kellerabteil und ein Stellplatz.
PREIS: 336.800,00 € (MwSt. im Wohnungspreis enthalten).

Wohnung S4 mit einer Gesamtfläche von 83,73 m2 besteht aus Eingang, Flur, WC/Hauswirtschaftsraum, Badezimmer, zwei Schlafzimmern, Küche mit Essbereich und Wohnzimmer sowie überdachter Terrasse mit 16,73 m2. Zur Wohnung gehören Kellerabteil und ein Stellplatz.
PREIS: 334.920,00 € (MwSt. im Wohnungspreis enthalten).

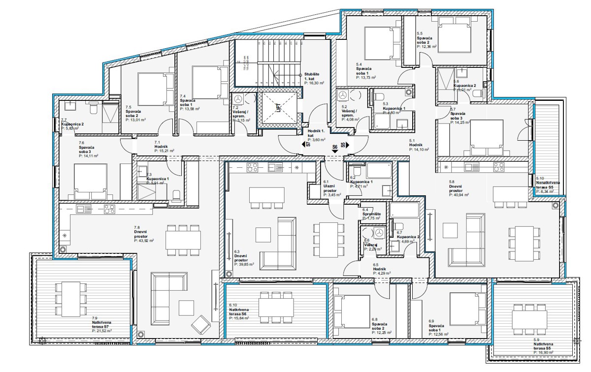
1. OBERGESCHOSS:

Wohnung S5 im 1. Obergeschoss mit einer Gesamtfläche von 120,89 m2 besteht aus Eingang, Flur, WC/Hauswirtschaftsraum, zwei Schlafzimmern, Badezimmer 1, Schlafzimmer mit eigenem Badezimmer 2, Küche mit Essbereich und Wohnzimmer sowie überdachter Terrasse mit 16,90 m2. Zur Wohnung gehören Kellerabteil und ein überdachter Stellplatz.
PREIS: 507.738,00 € (MwSt. im Wohnungspreis enthalten).

Wohnung S6 – VERKAUFT

Wohnung S7 im 1. Obergeschoss mit einer Gesamtfläche von 125,48 m2 besteht aus Eingang, Flur, Hauswirtschaftsraum, Badezimmer 1, zwei Schlafzimmern, Schlafzimmer mit eigenem Badezimmer 2, Küche mit Essbereich und Wohnzimmer sowie überdachter Terrasse mit 21,52 m2. Zur Wohnung gehören Kellerabteil und ein Stellplatz.
PREIS: 527.016,00 € (MwSt. im Wohnungspreis enthalten).

2. OBERGESCHOSS:

Wohnung S8 – VERKAUFT

Wohnung S9 im 2. Obergeschoss mit einer Gesamtfläche von 93,76 m2 besteht aus Eingangsbereich, Badezimmer 1, Abstellraum, Hauswirtschaftsraum, Badezimmer 2, Flur, zwei Schlafzimmern, Küche mit Essbereich und Wohnzimmer sowie überdachter Terrasse mit 12,55 m2. Zur Wohnung gehören Kellerabteil und ein Stellplatz.
PREIS: 421.920,00 € (MwSt. im Wohnungspreis enthalten).

Wohnung S10 im 2. Obergeschoss mit einer Gesamtfläche von 125,50 m2 besteht aus Eingang, Flur, Hauswirtschaftsraum, Badezimmer 1, zwei Schlafzimmern, Schlafzimmer mit eigenem Badezimmer 2, Küche mit Essbereich und Wohnzimmer sowie überdachter Terrasse mit 17,20 m2. Zur Wohnung gehören Kellerabteil und ein Stellplatz.
PREIS: 564.750,00 € (MwSt. im Wohnungspreis enthalten).

Übersicht
  • Typ: Wohnung
  • Fläche: 125 m2
  • Grundstücksfläche: / m2
  • Zimmer: 4 Zimmer
  • Badezimmer: 2 Zimmer
  • Parkplätze: /
  • Parkplatz: 12
  • Garage: /
  • Stockwerk: 2
  • Immobilienansicht: aufs Meer
  • Energieklasse: /
  • Anzahl der Aufrufe: /
Immobiliendetails
Typ
Wohnung
Fläche
125 m2
Grundstücksfläche
/ m2
Zimmer
4 Zimmer
Badezimmer
2 Zimmer
Parkplätze
/
Parkplatz
12
Garage
/
Stockwerk
2
Immobilienansicht
aufs Meer
Energieklasse
/
Anzahl der Aufrufe
/
Kartenansicht
  • Ort
    VODICE
  • Region
    ŠIBENSKO-KNINSKA
Agenturinfo
Naš Dom
Verkäufer kontaktieren
Naš Dom
Hrvoje Zurak
+
=