Exklusive Villa im Herzen der Natur – Pakoštane aus neuer Pe... Exklusive Villa im Herzen der Natur – Pakoštane aus neuer Perspektive

550.000 €

Ausstattung
  • 250 m2
  • 6
  • 3
Lage

PAKOŠTANE

Beschreibung
In einer äußerst attraktiven Lage in Pakoštane, einem der schönsten Orte der Zadarska Riviera, befindet sich diese elegante, neu erbaute Villa, die eine perfekte Verbindung moderner Architektur und natürlicher Umgebung darstellt. Dank der erhöhten Lage bietet die Villa einen spektakulären, offenen Blick auf das Grün und den bezaubernden Vransko-See, was ein einzigartiges Gefühl von Privatsphäre, Ruhe und Luxus schafft.

ÜBER DIE IMMOBILIE

Die Villa befindet sich auf einem großzügigen Grundstück, umgeben von mediterraner Vegetation, die vollständige Privatsphäre gewährleistet. Die gesamte Nettowohnfläche beträgt 195 m2 und wurde mit Fokus auf Funktionalität, Komfort und ästhetische Eleganz geplant. Das Interieur zeichnet sich durch modernes Design aus, während große Glasflächen reichlich natürliches Licht hereinlassen und eine harmonische Verbindung zwischen Innen- und Außenbereich schaffen.

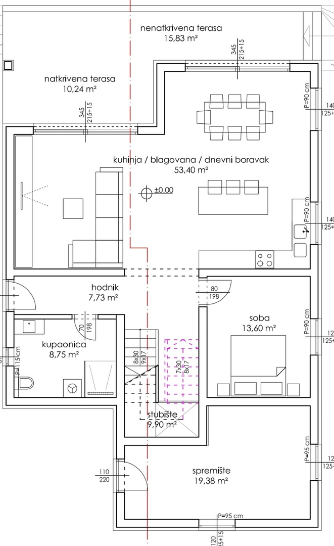
GRUNDRISS

Erdgeschoss

Das Erdgeschoss ist als zentraler Aufenthalts- und Gemeinschaftsbereich konzipiert und umfasst:

- Großzügiges Open-Space-Wohnzimmer mit Küche und Essbereich (53,40 m2)


- Ausgang zur überdachten Terrasse (10,24 m2) und zur offenen Terrasse (15,83 m2) mit Pool


- Schlafzimmer (13,60 m2)


- Badezimmer (8,75 m2)


- Flur (7,73 m2)


- Großer Abstellraum (19,38 m2)


- Innenliegendes Treppenhaus



Obergeschoss

Das Obergeschoss stellt den privaten Bereich für Erholung und Komfort dar und besteht aus:

- Vier geräumige Schlafzimmer

- Zimmer 1 – 18,89 m2


- Zimmer 2 – 18,97 m2


- Zimmer 3 – 13,52 m2


- Zimmer 4 – 13,60 m2




- Zwei modern ausgestattete Badezimmer

- Badezimmer 1 – 8,58 m2


- Badezimmer 2 – 8,62 m2




- Flur (10,33 m2)


- Unüberdachte Terrasse (19,00 m2) mit Panoramablick auf den Vransko-See und die umliegende Landschaft



ZUSÄTZLICHE AUSSTATTUNG UND ANNEHMLICHKEITEN

- Luxuriöser Pool mit Sonnenterrasse


- Mehrere Parkplätze auf dem Grundstück


- Hochwertige Bauweise und moderne Materialien


- Vollständige Klimatisierung aller Räume


- Große Glasflächen, die maximale Helligkeit und offenen Ausblick gewährleisten


- Moderne Küche ausgestattet mit hochwertigen Geräten



Die Villa wurde entworfen, um die höchsten Standards modernen Wohnens sowie luxuriösen touristischen Vermietens zu erfüllen.

LAGE

Die Immobilie befindet sich in Pakoštane, an einer einzigartigen Position mit Blick auf den Vransko-See. Diese Lage bietet eine ideale Kombination aus natürlichem Ambiente und Nähe zu urbanen Einrichtungen. In unmittelbarer Nähe liegen die Städte Zadar und Šibenik sowie die Nationalparks Kornati und Krka sowie der Naturpark Vransko-See.

Die Lage ist besonders attraktiv für Wassersportler, Naturliebhaber und Aktivurlauber, aber auch für alle, die eine ruhige Umgebung in Meeresnähe suchen.

Diese Immobilie stellt eine ausgezeichnete Gelegenheit für ein luxuriöses Familienleben sowie eine äußerst wertvolle Investition in eine hochwertige touristische Vermietung dar.



Für weitere Informationen und Besichtigungen kontaktieren Sie uns unter:

M+385 99 658 46 92
E info@horizont-nekretnine.hr
www.horizont-nekretnine.hr

Übersicht
  • Typ: Haus
  • Fläche: 250 m2
  • Grundstücksfläche: 1800 m2
  • Zimmer: 6 Zimmer
  • Badezimmer: 3 Zimmer
  • Parkplätze: /
  • Parkplatz: 36
  • Garage: /
  • Stockwerk: /
  • Immobilienansicht: aufs Meer
  • Energieklasse: /
  • Anzahl der Aufrufe: /
Immobiliendetails
Typ
Haus
Fläche
250 m2
Grundstücksfläche
1800 m2
Zimmer
6 Zimmer
Badezimmer
3 Zimmer
Parkplätze
/
Parkplatz
36
Garage
/
Stockwerk
/
Immobilienansicht
aufs Meer
Energieklasse
/
Anzahl der Aufrufe
/
Kartenansicht
  • Ort
    PAKOŠTANE
  • Region
    ZADARSKA
Agenturinfo
HORIZONT NEKRETNINE d.o.o.
Verkäufer kontaktieren
HORIZONT NEKRETNINE d.o.o.
Marko Bošnjaković
+
=