VIR Wohnung VIR Wohnung

185.000 €

Ausstattung
  • 66 m2
  • 3
  • 1
Lage

VIR

Beschreibung
OTOK VIR – Erdgeschosswohnung mit Garten + Parkplatz – 350 Meter vom Meer entfernt.

Zum Verkauf steht eine Erdgeschosswohnung in einem modernen Neubau an attraktiver Lage auf der Insel Vir, nur 350 Meter vom Meer und nur 5 Minuten gemütlicher Spaziergang durch den Kiefernwald zum Strand entfernt.

Perfekte Gelegenheit für ein ruhiges Familienleben, Erholung oder touristische Investition!

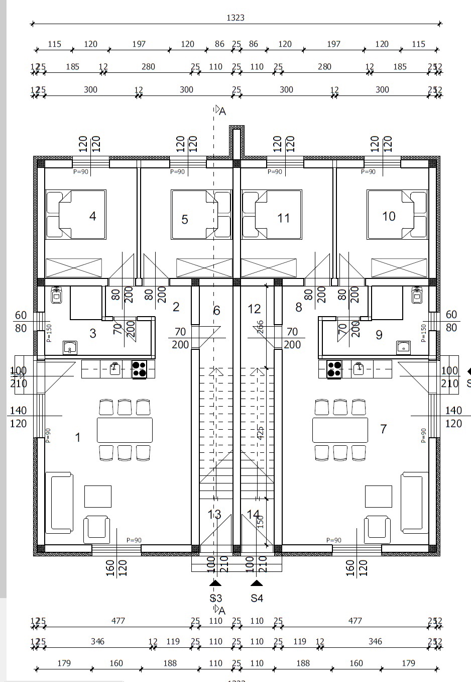
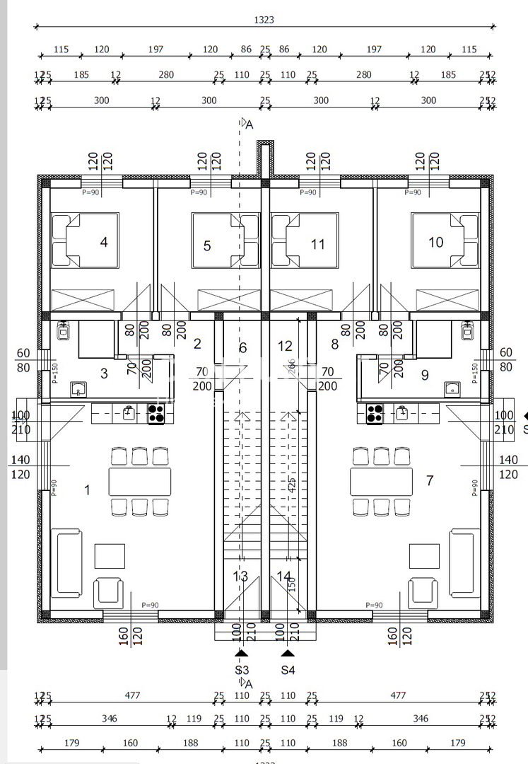
WOHNUNG 1 – ERDGESCHOSS LINKS (66,46 m2) – blau markiert:

- Küche und Wohnzimmer – 28,81 m2


- Vorraum – 4,43 m2


- Badezimmer – 5,98 m2


- Zimmer 1 – 10,80 m2


- Zimmer 2 – 10,80 m2


- Abstellraum – 5,64 m2


- Gesamt: 66,46 m2





Technische Merkmale und Ausstattung der Immobilie:

- PVC-Fenster und Türen mit Insektenschutzgittern


- Elektrisch bedienbare Rollläden (elektrischer Schalter)


- Klimaanlage in jedem Zimmer (Kühlen/Heizen)


- Badezimmer mit Fußbodenheizung und Handtuchheizkörper


- Bodenbeläge:

- Fliesen – Badezimmer, Küche und Flur


- Laminat – Wohnzimmer und Schlafzimmer




- Wassertank


- Beton-Septiktank



Zusätzlich:

- Gebäudeisolierung (Fassade) 10 cm


- Geplante Anschlussmöglichkeit an die städtische Wasserversorgung und Kanalisation durch die Gemeinde Vir



WEITERE VORTEILE:

- Eigener Parkplatz (12,50 m2) – im Grundbuch eingetragen


- Großer privater Garten (81,43 m2) – ideal für Terrasse, Grill, Jacuzzi oder Kinderspielplatz – im Grundbuch eingetragen


- Ruhige Lage, umgeben von Natur



PREIS:

210.000 € – bezugsfertig (fertige Immobilie)
185.000 € – bezugsfertig (Kauf in Bauphase)

Die Immobilie ist derzeit zu 70 % fertiggestellt.
Geplante Fertigstellung bis Ende 2026.

Der Käufer zahlt keine 3 % Immobilienertragsteuer. Mögliche Rückerstattung der Mehrwertsteuer in Höhe von 50 % für Personen, die für APN qualifiziert sind (Details bitte selbst prüfen)



Für alle Fragen stehe ich Ihnen gerne zur Verfügung.

Saša Martišek,
lizenzierter Agent
T: 097 75 47 775
E: sasa.martisek@c21.hr

Übersicht
  • Typ: Wohnung
  • Fläche: 66 m2
  • Grundstücksfläche: / m2
  • Zimmer: 3 Zimmer
  • Badezimmer: 1 Zimmer
  • Parkplätze: /
  • Parkplatz: 12
  • Garage: /
  • Stockwerk: /
  • Immobilienansicht: /
  • Energieklasse: /
  • Anzahl der Aufrufe: /
Immobiliendetails
Typ
Wohnung
Fläche
66 m2
Grundstücksfläche
/ m2
Zimmer
3 Zimmer
Badezimmer
1 Zimmer
Parkplätze
/
Parkplatz
12
Garage
/
Stockwerk
/
Immobilienansicht
/
Energieklasse
/
Anzahl der Aufrufe
/
Kartenansicht
  • Ort
    VIR
  • Region
    ZADARSKA
Agenturinfo
  • CENTURY 21 Lider Nekretnine
  • CENTURY 21 Lider Nekretnine
  • Adresse Ul. bana Josipa Jelačića 1d, Zadar
  • Telefon +38598492873
CENTURY 21 Lider Nekretnine
Verkäufer kontaktieren
CENTURY 21 Lider Nekretnine
Saša Martišek
+
=