Vodice - S3 Kuća mit Pool, Dachterrasse mit Meerblick Vodice - S3 Kuća mit Pool, Dachterrasse mit Meerblick

660.000 €

Ausstattung
  • 204 m2
  • 5
  • 3
Lage

VODICE

Beschreibung
Vodice-**NEUBAU** werden luxuriöse Reihenhäuser mit Pools, Dachterrassen und Meerblick verkauft. Das Haus moderner Architektur wird aus hochwertigen Materialien gebaut und nach dem neuesten Baustandard ausgestattet. Zur Ausstattung gehören:

- Styropor-Fassade,
- PVC-Fenster,
- Rollläden mit elektrischem Antrieb,
- Hebeschiebetüren,
- keramische Bodenbeläge in Badezimmern, Küche und Wohnzimmer,
- Laminat in den Schlafzimmern,
- moderne Badezimmereinrichtungen,
- elektrischer Warmwasserboiler,
- INVERTER-Klimaanlage Heizung/Kühlung in Schlafzimmern und Wohnzimmer,
- Fußbodenheizung mit Wärmepumpe,
- Videoüberwachung...

Jede Einheit verfügt über einen Pool, einen entsprechenden Gartenanteil und zwei Parkplätze. Der geplante Baubeginn ist 09/2025, die geplante Fertigstellung ist Juni 202.

Das Objekt befindet sich in ruhiger Lage mit herrlichem Meer- und Umgebungsausblick, 650 m vom Strand und 1100 m vom Zentrum von Vodice entfernt.

Haus S3 mit einer gesamten Nettogrundfläche von 204,04 m² besteht aus drei Etagen: Erdgeschoss, Obergeschoss und Dachterrasse mit Dachhaus. Das Erdgeschoss mit einer Nettogrundfläche von 78,17 m² besteht aus Eingang, Eingangsbereich, Abstellraum, Badezimmer, Schlafzimmer, Küche mit Essbereich und offenem Wohnzimmer mit Ausgang zur überdachten Terrasse von 12,14 m², an die sich ein Pool von 15 m² und ein Garten anschließen. Über eine Innentreppe gelangt man in das Obergeschoss, das aus Flur, Badezimmer, Schlafzimmer mit Ausgang zur unüberdachten Terrasse von 4,60 m² sowie dem Master-Schlafzimmer mit Badezimmer und Ausgang zur überdachten Terrasse von 10,67 m² besteht. Über eine Innentreppe gelangt man in die zweite Etage des Hauses, die aus Flur, überdachter Terrasse von 9,70 m² und unüberdachter Terrasse von 66,30 m² besteht. Zum Haus gehören ein Garten/Hof mit einer Fläche von 87,31 m² und ein Parkplatz mit einer Fläche von 34,56 m². PREIS: 660.000,00 €



WEITERE VERFÜGBARE OBJEKTE:

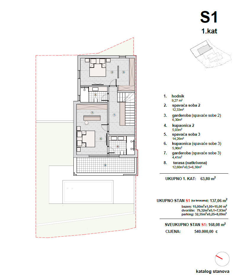
​​​​Haus S1 mit einer gesamten Nettogrundfläche von 137,06 m² besteht aus zwei Etagen: Erdgeschoss + Obergeschoss. Das Erdgeschoss mit einer Nettogrundfläche von 73,26 m² besteht aus Eingangsbereich, Badezimmer, Schlafzimmer, Küche mit Essbereich und offenem Wohnzimmer mit Ausgang zur überdachten Terrasse von 14,20 m², an die sich ein Pool von 15 m² anschließt. Über eine Innentreppe gelangt man in das Obergeschoss mit einer Nettogrundfläche von 63,80 m², das aus Flur, Schlafzimmer mit Ankleide, Badezimmer sowie Master-Schlafzimmer mit Ankleide und eigenem Badezimmer sowie überdachter Terrasse von 12,60 m² besteht. Zur Wohnung gehören außerdem ein Hof/Garten mit einer Fläche von 79,32 m² und ein Parkplatz mit einer Fläche von 32,35 m². PREIS: 540.000,00 €

Wohnung S2 mit einer gesamten Nettogrundfläche von 193,67 m² besteht aus drei Etagen: Erdgeschoss + Obergeschoss + Dachterrasse. Das Erdgeschoss mit einer Nettogrundfläche von 75,04 m² besteht aus Eingangsbereich, Badezimmer, Schlafzimmer, Küche mit Essbereich und offenem Wohnzimmer mit Ausgang zur überdachten Terrasse von 13,18 m², an die sich ein Pool von 15 m² anschließt. Über eine Innentreppe gelangt man in das Obergeschoss mit einer Nettogrundfläche von 67,55 m², das aus Flur, Schlafzimmer, Badezimmer sowie Master-Schlafzimmer mit Ankleide und eigenem Badezimmer sowie überdachter Terrasse von 12,60 m² besteht. Über eine Innentreppe gelangt man in die oberste Etage, die aus Flur und Dachterrasse mit einer gesamten Nettogrundfläche von 21,63 m² besteht, welche aus überdachter und unüberdachter Terrasse besteht. Zur Wohnung gehören außerdem ein Hof/Garten mit einer Fläche von 50,93 m² sowie ein Parkplatz mit einer Fläche von 37,43 m². PREIS: 635.000,00 €

Übersicht
  • Typ: Haus
  • Fläche: 204 m2
  • Grundstücksfläche: 121 m2
  • Zimmer: 5 Zimmer
  • Badezimmer: 3 Zimmer
  • Parkplätze: /
  • Parkplatz: 24
  • Garage: /
  • Stockwerk: /
  • Immobilienansicht: aufs Meer
  • Energieklasse: 2
  • Anzahl der Aufrufe: /
Immobiliendetails
Typ
Haus
Fläche
204 m2
Grundstücksfläche
121 m2
Zimmer
5 Zimmer
Badezimmer
3 Zimmer
Parkplätze
/
Parkplatz
24
Garage
/
Stockwerk
/
Immobilienansicht
aufs Meer
Energieklasse
2
Anzahl der Aufrufe
/
Kartenansicht
  • Ort
    VODICE
  • Region
    ŠIBENSKO-KNINSKA
Agenturinfo
Naš Dom
Verkäufer kontaktieren
Naš Dom
Hrvoje Zurak
+
=