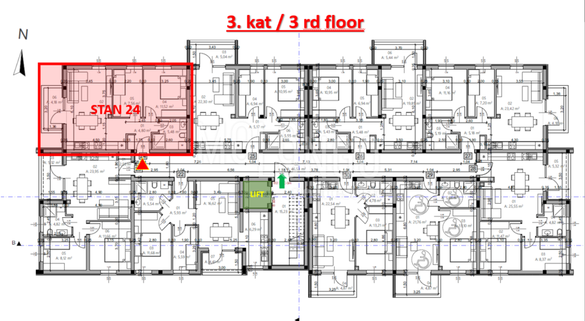
ISTRA, PULA - Novogradnja, stan 24 – 3. kat, 54,95 m² ISTRA, PULA - Novogradnja, stan 24 – 3. kat, 54,95 m²

177.000 €

Ausstattung
  • 54 m2
  • 3
  • 1
Lage

PULA

Beschreibung
PULA – MONVIDAL | NEUBAU | WOHNUNG 15 – 2. STOCK | 54,95 m²

Zum Verkauf steht Wohnung Nr. 15 in einem neuen Wohnprojekt im Stadtteil Monvidal in Pula, Gebäude B, im 2. Stock eines modernen Mehrfamilienhauses mit Aufzug.

GRUNDINFORMATIONEN:

Etage: 2. Stock
Gesamtfläche: 54,95 m²
Ausrichtung: Nordwest

Schlafzimmer: 2

Badezimmer / WC: 1

geplanter Einzug: Oktober 2027

Die Wohnung verfügt über einen funktionalen und gut durchdachten Grundriss mit viel Tageslicht dank Südausrichtung.

AUSSTATTUNG & STANDARD:

schlüsselfertige Übergabe

Fußbodenheizung im Badezimmer

Klimaanlagen in den übrigen Räumen

hochwertige Wärmedämmung – hohe Energieeffizienzklasse

italienische Keramikfliesen und Laminatböden erster Klasse

einbruchhemmende Eingangstür

PVC-Fenster eines deutschen Herstellers mit Doppelverglasung

WEITERE VORTEILE:

Aufzug

Garage oder Außenstellplatz möglich

gepflegte Grünflächen

ausgezeichnete Lage – Nähe zu allen wichtigen Einrichtungen

Ideal für komfortables Wohnen oder als sichere Kapitalanlage.

Für weitere Informationen kontaktieren Sie uns gerne.
Übersicht
  • Typ: Wohnung
  • Fläche: 54 m2
  • Grundstücksfläche: / m2
  • Zimmer: 3 Zimmer
  • Badezimmer: 1 Zimmer
  • Parkplätze: /
  • Parkplatz: /
  • Garage: 1
  • Stockwerk: 3
  • Immobilienansicht: /
  • Energieklasse: /
  • Anzahl der Aufrufe: /
Immobiliendetails
Typ
Wohnung
Fläche
54 m2
Grundstücksfläche
/ m2
Zimmer
3 Zimmer
Badezimmer
1 Zimmer
Parkplätze
/
Parkplatz
/
Garage
1
Stockwerk
3
Immobilienansicht
/
Energieklasse
/
Anzahl der Aufrufe
/
Kartenansicht
  • Ort
    PULA
  • Region
    ISTARSKA
Agenturinfo
Molo Longo
Verkäufer kontaktieren
+
=