Pula, Doppelhaus mit Pool und großer Terrasse Pula, Doppelhaus mit Pool und großer Terrasse

470.000 €

Ausstattung
  • 141 m2
  • 4
  • 3
Lage

PULA

Beschreibung
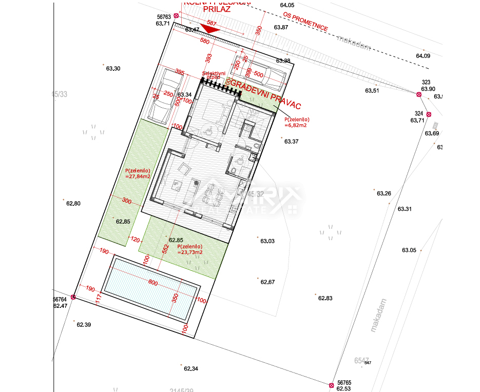
Zum Verkauf steht eine moderne Doppelhaushälfte mit einer Gesamtfläche von 141,26 m², gelegen auf einem 283 m² großen Grundstück, in ruhiger Umgebung – ideal für Familienleben, Urlaub oder eine Investition in den Tourismus. Die Immobilie wird im hochwertigen Rohbauzustand verkauft: PVC-Fenster sind eingebaut, Keramikfliesen verlegt, Sanitäreinrichtungen installiert und Klimaanlagen eingebaut. Der Käufer muss lediglich die Innenausstattung mit Möbeln nach eigenen Wünschen ergänzen.

Das Haus besteht aus Erdgeschoss und Obergeschoss. Im Erdgeschoss mit einer Fläche von 62,25 m² befinden sich der Eingangsbereich, ein geräumiges Wohnzimmer, verbunden mit Küche und Essbereich im offenen Konzept, ein Schlafzimmer, ein Badezimmer, ein separates WC sowie ein Flur. Eine Innentreppe führt ins Obergeschoss mit einer Gesamtfläche von 79,01 m², wo sich zwei Schlafzimmer, ein gemeinsames Badezimmer und ein Flur befinden. Besonderen Wert bietet die große Terrasse, teilweise überdacht und teilweise offen, mit direktem Zugang von beiden Schlafzimmern – ideal zum Genießen warmer Abende.

Im Hof ist ein rechteckiger Pool mit den Maßen 4 x 8 Meter und einer Gesamtfläche von 32 m² vorgesehen – perfekt zur sommerlichen Erfrischung und Entspannung. Zum Grundstück gehören außerdem zwei private Parkplätze im eingezäunten Bereich.

Dieses Haus stellt eine ausgezeichnete Gelegenheit dar, ein modernes Zuhause an der Adriaküste zu schaffen oder als Investition mit großem Potenzial für touristische Vermietung zu nutzen. Zusätzlich besteht die Möglichkeit, beide Wohneinheiten zu erwerben und somit das gesamte Objekt zu übernehmen.

Für weitere Informationen, Grundrisse oder eine Besichtigung kontaktieren Sie uns gerne.
Übersicht
  • Typ: Haus
  • Fläche: 141 m2
  • Grundstücksfläche: 283 m2
  • Zimmer: 4 Zimmer
  • Badezimmer: 3 Zimmer
  • Parkplätze: /
  • Parkplatz: /
  • Garage: /
  • Stockwerk: /
  • Immobilienansicht: /
  • Energieklasse: 1
  • Anzahl der Aufrufe: /
Immobiliendetails
Typ
Haus
Fläche
141 m2
Grundstücksfläche
283 m2
Zimmer
4 Zimmer
Badezimmer
3 Zimmer
Parkplätze
/
Parkplatz
/
Garage
/
Stockwerk
/
Immobilienansicht
/
Energieklasse
1
Anzahl der Aufrufe
/
Kartenansicht
  • Ort
    PULA
  • Region
    ISTARSKA
Agenturinfo
Matrix Real Estate
Verkäufer kontaktieren
Matrix Real Estate
Matrix Real Estate
+
=