Malinska, Insel Krk, neues modernes Doppelhaus, Pool, Aussic... Malinska, Insel Krk, neues modernes Doppelhaus, Pool, Aussicht, Grundstück, Verkauf

520.000 €

Ausstattung
  • 132 m2
  • 4
  • 3
Lage

MALINSKA , KRK

Beschreibung
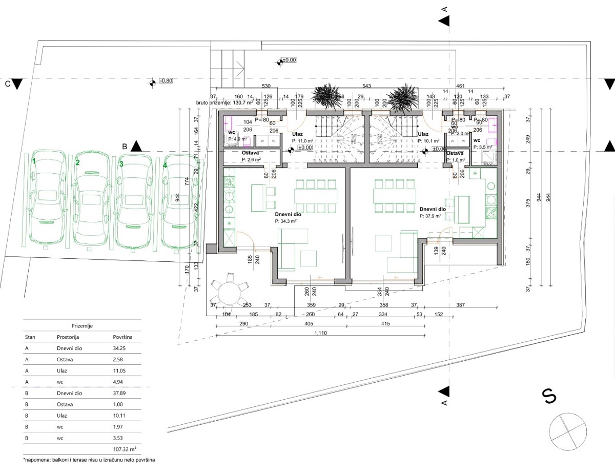
Malinska, Insel Krk, Zentrum, zum Verkauf steht ein attraktives Doppelhaus mit modernem Design. Die Lage 600 m vom Meer und Strand entfernt ist ein besonderer Vorteil, da die Wohngegend ruhig und gleichzeitig gut vom Zentrum aus erreichbar ist. Auf einer Gesamtfläche von 132,73 m² ist das Haus auf Erdgeschoss und Obergeschoss verteilt. Im Erdgeschoss befindet sich ein „Open Space“ Wohnbereich mit Küche, Esszimmer, Abstellraum und Badezimmer. Vor diesem Bereich liegt eine überdachte Terrasse. Im ersten Stock befinden sich drei Schlafzimmer, von denen eines mit eigenem Badezimmer ausgestattet ist, während die übrigen zwei Zimmer sich ein zweites Badezimmer teilen. Der Ausgang des „Master“-Schlafzimmers führt auf eine überdachte Terrasse von 7,40 m² mit Meerblick. Auf dem gepflegten Grundstück von 157 m² befindet sich ein 30 m² großer Pool mit Sonnenterrasse und Technikraum. Der Bau wird im Laufe der Jahre 2025/2026 erfolgen, wobei hochwertige Materialien und Ausstattung vorgesehen sind (Multi-Split-Klimaanlage, Fußbodenheizung in den Badezimmern, Flur und Erdgeschoss, Parkett in den Schlafzimmern, italienische Keramik, PVC-Fenster, elektrische Rollladenheber, einbruchhemmende Türen, Insektenschutzgitter, 10 cm Dämmung sowie Vorbereitung für Solarpaneele auf dem Dach, Alarm- und Videoüberwachung). Auf dem gepflegten Grundstück gibt es Park- und Rangierflächen für zwei Autos (25 m²). An einem der Stellplätze wird eine Vorbereitung für eine Ladestation für Elektroautos installiert.

Ausgezeichnete Gelegenheit zur Investition in ein komplett neues Zuhause am Meer.

Willkommen zur Besichtigung.

Übersicht
  • Typ: Haus
  • Fläche: 132 m2
  • Grundstücksfläche: 156 m2
  • Zimmer: 4 Zimmer
  • Badezimmer: 3 Zimmer
  • Parkplätze: /
  • Parkplatz: 24
  • Garage: /
  • Stockwerk: /
  • Immobilienansicht: aufs Meer
  • Energieklasse: /
  • Anzahl der Aufrufe: /
Immobiliendetails
Typ
Haus
Fläche
132 m2
Grundstücksfläche
156 m2
Zimmer
4 Zimmer
Badezimmer
3 Zimmer
Parkplätze
/
Parkplatz
24
Garage
/
Stockwerk
/
Immobilienansicht
aufs Meer
Energieklasse
/
Anzahl der Aufrufe
/
Kartenansicht
  • Ortsteil
    KRK
  • Ort
    MALINSKA
  • Region
    PRIMORSKO-GORANSKA
Agenturinfo
VERO KRK nekretnine
Verkäufer kontaktieren
+
=