Malinska, Insel Krk, Neubau, modernes Doppelhaus, Aussicht, ... Malinska, Insel Krk, Neubau, modernes Doppelhaus, Aussicht, Grundstück, Verkauf

487.000 €

Ausstattung
  • 122 m2
  • 4
  • 3
Lage

MALINSKA , KRK

Beschreibung
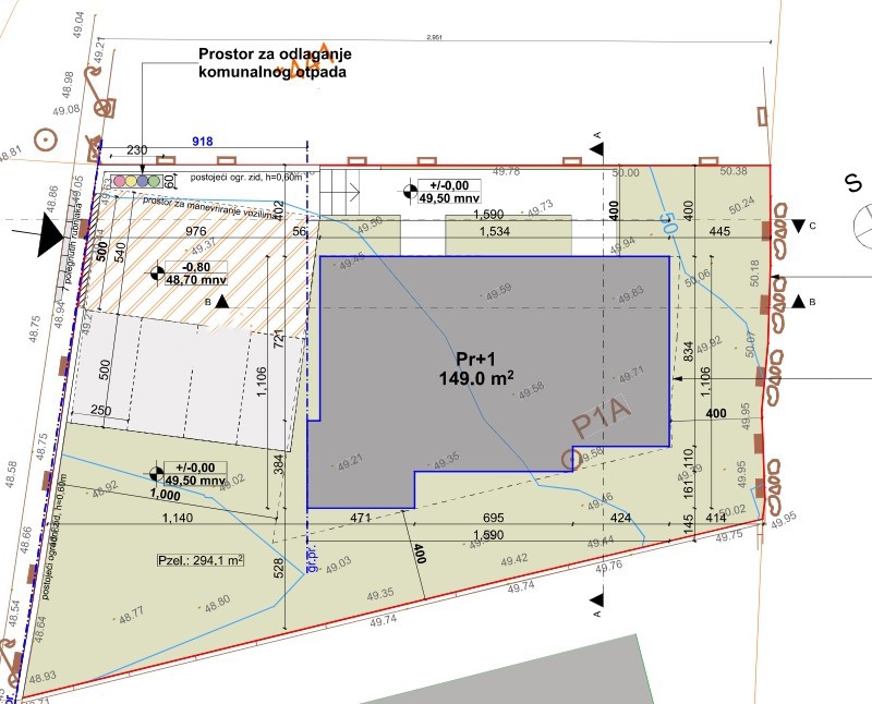
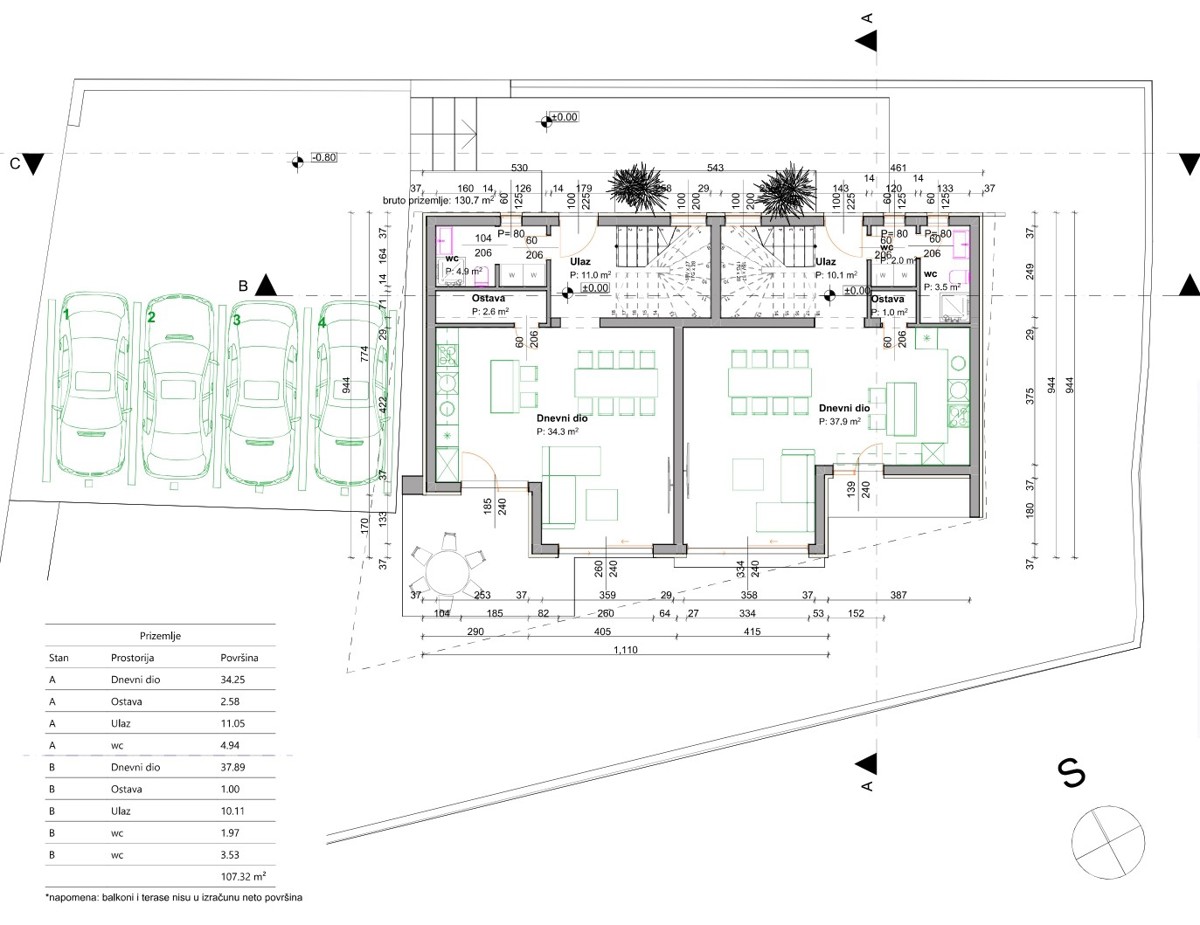
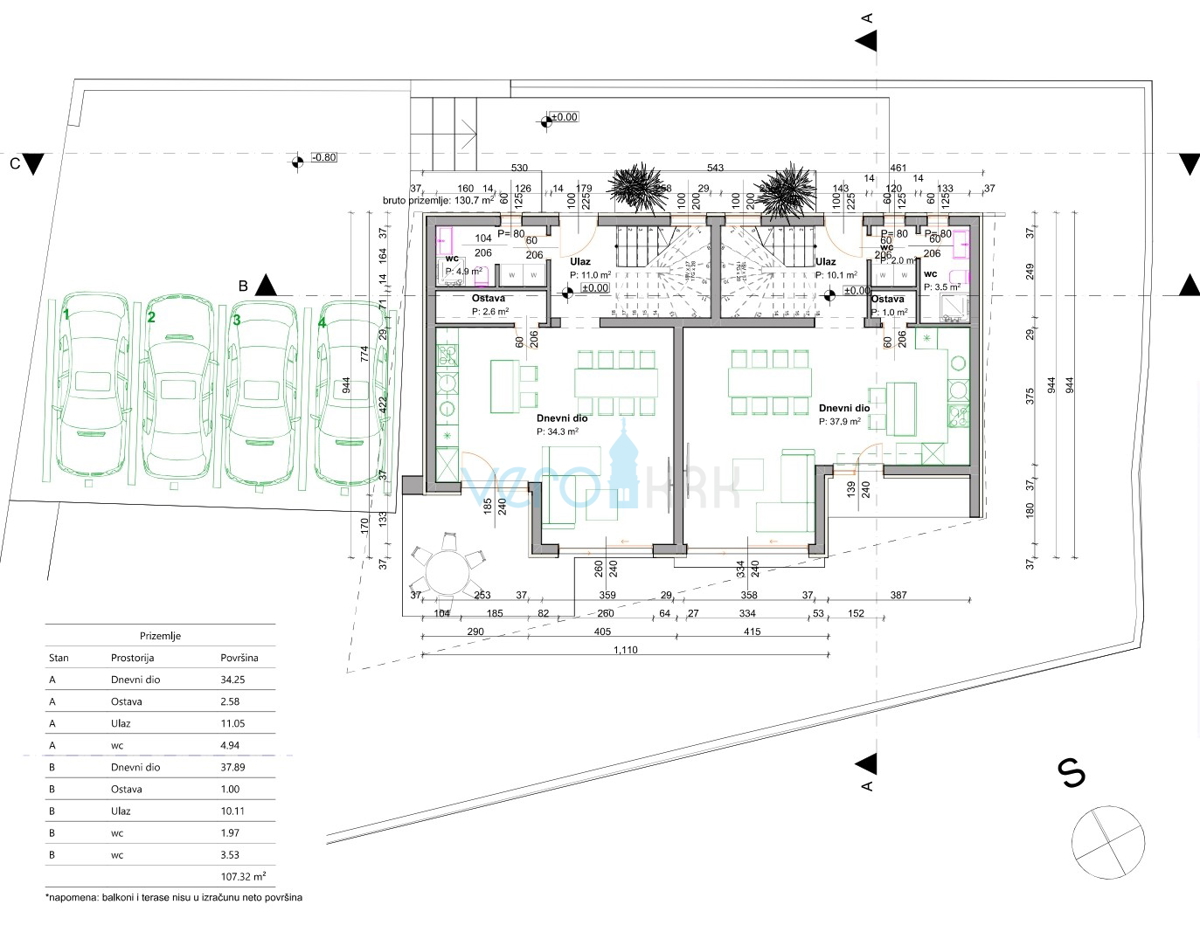
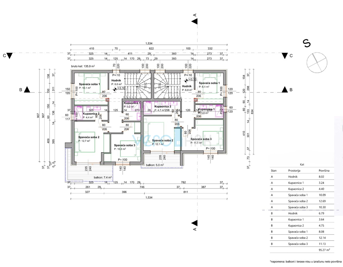
Malinska, Insel Krk, Zentrum, angeboten wird eine attraktive Doppelhaushälfte mit modernem Design. Die Lage 600 m vom Meer und Strand entfernt ist ein besonderer Vorteil, da die Wohngegend ruhig und dennoch leicht vom Zentrum aus erreichbar ist. Auf einer Gesamtfläche von 122,81 m2 ist das Haus auf Erdgeschoss und Obergeschoss verteilt. Im Erdgeschoss befindet sich ein „Open Space“ Wohnbereich mit Küche, Esszimmer, Abstellraum und Badezimmer. Vor diesem Bereich gibt es eine überdachte Terrasse. Im ersten Stock befinden sich drei Schlafzimmer, von denen eines mit eigenem Badezimmer ausgestattet ist, während die anderen beiden Zimmer ein zweites Badezimmer teilen. Der Ausgang des „Master“-Schlafzimmers führt auf eine überdachte Terrasse von 5 m2 mit Meerblick. Auf dem 110 m2 großen Grundstück besteht die Möglichkeit, einen 30 m2 großen Pool mit Sonnendeck und Technikraum zu errichten. Der Bau wird in den Jahren 2025/2026 erfolgen, wobei hochwertige Materialien und Ausstattung vorgesehen sind (Multi-Split-Klimaanlage, Fußbodenheizung in den Badezimmern, Flur und Erdgeschoss, Parkett in den Schlafzimmern, italienische Keramik, PVC-Fenster, elektrische Rollladenheber, einbruchhemmende Türen, Fliegengitter, 10 cm Isolierung sowie Vorbereitung für Solarpaneele auf dem Dach, Alarm- und Videoüberwachung). Auf dem gepflegten Grundstück gibt es Parkplätze und Rangierflächen für zwei Autos (25 m2). An einem der Parkplätze wird eine Vorbereitung für eine Ladestation für Elektroautos vorhanden sein. Eine ausgezeichnete Gelegenheit, in ein komplett neues Zuhause am Meer zu investieren.

Willkommen zur Besichtigung.

Übersicht
  • Typ: Haus
  • Fläche: 122 m2
  • Grundstücksfläche: 110 m2
  • Zimmer: 4 Zimmer
  • Badezimmer: 3 Zimmer
  • Parkplätze: /
  • Parkplatz: 24
  • Garage: /
  • Stockwerk: /
  • Immobilienansicht: aufs Meer
  • Energieklasse: /
  • Anzahl der Aufrufe: /
Immobiliendetails
Typ
Haus
Fläche
122 m2
Grundstücksfläche
110 m2
Zimmer
4 Zimmer
Badezimmer
3 Zimmer
Parkplätze
/
Parkplatz
24
Garage
/
Stockwerk
/
Immobilienansicht
aufs Meer
Energieklasse
/
Anzahl der Aufrufe
/
Kartenansicht
  • Ortsteil
    KRK
  • Ort
    MALINSKA
  • Region
    PRIMORSKO-GORANSKA
Agenturinfo
VERO KRK nekretnine
Verkäufer kontaktieren
+
=