Haus Brodarica, Šibenik - Okolica, 465m2 Haus Brodarica, Šibenik - Okolica, 465m2

850.750 €

Ausstattung
  • 297 m2
  • 10
  • 10
Lage

BRODARICA , ŠIBENIK

Beschreibung
Elegante freistehende Villa direkt am Meer – Brodarica, Šibenik

Zu Verkaufen: Elegante freistehende Villa nur wenige Schritte vom Meer entfernt, gelegen im ruhigen Küstenort Brodarica, der für sein kristallklares Adriameer, gepflegte Strände und die hervorragende Verkehrsanbindung an die Stadt Šibenik und die Umgebung bekannt ist.

Hauptmerkmale
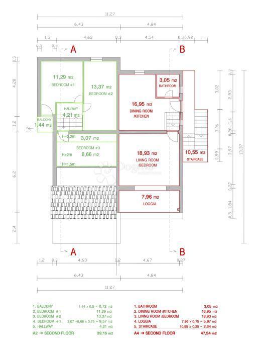
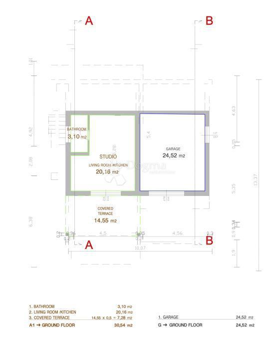
Diese großzügige Villa erstreckt sich über drei Ebenen – Erdgeschoss, zwei Obergeschosse und ein Dachgeschoss – mit einer bebauten Gesamtfläche von 297 m² (Netto 245 m²) auf einem Grundstück von 360 m². Die Gesamtnutzfläche inklusive Garten und Parkplätzen beträgt beeindruckende 465 m² (Netto 272 m²). Die Hauptfassade ist nach Südwesten ausgerichtet und bietet einen traumhaften Meerblick.

Das Haus besteht aus vier vollständig unabhängigen, modern ausgestatteten Wohneinheiten, ideal für komfortables Familienwohnen oder die touristische Vermietung. Jede Einheit verfügt über einen eigenen Eingang und privaten Außenbereich: großzügige Terrassen, Loggien mit blick aufs Meer oder gemütliche Rückzugsorte für Privatsphäre und Entspannung.

Durchdachte Raumaufteilung
Das Haupthaus erstreckt sich über drei Etagen und bietet eine große Terrasse mit bioklimatischer Pergola, die das ganze Jahr über genutzt werden kann. Die weiteren Apartments verteilen sich über die Stockwerke, jeweils mit Loggien und Terrassen, die Privatsphäre und offene Meerblicke verbinden.

Hochwertige Bauweise und Ausstattung
Die Villa wurde mit hochwertigen Materialien erbaut und mit erstklassiger Ausstattung versehen. 2020 wurde das Gebäude komplett renoviert: neues Dach, wärmegedämmte Fassade (StoTherm Vario) sowie hochwertige PVC- und Aluminiumfenster.

Alle Wohneinheiten verfügen über Danfoss elektrische Fußbodenheizung, Redwell Infrarotheizung, Klimaanlagen sowie eine Buderus Solaranlage für Warmwasser mit Viessmann Vitocell Speicher. Bäder und Küchen sind mit Marazzi Keramik, Sanitäranlagen von Ceramica Flaminia, Geberit, TECE sowie Armaturen von Hansgrohe und Gessi ausgestattet.

Energieeffizienz und moderne Technik
Die Villa verfügt über eine doppelte Solaranlage (16 kWh) mit zwei Fronius Wechselrichtern, erstklassigen Elektro-Schutz von Schneider Electric und eine eigene Wallbox Evlink Ladestation (22 kW) für Elektrofahrzeuge. Der 3-Phasen-Anschluss, ein bidirektionaler Zähler und Fernablesung sorgen für geringere Betriebskosten.

Außenbereich und Garten
Der Hof ist mit Bradstone Old Town Pflastersteinen in natürlichem Weißton gestaltet. Ein automatisches Rain Bird Bewässerungssystem pflegt das mediterrane Grün, ideal für einen Garten oder eine Lounge-Zone. Die Garage mit Hörmann Premium Plus Tor mit Fernbedienung sorgt für Sicherheit und Komfort, während der Keller im Hof zusätzlichen Stauraum, einen Weinkeller oder eine Sommerküche bietet.

Sicherheit und Komfort
Das Garagentor lässt sich per Bluetooth oder Fernbedienung öffnen, die Außenbeleuchtung ist hochwertig.

Attraktive Investition
Diese Villa vereint elegantes Familienwohnen und touristisches Investitionspotenzial – alle Wohneinheiten sind vollständig separat, die Nachfrage nach hochwertiger Unterkunft ist hoch und der Wartungsaufwand ist dank der Energieeffizienz minimal.

Bezugsfertig
Eine Immobilie, die Eleganz, Nachhaltigkeit und Funktionalität an einem der attraktivsten Orte der Adria verbindet. Ideal als Familienwohnsitz, Ferienvilla oder exklusives Mietobjekt.

Kontaktieren Sie uns und sichern Sie sich Ihr elegantes Refugium direkt am Meer!
Übersicht
  • Typ: Haus
  • Fläche: 297 m2
  • Grundstücksfläche: 199 m2
  • Zimmer: 10 Zimmer
  • Badezimmer: 10 Zimmer
  • Parkplätze: /
  • Parkplatz: 1
  • Garage: 1
  • Stockwerk: /
  • Immobilienansicht: aufs Meer
  • Energieklasse: /
  • Anzahl der Aufrufe: /
Immobiliendetails
Typ
Haus
Fläche
297 m2
Grundstücksfläche
199 m2
Zimmer
10 Zimmer
Badezimmer
10 Zimmer
Parkplätze
/
Parkplatz
1
Garage
1
Stockwerk
/
Immobilienansicht
aufs Meer
Energieklasse
/
Anzahl der Aufrufe
/
Kartenansicht
  • Ortsteil
    ŠIBENIK
  • Ort
    BRODARICA
  • Region
    ŠIBENSKO-KNINSKA
Agenturinfo
Dogma nekretnine d.o.o.
Verkäufer kontaktieren
Dogma nekretnine d.o.o.
Draženka Blazinarić
+
=