Bauland Brodarica, Šibenik - Okolica, 1.619,28m2 Bauland Brodarica, Šibenik - Okolica, 1.619,28m2

0 €

Ausstattung
  • 1.619 m2
Lage

BRODARICA , ŠIBENIK

Beschreibung
NEU IM ANGEBOT – ATTRAKTIVES BAUGRUNDSTÜCK MIT PROKEKT UND BAUGENEHMIGUNG IN BRODARICA

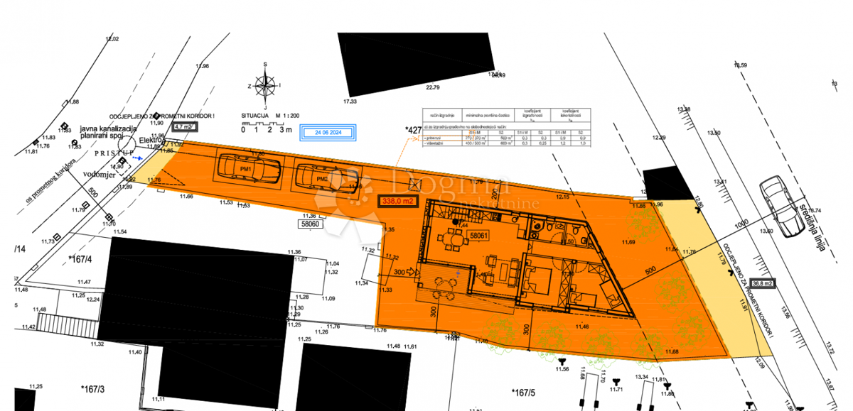
Zum Verkauf steht ein äußerst attraktives Baugrundstück von 1.619,28 m² in ausgezeichneter Lage in Brodarica, nur 450 Meter vom Meer und den schönen Stränden entfernt.

Das Grundstück ist baubereit und verfügt über eine gültige Baugenehmigung sowie ein hervorragendes Architekturprojekt, wodurch der Investor sofort mit dem Bau beginnen kann. Die komplette Infrastruktur ist auf dem Grundstück vorhanden, und das Grundstück ist gemulcht, geebnet und fertig für den Baubeginn vorbereitet.

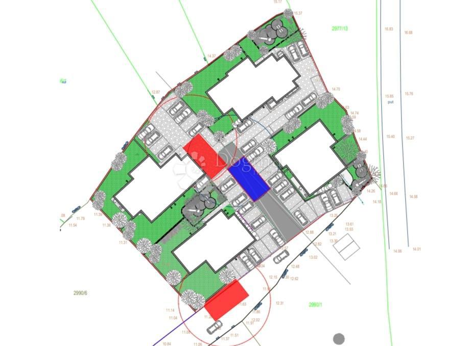
Das Projekt umfasst den Bau von zwei modernen Wohngebäuden, jeweils mit:

Erdgeschoss + 1. Stock + 2. Stock

6 Wohnungen pro Gebäude

Die Wohnungen sind funktional gestaltet, mit einer Größe von 70 m² bis 80 m², ideal für ganzjähriges Wohnen, Ferienwohnungen oder touristische Vermietung.

Hauptvorteile:

attraktive und ruhige Lage

nur 450 m vom Meer entfernt

gültige Baugenehmigung und fertiges Projekt

Infrastruktur auf dem Grundstück vorhanden

Grundstück gemulcht, geebnet und vorbereitet

Projekt mit insgesamt 12 Wohnungen

hervorragende Investitionsmöglichkeit

Diese Immobilie stellt eine hervorragende Gelegenheit für Investoren und Entwickler dar, die ein projektfertiges Bauvorhaben suchen.

Für weitere Informationen und zur Vereinbarung einer Besichtigung kontaktieren Sie uns bitte.

Draženka Blazinarić

+385 91 796 2322

drazenka.blazinaric@dogma-nekretnine.com
Übersicht
  • Typ: Grundstück
  • Fläche: 1619 m2
  • Grundstücksfläche: / m2
  • Zimmer: / Zimmer
  • Badezimmer: / Zimmer
  • Parkplätze: /
  • Parkplatz: /
  • Garage: /
  • Stockwerk: /
  • Immobilienansicht: /
  • Energieklasse: /
  • Anzahl der Aufrufe: /
Immobiliendetails
Typ
Grundstück
Fläche
1619 m2
Grundstücksfläche
/ m2
Zimmer
/ Zimmer
Badezimmer
/ Zimmer
Parkplätze
/
Parkplatz
/
Garage
/
Stockwerk
/
Immobilienansicht
/
Energieklasse
/
Anzahl der Aufrufe
/
Kartenansicht
  • Ortsteil
    ŠIBENIK
  • Ort
    BRODARICA
  • Region
    ŠIBENSKO-KNINSKA
Agenturinfo
Dogma nekretnine d.o.o.
Verkäufer kontaktieren
Dogma nekretnine d.o.o.
Draženka Blazinarić
+
=