Vodice, Srima - **AUSGEZEICHNETE LAGE** *NEUBAU* luxuriöse W... Vodice, Srima - **AUSGEZEICHNETE LAGE** *NEUBAU* luxuriöse Wohnungen mit Meerblick, 80 m vom Strand entfernt

290.745 €

Ausstattung
  • 64 m2
  • 3
  • 1
Lage

VODICE

Beschreibung
Vodice, SRIMA - **TOP LAGE** *MEERBLICK* Luxuswohnungen in unmittelbarer Nähe zum Strand zu verkaufen. Das Gebäude mit modernem Design verfügt über insgesamt 8 Wohneinheiten und besteht aus vier Etagen: Erdgeschoss + erster Stock + zweiter Stock + Dachterrasse. Im Erdgeschoss werden drei Wohnungen mit zugehörigem Gartenanteil sein, und die Wohnungen im ersten und zweiten Stock bieten einen schönen Meerblick. Es wird mit hochwertigen Materialien gebaut und nach den neuesten Standards ausgestattet. Zur Ausstattung gehören:

- Styropor-Fassade,
- PVC-Fensterrahmen,
- ALU-Rollläden mit elektrischem Antrieb,
- Mückengitter,
- einbruchhemmende und feuerfeste Eingangstüren,
- hochwertige Bodenbeläge,
- Klimaanlagen in den Schlafzimmern und im Wohnzimmer,
- Fußbodenheizung in den Badezimmern,
- moderne Badezimmereinrichtungen,
- Glasgeländer..

Geplanter Fertigstellungstermin und Einzug ist Herbst 2026.

Der Käufer zahlt keine Grunderwerbsteuer.

Wohnung S6 mit einer gesamten Nettowohnfläche von 64,61 m² befindet sich im ersten Stock des Gebäudes und besteht aus Eingangsbereich, Flur, Badezimmer, zwei Schlafzimmern, WC, Küche mit Essbereich und Wohnzimmer sowie einer überdachten Terrasse mit 6,97 m². Zur Wohnung gehört ein Parkplatz. PREIS: 290.745,00 € (MwSt. ist im Preis der Wohnung enthalten).

WEITERE VERFÜGBARE WOHNUNGEN IM GEBÄUDE:

ERDGESCHOSS:

Wohnung S1 mit einer gesamten Nettowohnfläche von 84,63 m² besteht aus Eingangsbereich, Flur, Schlafzimmer mit Badezimmer, zweites Badezimmer, zweites Schlafzimmer, Küche mit Essbereich und Wohnzimmer mit Zugang zur unüberdachten Terrasse von 16,39 m². Zur Wohnung gehört ein Garten mit 21,15 m² und ein Parkplatz. PREIS: 363.909,00 € (MwSt. ist im Immobilienpreis enthalten).

Wohnung S2 mit einer gesamten Nettowohnfläche von 107,69 m² besteht aus Eingangsbereich, Flur, Schlafzimmer mit eigenem Badezimmer, zwei weitere Schlafzimmer, zweites Badezimmer, Küche mit Essbereich und Wohnzimmer mit Zugang zur unüberdachten Terrasse von 22,51 m². Zur Wohnung gehört ein Garten mit 124,85 m² und ein Parkplatz. PREIS: 463.067,00 € (MwSt. ist im Immobilienpreis enthalten).

Wohnung S3 mit einer gesamten Nettowohnfläche von 83,79 m² besteht aus Eingangsbereich, Flur, Badezimmer, WC, zwei Schlafzimmern, Küche mit Essbereich und Wohnzimmer mit Zugang zur unüberdachten Terrasse von 23,53 m². Zur Wohnung gehört ein Garten mit 23,53 m² und ein Parkplatz. PREIS: 360.297,00 €
(MwSt. ist im Immobilienpreis enthalten)

ERSTER STOCK

Wohnung S4 mit einer gesamten Nettowohnfläche von 80,55 m² besteht aus Eingangsbereich, Flur, Schlafzimmer mit eigenem Badezimmer, zweites Schlafzimmer, zweites Badezimmer, Küche mit Essbereich und Wohnzimmer mit Zugang zur überdachten Terrasse von 17,02 m². Zur Wohnung gehört ein Parkplatz. PREIS: 362.475,00 € (MwSt. ist im Immobilienpreis enthalten)

Wohnung S5 mit einer gesamten Nettowohnfläche von 81,03 m² besteht aus Eingangsbereich, Flur, Schlafzimmer mit eigenem Badezimmer, zweites Badezimmer, zweites Schlafzimmer, Küche mit Essbereich und Wohnzimmer mit Zugang zur überdachten Terrasse von 16,12 m². Zur Wohnung gehört ein Parkplatz. PREIS: 364.634,00 € (MwSt. ist im Immobilienpreis enthalten).

ZWEITER STOCK

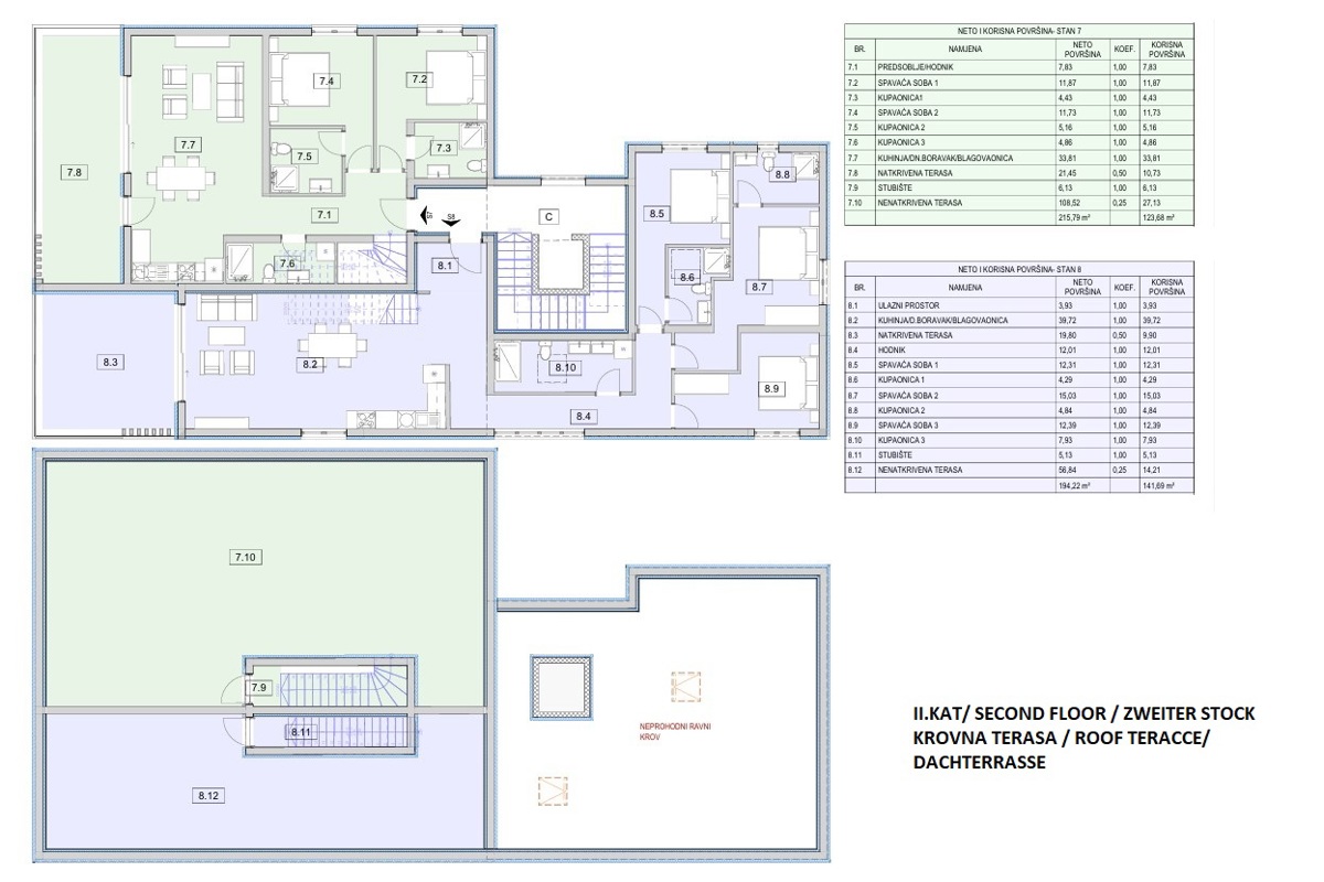
Wohnung S7 mit einer gesamten Nettowohnfläche von 126,68 m² besteht aus Eingangsbereich, Flur, Schlafzimmer 1 mit eigenem Badezimmer 1, Schlafzimmer 2 mit eigenem Badezimmer 2, drittes Badezimmer, Küche mit Essbereich und Wohnzimmer mit Zugang zur überdachten Terrasse von 21,45 m², Treppe und Dachterrasse mit 108,52 m². Zur Wohnung gehört ein Parkplatz. PREIS: 582.728,00 € (MwSt. ist im Immobilienpreis enthalten).

Wohnung S8 mit einer gesamten Nettowohnfläche von 144,69 m² besteht aus Eingangsbereich, Flur, Badezimmer 1, Schlafzimmer, Schlafzimmer 2 mit eigenem Badezimmer 2, Schlafzimmer 3 mit eigenem Badezimmer 3, Küche mit Essbereich und Wohnzimmer mit Zugang zur überdachten Terrasse von 19,80 m², Treppe und Dachterrasse mit 56,84 m². Zur Wohnung gehört ein Parkplatz. PREIS: 665.574,00 € (MwSt. ist im Immobilienpreis enthalten).



Die agenturprovision betragt 3% inklusive Mehrwertsteuer
Übersicht
  • Typ: Wohnung
  • Fläche: 64 m2
  • Grundstücksfläche: / m2
  • Zimmer: 3 Zimmer
  • Badezimmer: 1 Zimmer
  • Parkplätze: /
  • Parkplatz: 12
  • Garage: /
  • Stockwerk: 1
  • Immobilienansicht: aufs Meer
  • Energieklasse: 2
  • Anzahl der Aufrufe: /
Immobiliendetails
Typ
Wohnung
Fläche
64 m2
Grundstücksfläche
/ m2
Zimmer
3 Zimmer
Badezimmer
1 Zimmer
Parkplätze
/
Parkplatz
12
Garage
/
Stockwerk
1
Immobilienansicht
aufs Meer
Energieklasse
2
Anzahl der Aufrufe
/
Kartenansicht
  • Ort
    VODICE
  • Region
    ŠIBENSKO-KNINSKA
Agenturinfo
Naš Dom
Verkäufer kontaktieren
Naš Dom
Hrvoje Zurak
+
=