Wunderschöne, moderne und ganz neue Villa mit Pool in Vrsi Wunderschöne, moderne und ganz neue Villa mit Pool in Vrsi

650.000 €

Ausstattung
  • 219 m2
  • 3
  • 3
Lage

VRSI

Beschreibung
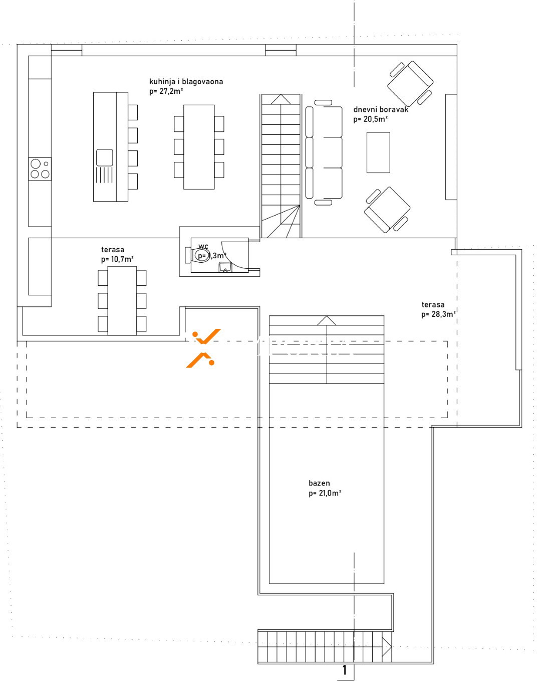
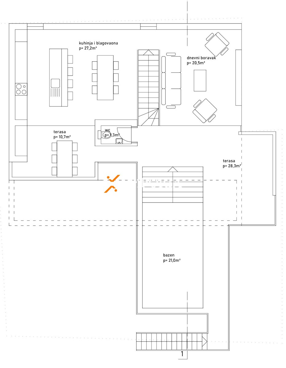
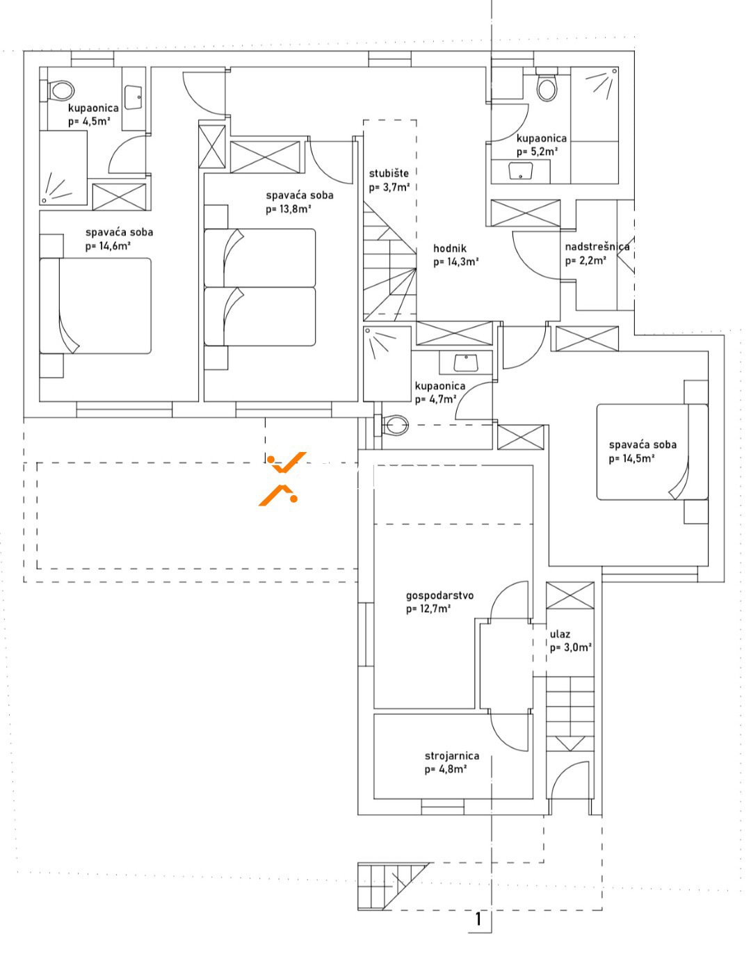
Eine schöne neu gebaute Villa mit Swimmingpool in Vrsi steht zum Verkauf. Es besteht aus Erdgeschoss und Obergeschoss. Der Pool befindet sich im Obergeschoss, mit teilweisem Blick auf das Meer.
Die Raumaufteilung im Erdgeschoss besteht aus einem Flur, einem Abstellraum, einem Badezimmer, 3 Schlafzimmern, davon 2 mit eigenem Bad. Im ersten Stock gibt es einen Flur, ein Wohnzimmer, eine Küche mit Esszimmer, eine Terrasse sowie einen Swimmingpool und eine Toilette.
Das Haus verfügt über eine Gesamtfläche von 219 m², während das Grundstück, auf dem es errichtet wurde, eine Fläche von 433 m² hat. Zusätzlich besteht die Möglichkeit, ein angrenzendes Grundstück mit einer Fläche von 400 m² zu erwerben, das sich direkt neben dem Haus befindet.

Ausstattung

Das Haus steht zum Verkauf komplett ausgestattet und möbliert.
Konstruktion mit gemauerten Thermoblöcken. Die Fenster bestehen aus PVC-Material mit Dreischichtglas, elektrischen Rollläden und Moskitonetzen. Die Wärmedämmung der Fassade erfolgt mit 8 cm Styropor. Die Bodenbeläge sind Fliesen. Auf der Terrasse am Pool ist ein Grill eingerichtet.
Das ganze Haus verfügt über eine Fußbodenwasserheizung. Alle Zimmer sind klimatisiert.

Standort

Der Ort Vrsi befindet sich an der gleichnamigen Halbinsel, am nordwestlichen Teil Dalmatiens, von Zadar um 20 km und von der Königsstadt Nin nur 5 km entfernt. Vrsi hat eine 30 km lange Küste, mit zahlreichen Stränden und Buchten. Nahe zum Ort liegen zwei kleinere Inseln, Mišjak und Zečevo. Zečevo ist besonders interessant, da sich die Insel bei Ebbe in eine Halbinsel umwandelt. Im Sommer werden in der Umgebung zahlreiche Ereignisse, Fischerfeste und Folklore organisiert.
Das saubere Meer, die langen Sandstrände und Kieselbuchten sind ideal für einen traumhaften Sommerurlaub. Im Ort finden sie alles was für einen entspannten Alltag nötig ist: Post, Wechselstube, Geldautomat, Apotheke, Geschäfte, Cafés usw. Alle Liebhaber des Segelns werden dafür in Vrsi ideale Bedingungen finden. Im Ortszentrum befinden sich ein Fußballfeld und Basketballplatz. Alles zusammen, alles was sie für einen entspannten Familienurlaub im mediterranen Stil benötigen finden Sie in Vrsi.

Sonstiges

Falls Sie diese Immobilie woanders zu einem günstigeren Preis gesehen haben, gilt der gleiche Preis auch bei uns!
https://www.emporia-immobilien.com/property/haus-h593-vrsi/
Übersicht
  • Typ: Haus
  • Fläche: 219 m2
  • Grundstücksfläche: 433 m2
  • Zimmer: 3 Zimmer
  • Badezimmer: 3 Zimmer
  • Parkplätze: /
  • Parkplatz: /
  • Garage: /
  • Stockwerk: /
  • Immobilienansicht: /
  • Energieklasse: /
  • Anzahl der Aufrufe: /
Immobiliendetails
Typ
Haus
Fläche
219 m2
Grundstücksfläche
433 m2
Zimmer
3 Zimmer
Badezimmer
3 Zimmer
Parkplätze
/
Parkplatz
/
Garage
/
Stockwerk
/
Immobilienansicht
/
Energieklasse
/
Anzahl der Aufrufe
/
Kartenansicht
  • Ort
    VRSI
  • Region
    ZADARSKA
Agenturinfo
Emporia Nekretnine Zadar
Verkäufer kontaktieren
Emporia Nekretnine Zadar
Mariana Katačić
+
=