Podstrana Strožanac | PREMIUM-Neubau mit Meer- und Splitblic... Podstrana Strožanac | PREMIUM-Neubau mit Meer- und Splitblick / 1- und 2-Zimmer-Wohnungen

445.000 €

Ausstattung
  • 67 m2
  • 1
  • 1
Lage

PODSTRANA

Beschreibung
In ruhiger, erhöhter Lage in Strožanac, umgeben von Grün und modernen Villen, befindet sich ein Gebäude mit freiem Panoramablick auf das Meer, die Inseln und Split. Das Projekt ist weit fortgeschritten, die Ausbauarbeiten laufen.

Verfügbare Wohnungen · Garagenstellplatz inklusive:
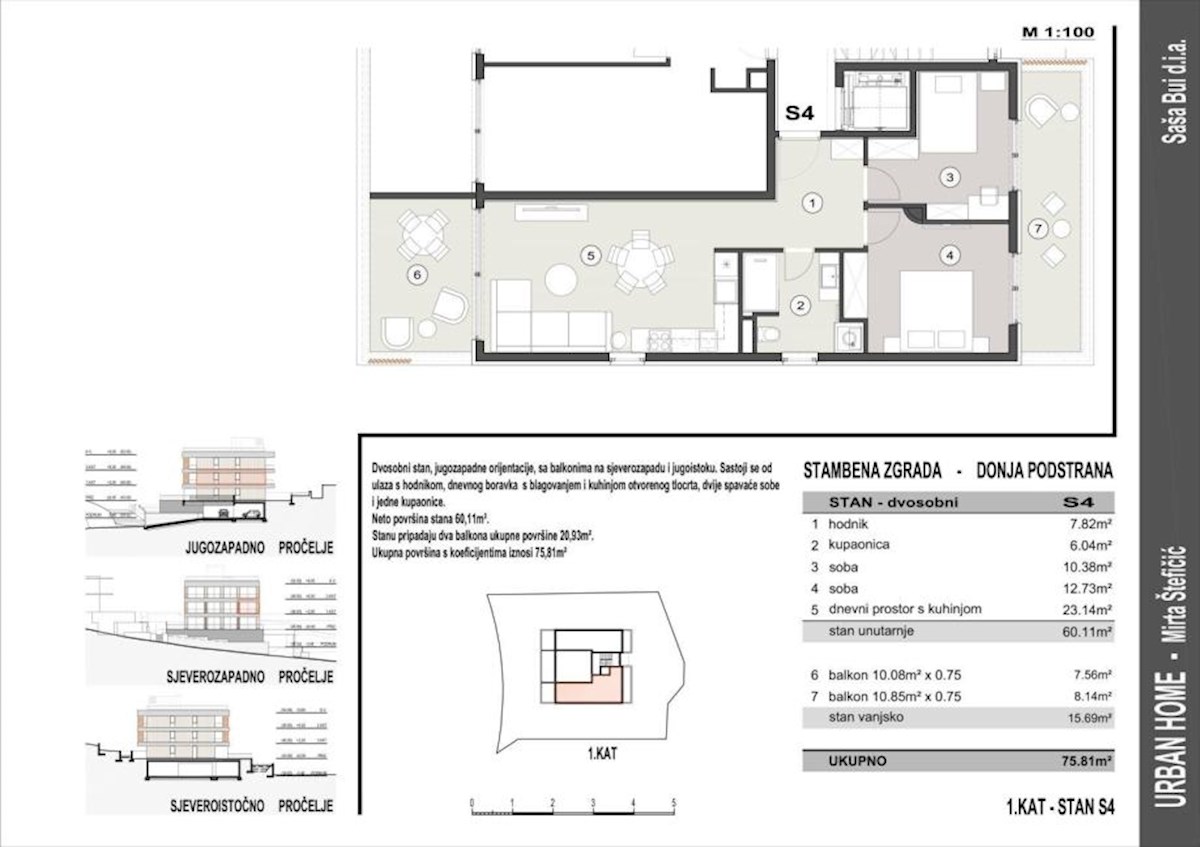
◆ S6 · 1. Obergeschoss · 1 Schlafzimmer · 63 m² (67 m² Nutzfläche) · 2 Balkone · 445.000 €
◆ S3 · Erdgeschoss · 1 Schlafzimmer · 75 m² (169 m² Nutzfläche) · Garten + Terrassen · 499.000 €
◆ S4 · 1. Obergeschoss · 2 Schlafzimmer · 76 m² (81 m² Nutzfläche) · 2 Balkone · 549.000 €

‣ Panoramablick auf das Meer, die Inseln und Split / Strandzugang über einen Fußgängerweg unter der Straße
‣ Energieeffizienzklasse A+
‣ Hochwertige Ausstattung – Duravit, Hansgrohe, Porcelanosa
‣ Aufzug von der Garage in alle Etagen
‣ Direktkauf vom Investor · Alle erforderlichen Unterlagen vorhanden

Für detaillierte Informationen und zur Vereinbarung eines Besichtigungstermins kontaktieren Sie bitte: Mirta Bakota Štefičić · +385 91 302 55 55
Denis Hlapčić · +385 98 927 91 71
Übersicht
  • Typ: Wohnung
  • Fläche: 67 m2
  • Grundstücksfläche: / m2
  • Zimmer: 1 Zimmer
  • Badezimmer: 1 Zimmer
  • Parkplätze: /
  • Parkplatz: /
  • Garage: 1
  • Stockwerk: 1
  • Immobilienansicht: aufs Meer
  • Energieklasse: 1
  • Anzahl der Aufrufe: /
Immobiliendetails
Typ
Wohnung
Fläche
67 m2
Grundstücksfläche
/ m2
Zimmer
1 Zimmer
Badezimmer
1 Zimmer
Parkplätze
/
Parkplatz
/
Garage
1
Stockwerk
1
Immobilienansicht
aufs Meer
Energieklasse
1
Anzahl der Aufrufe
/
Kartenansicht
  • Ort
    PODSTRANA
  • Region
    SPLITSKO-DALMATINSKA
Agenturinfo
adriaINgroup
Verkäufer kontaktieren
adriaINgroup
Denis Hlapcic
+
=