Zwei-Zimmer-Wohnung in Strandnähe, Seget Zwei-Zimmer-Wohnung in Strandnähe, Seget

270.000 €

Ausstattung
  • 65 m2
  • 1
Lage

SEGET DONJI , SEGET

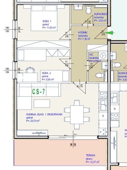
Beschreibung
Zum Verkauf steht eine Wohnung in einem Neubau (Gebäude C) in Seget Donji, nur 250 m vom Kiesstrand und wenige Gehminuten von allen Annehmlichkeiten wie Geschäften, Restaurants und Cafés entfernt. Die Wohnung S7 befindet sich im ersten Stock eines Gebäudes mit Aufzug und bietet 59,23 m² Wohnfläche sowie eine 12,37 m² große Terrasse. Ein Garagenstellplatz kann gegen eine zusätzliche Gebühr von 15.000 € angemietet werden. Die Wohnung besteht aus einem Flur, zwei Schlafzimmern, einem Badezimmer, einem WC, einer offenen Küche mit Essbereich und einem Wohnbereich mit Zugang zur Terrasse. Die Wohnungen verfügen über Badezimmer und Klimaanlage. Da die Wohnungen von einem Unternehmen errichtet werden, sind Käufer von der Grundsteuer befreit. Das Projekt befindet sich im Bau. Der geplante Einzug in Gebäude C ist für Sommer 2027 vorgesehen.
 
Die Standardgeschäftspolitik unserer Immobilienagentur besteht darin, eine Besichtigung der Immobilie zu organisieren, nachdem der Kunde unseren Standardagenturvertrag unterzeichnet hat. Die Unterzeichnung dieser Vereinbarung ist eine Grundvoraussetzung für weitere Aktivitäten im Zusammenhang mit dem Immobilienkauf, die auf dem Immobilienmaklergesetz und dem Datenschutzgesetz beruhen.
Übersicht
  • Typ: Wohnung
  • Fläche: 65 m2
  • Grundstücksfläche: / m2
  • Zimmer: / Zimmer
  • Badezimmer: 1 Zimmer
  • Parkplätze: /
  • Parkplatz: /
  • Garage: /
  • Stockwerk: 1
  • Immobilienansicht: /
  • Energieklasse: /
  • Anzahl der Aufrufe: /
Immobiliendetails
Typ
Wohnung
Fläche
65 m2
Grundstücksfläche
/ m2
Zimmer
/ Zimmer
Badezimmer
1 Zimmer
Parkplätze
/
Parkplatz
/
Garage
/
Stockwerk
1
Immobilienansicht
/
Energieklasse
/
Anzahl der Aufrufe
/
Kartenansicht
  • Ortsteil
    SEGET
  • Ort
    SEGET DONJI
  • Region
    SPLITSKO-DALMATINSKA
Agenturinfo
ŠIMIĆ DOM d.o.o.
Verkäufer kontaktieren
+
=