Wohnung, Verkauf, Pula, Monvidal, 56,33 m², 2,5-Zimmer (2Z+D... Wohnung, Verkauf, Pula, Monvidal, 56,33 m², 2,5-Zimmer (2Z+DB)

175.000 €

Ausstattung
  • 56 m2
  • 3
  • 1
Lage

PULA

Beschreibung
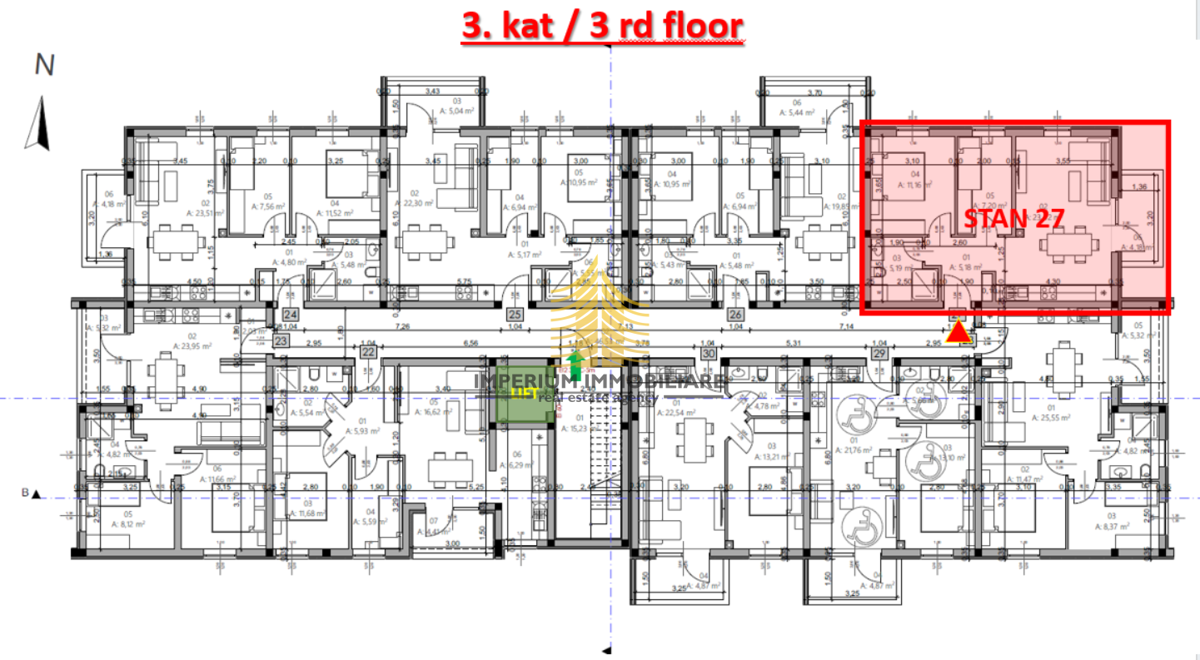
Zum Verkauf steht eine moderne 2,5-Zimmer-Wohnung mit einer Fläche von 56,33 m2, gelegen im dritten Stock eines vierstöckigen Gebäudes im attraktiven Viertel Monvidal in Pula. Die Wohnung befindet sich in einem Neubau, dessen Fertigstellung für das Jahr 2027 geplant ist, was moderne Baustandards und Wohnkomfort garantiert.

Diese Immobilie besticht durch einen funktionalen Grundriss mit zwei Schlafzimmern, einem Wohnzimmer sowie einem Balkon mit einer Größe von 4,18 m2, der zusätzlichen Außenraum zum Genießen bietet. Die Wohnung ist nach Norden ausgerichtet und sorgt tagsüber für angenehmes Licht.

Besonderen Wert erhält diese Wohnung durch Fußbodenheizung und Klimaanlage, die das ganze Jahr über für eine angenehme Temperatur sorgen. Weitere Annehmlichkeiten umfassen einen eigenen Balkon, Aufzug, Parkplatz sowie Videoüberwachung, die ein höheres Maß an Sicherheit und Komfort gewährleisten. Die Lage in einem ruhigen Stadtteil macht diese Immobilie zu einer ausgezeichneten Wahl für Familienleben oder als Investition.

Monvidal ist bekannt für seine günstige Lage in Pula und bietet schnellen Zugang zu allen wichtigen Einrichtungen wie Schulen, Geschäften, öffentlichen Verkehrsmitteln und weiteren wichtigen urbanen Angeboten. Die Wohnung befindet sich in einer ruhigen Lage, was die Lebensqualität zusätzlich erhöht.

Für weitere Informationen oder zur Vereinbarung eines Besichtigungstermins kontaktieren Sie uns bitte jederzeit.
Übersicht
  • Typ: Wohnung
  • Fläche: 56 m2
  • Grundstücksfläche: / m2
  • Zimmer: 3 Zimmer
  • Badezimmer: 1 Zimmer
  • Parkplätze: /
  • Parkplatz: 12
  • Garage: /
  • Stockwerk: 3
  • Immobilienansicht: /
  • Energieklasse: 1
  • Anzahl der Aufrufe: /
Immobiliendetails
Typ
Wohnung
Fläche
56 m2
Grundstücksfläche
/ m2
Zimmer
3 Zimmer
Badezimmer
1 Zimmer
Parkplätze
/
Parkplatz
12
Garage
/
Stockwerk
3
Immobilienansicht
/
Energieklasse
1
Anzahl der Aufrufe
/
Kartenansicht
  • Ort
    PULA
  • Region
    ISTARSKA
Agenturinfo
Imperium-immobiliare d.o.o
Verkäufer kontaktieren
Imperium-immobiliare d.o.o
Nikola Popović
+
=