HRELJIN - Luxuriöse Zweizimmerwohnung mit Terrasse in einem ... HRELJIN - Luxuriöse Zweizimmerwohnung mit Terrasse in einem Neubau

242.000 €

Ausstattung
  • 80 m2
  • 3
  • 2
Lage

HRELJIN , BAKAR

Beschreibung
LP Real Estate bietet eine moderne und hochwertig gebaute Wohnung in einem Neubau in der Nähe des Ortskerns zum Verkauf an!

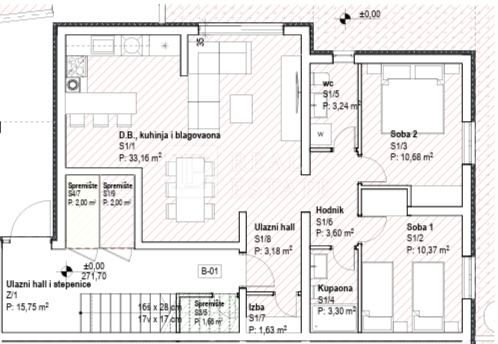
Die Wohnung besticht durch einen funktionalen Grundriss und umfasst ein geräumiges Wohnzimmer, eine Küche, ein Esszimmer, zwei Schlafzimmer, ein Badezimmer, ein separates WC, einen Flur, einen Abstellraum und einen Eingangsbereich. Sie zeichnet sich durch modernes Design und eine durchdachte Raumaufteilung aus, die höchsten Wohnkomfort garantiert.

Die Wohnung ist mit hochwertigen Materialien und Ausstattungsmerkmalen versehen: Porotherm Profi S-Block, 10 cm starke Fassade, Alu-Ben-Aluminiumfenster und -türen, Dierre-Sicherheitstüren, Braga-Innentüren, Kronotex 12 mm Mammut-Laminat, hochwertige Keramik- und Sanitärkeramik sowie Geberit-Systeme. Für Heizung und Kühlung sorgt eine Hisense-Split-Klimaanlage.

Zu den besonderen Vorzügen der Immobilie gehören ein 12,50 m² großer Stellplatz im Innenhof des Gebäudes, ein 59,88 m² großer Garten und ein 2,00 m² großer Abstellraum im Erdgeschoss.

Neubau, ruhige Lage und hochwertige Bauweise machen diese Wohnung zu einer hervorragenden Gelegenheit für komfortables Wohnen oder als Kapitalanlage. Die Wohnung ist ab Sommer 2026 bezugsfertig.
Übersicht
  • Typ: Wohnung
  • Fläche: 80 m2
  • Grundstücksfläche: 80 m2
  • Zimmer: 3 Zimmer
  • Badezimmer: 2 Zimmer
  • Parkplätze: /
  • Parkplatz: /
  • Garage: /
  • Stockwerk: /
  • Immobilienansicht: aufs Meer
  • Energieklasse: 2
  • Anzahl der Aufrufe: /
Immobiliendetails
Typ
Wohnung
Fläche
80 m2
Grundstücksfläche
80 m2
Zimmer
3 Zimmer
Badezimmer
2 Zimmer
Parkplätze
/
Parkplatz
/
Garage
/
Stockwerk
/
Immobilienansicht
aufs Meer
Energieklasse
2
Anzahl der Aufrufe
/
Kartenansicht
  • Ortsteil
    BAKAR
  • Ort
    HRELJIN
  • Region
    PRIMORSKO-GORANSKA
Agenturinfo
LP nekretnine
Verkäufer kontaktieren
LP nekretnine
Luka Šupraha, mag.ing.mech.
+
=