Modernes Doppelhaus S1 in Tisno – ein elegantes Zuhause am M... Modernes Doppelhaus S1 in Tisno – ein elegantes Zuhause am Meer

380.000 €

Ausstattung
  • 106 m2
  • 4
  • 2
Lage

TISNO , MURTER

Beschreibung
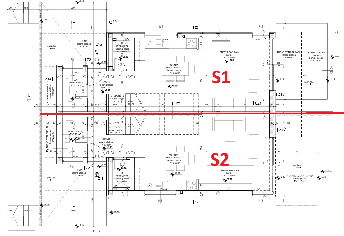
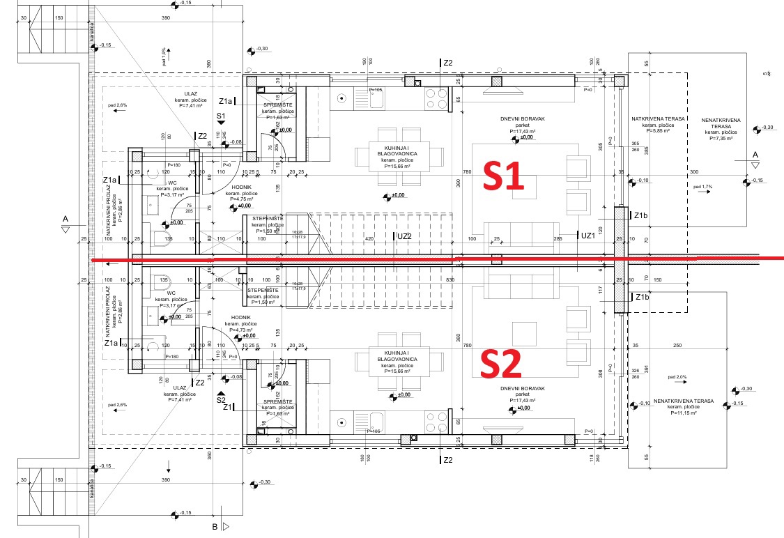
In ruhiger Lage in Tisno, nur ca. 400 Meter vom Meer und etwa 1 km vom Ortszentrum entfernt, befindet sich dieses modern gestaltete Doppelhaus (S1), ideal für Familien oder als attraktive Investition.

Das Haus erstreckt sich über zwei Etagen und überzeugt durch eine funktionale Raumaufteilung und elegantes Design.
Im Erdgeschoss (67,61 m2 Nettonutzfläche) befindet sich ein offener Wohnbereich mit Küche, Esszimmer und Wohnzimmer, mit Zugang zur Terrasse (13,2 m2) und Garten (ca. 90 m2). Zusätzlich gibt es ein Gäste-WC mit Waschbereich sowie einen Abstellraum.

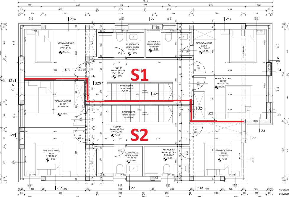
Eine innenliegende Holztreppe führt ins Obergeschoss (58,61 m2), wo sich drei Schlafzimmer befinden, eines davon mit eigenem Bad, während sich die anderen zwei ein Badezimmer teilen.

Ausstattung:

- Fußbodenheizung im Erdgeschoss und in den Bädern
- Klimaanlagen in allen Räumen
- PVC-Fenster (Schüco) und Aluminium-Schiebetüren
- elektrische Rollläden
- hochwertige Sanitärausstattung (Hansgrohe, Laufen)
- moderne Innentüren mit Magnetverschluss
- zwei Außenkameras

Zur Immobilie gehören zwei Parkplätze und ein Garten.

Das Haus befindet sich in der Endphase der Fertigstellung, der Einzug ist für Sommer 2026 geplant. Eine S2-Einheit ist ebenfalls erhältlich.

Tisno ist ein charmantes dalmatinisches Küstenort, bekannt für seine besondere Lage zwischen Festland und der Insel Murter. Es bietet mediterrane Lebensqualität, klares Meer und Nähe zu Naturparks wie Krka und Kornati.

Für weitere Informationen oder eine Besichtigung kontaktieren Sie uns gerne.



Die Vermittlungsprovision beträgt 2 % zuzüglich Mehrwertsteuer des Kaufpreises.
Übersicht
  • Typ: Haus
  • Fläche: 106 m2
  • Grundstücksfläche: 90 m2
  • Zimmer: 4 Zimmer
  • Badezimmer: 2 Zimmer
  • Parkplätze: /
  • Parkplatz: 24
  • Garage: /
  • Stockwerk: /
  • Immobilienansicht: /
  • Energieklasse: /
  • Anzahl der Aufrufe: /
Immobiliendetails
Typ
Haus
Fläche
106 m2
Grundstücksfläche
90 m2
Zimmer
4 Zimmer
Badezimmer
2 Zimmer
Parkplätze
/
Parkplatz
24
Garage
/
Stockwerk
/
Immobilienansicht
/
Energieklasse
/
Anzahl der Aufrufe
/
Kartenansicht
  • Ortsteil
    MURTER
  • Ort
    TISNO
  • Region
    ŠIBENSKO-KNINSKA
Agenturinfo
Adriatic realty
Verkäufer kontaktieren
Adriatic realty
Danijela Ćopić
+
=