ZADAR, NIN – Exklusive Villa in erster Reihe am Meer ZADAR, NIN – Exklusive Villa in erster Reihe am Meer

1.490.000 €

Ausstattung
  • 167 m2
  • 5
  • 5
Lage

NIN

Beschreibung
ZADAR, NIN – Exklusive Villa in erster Meeresreihe

Im Herzen der königlichen Stadt Nin, in einer der begehrtesten Lagen, befindet sich diese elegante Villa, die Privatsphäre, Luxus und authentisches mediterranes Flair vereint – nur wenige Schritte vom Meer entfernt.

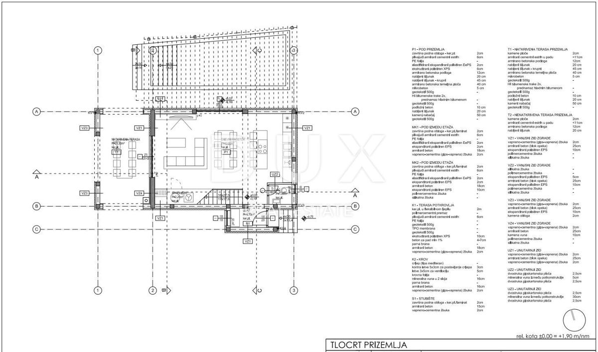
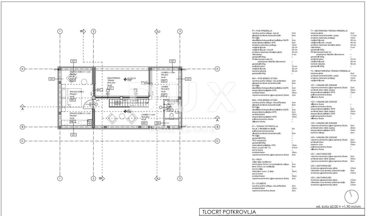
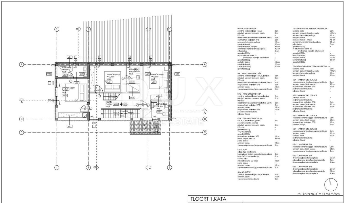
Die Villa erstreckt sich über ein 214 m² großes Grundstück und bietet auf drei Etagen insgesamt 167,40 m² Wohnfläche. Innen- und Außenbereich zeichnen sich durch Komfort, Funktionalität und raffinierten Stil aus.
Das Erdgeschoss umfasst ein großzügiges, offenes Wohnzimmer, eine moderne Küche, ein Gäste-WC und einen Abstellraum. Im ersten Obergeschoss befinden sich drei klimatisierte Schlafzimmer, jeweils mit eigenem Bad. Das Dachgeschoss bietet ein zusätzliches Zimmer und eine Loggia mit Whirlpool und atemberaubendem Blick auf das Meer und den Velebit-Nationalpark. Im umzäunten Garten befinden sich ein Swimmingpool (25,60 m²), ein angelegter Garten und ein Grillplatz – ideal zum Entspannen und geselligen Beisammensein. Ein sicherer Privatparkplatz ist ebenfalls vorhanden.

Das Besondere an dieser Immobilie ist ihre direkte Lage am Meer – direkt vor dem Haus befindet sich ein Strand mit Steg, an dem Einheimische baden, surfen und Boote anlegen können. Die Gegend wird stetig weiterentwickelt und aufgewertet, was den Wert der Lage langfristig steigert. Cafés und Restaurants befinden sich in der Nähe, jedoch nicht direkt vor dem Haus, was Ruhe und Privatsphäre garantiert.

Die Immobilie ist ideal für Familien und als Investition im Tourismussektor geeignet und bietet das Potenzial für eine sehr hohe Tagesmiete. Diese Villa vereint Luxus, erstklassige Lage und attraktives Investitionspotenzial.

Nin ist eine charmante historische Stadt, bekannt für ihre langen Sandstrände und den entspannten dalmatinischen Lebensstil. Zadar ist nur 17 km und der Flughafen 28 km entfernt.

Sehr geehrte Kunden, die Maklerprovision wird gemäß den Allgemeinen Geschäftsbedingungen berechnet.

www.dux-nekretnine.hr/opci-uvjeti-poslovanja
Übersicht
  • Typ: Haus
  • Fläche: 167 m2
  • Grundstücksfläche: 214 m2
  • Zimmer: 5 Zimmer
  • Badezimmer: 5 Zimmer
  • Parkplätze: /
  • Parkplatz: /
  • Garage: /
  • Stockwerk: /
  • Immobilienansicht: aufs Meer
  • Energieklasse: /
  • Anzahl der Aufrufe: /
Immobiliendetails
Typ
Haus
Fläche
167 m2
Grundstücksfläche
214 m2
Zimmer
5 Zimmer
Badezimmer
5 Zimmer
Parkplätze
/
Parkplatz
/
Garage
/
Stockwerk
/
Immobilienansicht
aufs Meer
Energieklasse
/
Anzahl der Aufrufe
/
Kartenansicht
  • Ort
    NIN
  • Region
    ZADARSKA
Agenturinfo
DUX Nekretnine
Verkäufer kontaktieren
DUX Nekretnine
Tony Jerković
+
=