MIHOVLJAN Wohnung MIHOVLJAN Wohnung

176.000 €

Ausstattung
  • 61 m2
  • 2
  • 1
Lage

MIHOVLJAN , ČAKOVEC

Beschreibung
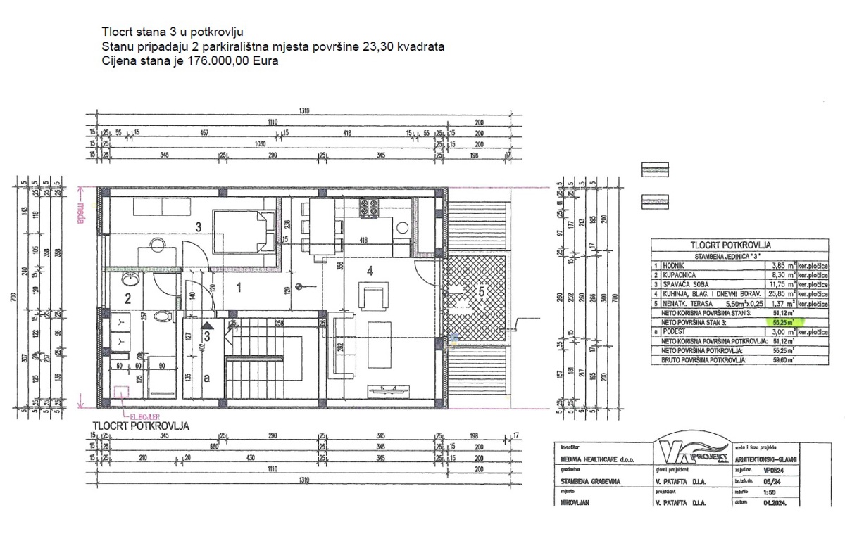
Exklusiv bei Century 21 – Verkauft wird eine moderne 2-Zimmer-Wohnung mit einer Gesamtfläche von 61,07 m2, gelegen im zweiten Stock eines Reihenhauses.

Zur Wohnung gehören zwei Parkplätze vor dem Haus, der Zugang und der Parkplatzbereich sind mit Pflastersteinen gestaltet.

Die Wohnung wurde mit Schwerpunkt auf Energieeffizienz und niedrige Nebenkosten geplant.

Jede Wohnung im Reihenhaus ist mit Solarmodulen mit einer Leistung von 4 kW ausgestattet, während die Heizung über eine Wärmepumpe mit drei Inneneinheiten – jeweils eine in jedem Zimmer – erfolgt, was das ganze Jahr über eine angenehme Temperatur gewährleistet.

Die Wohnung wird nach dem Prinzip „schlüsselfertig“ verkauft – im Preis enthalten sind keramische Fliesen, Böden sowie ein ausgestattetes Badezimmer.

Ein besonderer Vorteil der Lage ist, dass sich neben den Häusern ein städtischer Kinderspielplatz und ein Fußballplatz befinden, was eine dauerhaft freie Aussicht garantiert und keine zukünftige Bebauung vor dem Objekt zulässt.

Einzug am 01.06.2026.

In unmittelbarer Nähe:

- Kindergarten Vjeverica – 1400 Meter


- Grundschule I. osnovna škola Čakovec – 1800 Meter


- Galerija Sjever – 1800 Meter


- Kulturzentrum Čakovec – 2000 Meter


- Županijska bolnica Čakovec – 1800 Meter



Sehen Sie sich die VIDEO-Präsentation der Wohnung sowie einen Einrichtungsvorschlag im Bereich „Video“ oder unter folgendem Link an: https://youtu.be/-3q9BuW1GAA

DRON 4K Video unter folgendem Link: https://youtu.be/Oopzy9wxKM0

Ideal für Familien, Paare oder als Investition zur Vermietung.

Für weitere Informationen steht Ihnen zur Verfügung:

Saša Martišek

lizenzierter Agent

T: 097 75 47 775

E: sasa.martisek@c21.hr

Übersicht
  • Typ: Wohnung
  • Fläche: 61 m2
  • Grundstücksfläche: / m2
  • Zimmer: 2 Zimmer
  • Badezimmer: 1 Zimmer
  • Parkplätze: /
  • Parkplatz: 24
  • Garage: /
  • Stockwerk: 2
  • Immobilienansicht: /
  • Energieklasse: /
  • Anzahl der Aufrufe: /
Immobiliendetails
Typ
Wohnung
Fläche
61 m2
Grundstücksfläche
/ m2
Zimmer
2 Zimmer
Badezimmer
1 Zimmer
Parkplätze
/
Parkplatz
24
Garage
/
Stockwerk
2
Immobilienansicht
/
Energieklasse
/
Anzahl der Aufrufe
/
Kartenansicht
  • Ortsteil
    ČAKOVEC
  • Ort
    MIHOVLJAN
  • Region
    MEĐIMURSKA
Agenturinfo
  • CENTURY 21 Lider Nekretnine
  • CENTURY 21 Lider Nekretnine
  • Adresse Ul. bana Josipa Jelačića 1d, Zadar
  • Telefon +38598492873
CENTURY 21 Lider Nekretnine
Verkäufer kontaktieren
CENTURY 21 Lider Nekretnine
Saša Martišek
+
=

Ähnliche Immobilien