Zu verkaufen: Ein einstöckiges Haus in ruhiger Lage in Labin... Zu verkaufen: Ein einstöckiges Haus in ruhiger Lage in Labin.

494.400 €

Ausstattung
  • 143 m2
  • 3
  • 2
Lage

LABIN

Beschreibung
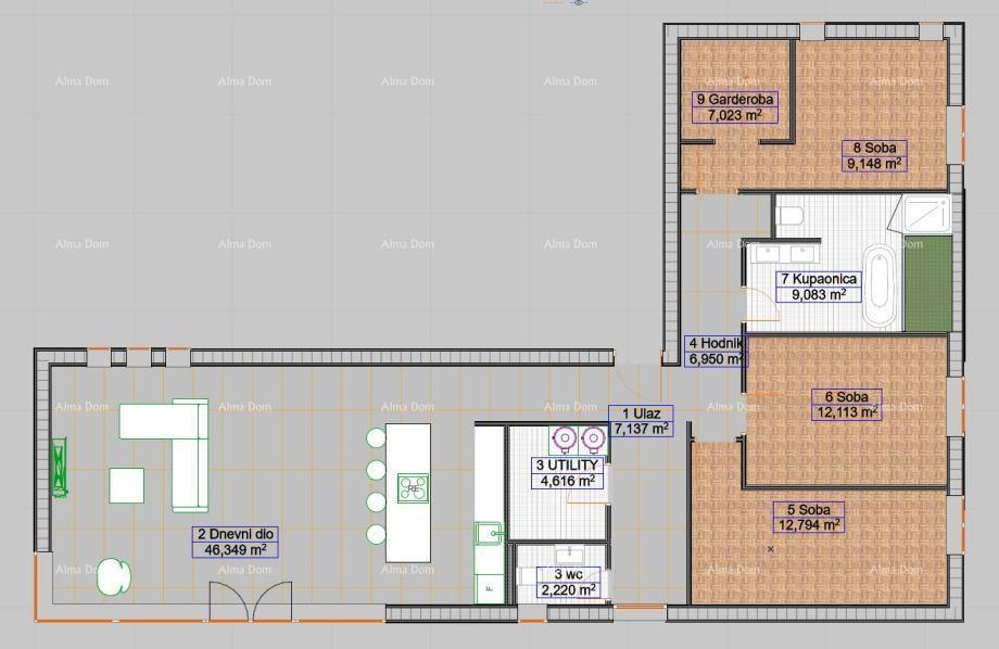
Zum Verkauf steht ein modern erbautes Erdgeschosshaus mit einer Wohnfläche von 143 m², das sich an einem äußerst ruhigen Standort befindet und dennoch in der Nähe der Altstadt von Labin liegt, die auch zu Fuß erreichbar ist.

Das Innere des Hauses ist mit einem Fokus auf Komfort und Funktionalität gestaltet. Der zentrale Bereich besteht aus einem offenen Wohnraum, der Küche, Esszimmer und Wohnzimmer verbindet. Darüber hinaus verfügt die Immobilie über ein Hauptschlafzimmer mit eigenem begehbarem Kleiderschrank, zwei weitere Schlafzimmer, zwei Badezimmer und einen praktischen Abstellraum.

Bei der Ausstattung wurde auf Qualität und Energieeffizienz geachtet – es wurde eine Fußbodenheizung mit einer Wärmepumpe installiert, hochwertige Wärmedämmung sowie zwei Klimaanlagen. Das Haus hat ein A+ Energiezertifikat.

Das Grundstück mit einer Fläche von 1073 m² bietet ausreichend Platz für die Gestaltung eines Gartens, eines Pools oder zusätzlicher Einrichtungen nach eigenen Wünschen.

Ideal für ein ruhiges Familienleben oder als Investition für touristische Vermietung.

Die Entfernung zum Zentrum beträgt nur 1 km, während die nächsten Strände weniger als 5 km entfernt sind.

Für weitere Informationen kontaktieren Sie bitte:

Azra
+385 91 611 5706
+385 98 420 885
azra@almadominvest.com
Übersicht
  • Typ: Haus
  • Fläche: 143 m2
  • Grundstücksfläche: 1073 m2
  • Zimmer: 3 Zimmer
  • Badezimmer: 2 Zimmer
  • Parkplätze: /
  • Parkplatz: /
  • Garage: /
  • Stockwerk: /
  • Immobilienansicht: /
  • Energieklasse: 1
  • Anzahl der Aufrufe: /
Immobiliendetails
Typ
Haus
Fläche
143 m2
Grundstücksfläche
1073 m2
Zimmer
3 Zimmer
Badezimmer
2 Zimmer
Parkplätze
/
Parkplatz
/
Garage
/
Stockwerk
/
Immobilienansicht
/
Energieklasse
1
Anzahl der Aufrufe
/
Kartenansicht
  • Ort
    LABIN
  • Region
    ISTARSKA
Agenturinfo
Alma Dom - Real Estate
Verkäufer kontaktieren
+
=