RIJEKA, ZENTRUM – Master-Apartment mit Projekt für 2 Wohnein... RIJEKA, ZENTRUM – Master-Apartment mit Projekt für 2 Wohneinheiten! Investition in Toplage!

230.000 €

Ausstattung
  • 98 m2
  • 5
  • 2
Lage

RIJEKA

Beschreibung
RIJEKA, ZENTRUM – Elegantes Apartment mit Ausbaupotenzial für 2 Wohneinheiten! Investieren Sie in Toplage!

Rijeka, eine Stadt mit reichem Industrie- und Kulturerbe und ehemalige Kulturhauptstadt Europas, zieht seit jeher Menschen an, die das urbane Leben am Meer zu schätzen wissen. Die Kombination aus österreichisch-ungarischer Architektur, mediterranem Charme und moderner urbaner Dynamik macht die Stadt zu einem idealen Ort zum Wohnen, Arbeiten und Investieren.

Im Herzen der Stadt, nur wenige Schritte vom Markt, dem Kroatischen Nationaltheater Ivan pl. Zajc, dem Korzo und der Uferpromenade entfernt, befindet sich ein großzügiges Apartment in einem repräsentativen historischen Gebäude. Mit einer Fläche von fast 100 m² besticht dieser Raum durch sein elegantes Ambiente – hohe Decken, große Fenster und viel Platz schaffen eine besondere Atmosphäre und bieten vielfältige Nutzungsmöglichkeiten.

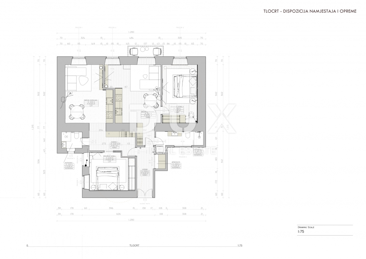
Für diese Immobilie liegt bereits ein Umbauprojekt vor, das die Aufteilung der Wohnung in zwei funktionale Wohneinheiten ermöglicht. Dadurch eignet sie sich hervorragend für die touristische Vermietung, die Langzeitvermietung oder eine Kombination aus Wohnen und Kapitalanlage. Mit dem Kauf über DUX nekretnine und der Unterstützung unseres Architekten können Sie das bestehende Projekt anpassen und die komplette Inneneinrichtung sowie die professionelle Bauleitung in allen Umsetzungsphasen – bis ins kleinste Detail – übernehmen.

Solche Gelegenheiten bieten sich in einer solchen Lage nur selten. Die Kombination aus erstklassiger Lage, architektonischem Wert und Investitionspotenzial macht diese Immobilie einzigartig auf dem Markt.

Für weitere Informationen oder zur Vereinbarung eines Besichtigungstermins kontaktieren Sie mich gerne. Ich freue mich darauf, Ihnen bei der Verwirklichung Ihrer Wohnträume behilflich zu sein!

*** Sehr geehrte Kunden, die Maklerprovision wird gemäß den Allgemeinen Geschäftsbedingungen berechnet:
www.dux-nekretnine.hr/opci-uvjeti-poslovanja
Übersicht
  • Typ: Wohnung
  • Fläche: 98 m2
  • Grundstücksfläche: / m2
  • Zimmer: 5 Zimmer
  • Badezimmer: 2 Zimmer
  • Parkplätze: /
  • Parkplatz: /
  • Garage: /
  • Stockwerk: 1
  • Immobilienansicht: /
  • Energieklasse: /
  • Anzahl der Aufrufe: /
Immobiliendetails
Typ
Wohnung
Fläche
98 m2
Grundstücksfläche
/ m2
Zimmer
5 Zimmer
Badezimmer
2 Zimmer
Parkplätze
/
Parkplatz
/
Garage
/
Stockwerk
1
Immobilienansicht
/
Energieklasse
/
Anzahl der Aufrufe
/
Kartenansicht
  • Ort
    RIJEKA
  • Region
    PRIMORSKO-GORANSKA
Agenturinfo
DUX Nekretnine
Verkäufer kontaktieren
DUX Nekretnine
Tony Jerković
+
=