Zwei-Zimmer-Apartment mit Meerblick Zwei-Zimmer-Apartment mit Meerblick

407.000 €

Ausstattung
  • 65 m2
  • 2
  • 1
Lage

PAG

Beschreibung
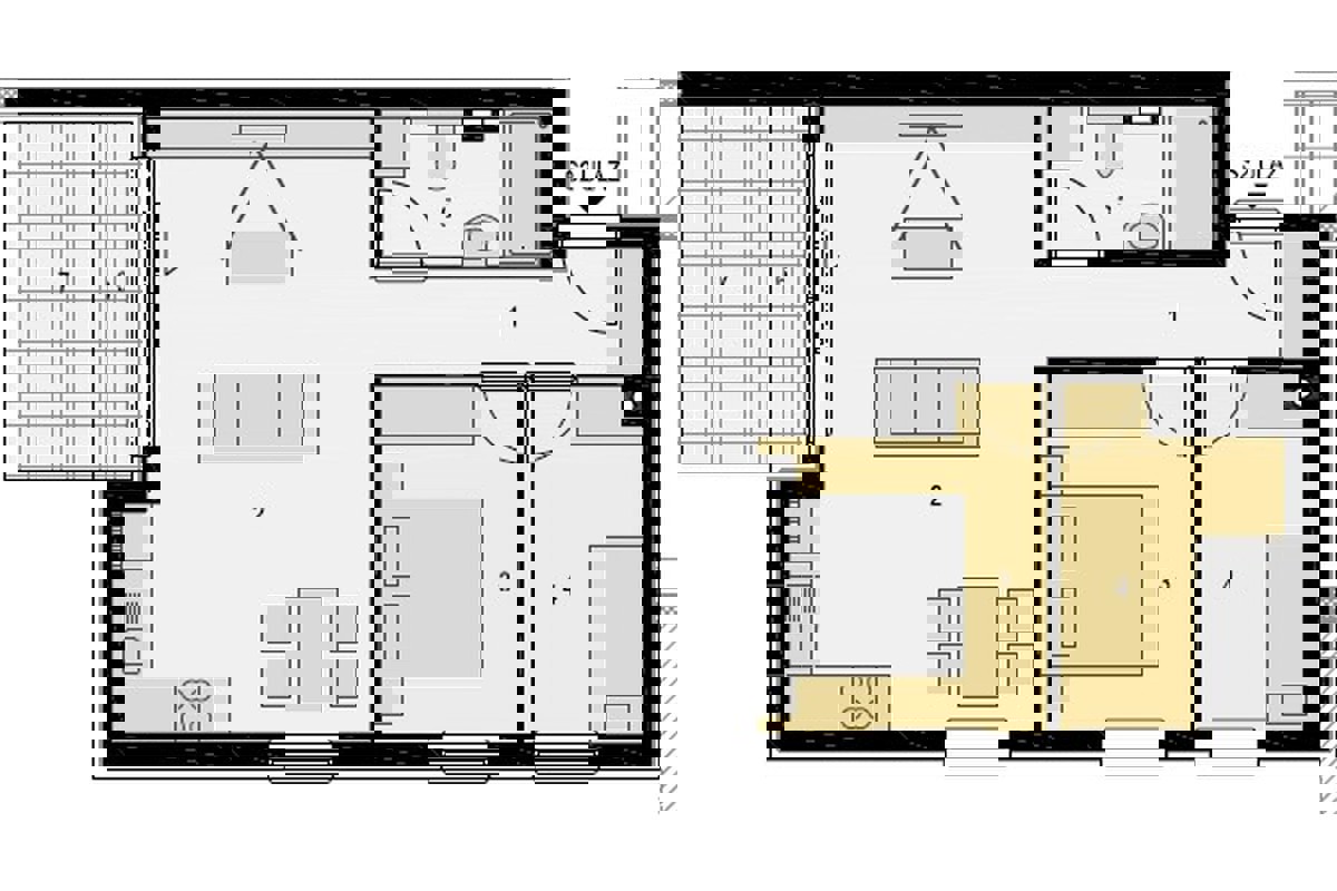
In exklusiver Lage, in erster Reihe zum Meer, befindet sich dieses moderne Zwei-Zimmer-Apartment in einem Neubau. Das Apartment liegt im Erdgeschoss und bietet eine Wohnfläche von 65 m². Es verfügt über zwei Schlafzimmer, ein Badezimmer und einen offenen Wohnbereich mit Küche, Ess- und Wohnzimmer.
 
Vom Wohnzimmer aus gelangen Sie auf eine überdachte Terrasse mit herrlichem Meerblick. Zum Apartment gehört ein 43 m² großer privater Garten sowie ein sicherer Parkplatz.
 
Dank der ersten Reihe zum Meer und des Panoramablicks eignet sich diese Immobilie hervorragend zur Ferienvermietung oder als idealer Ort für einen ruhigen Familienurlaub.
Übersicht
  • Typ: Wohnung
  • Fläche: 65 m2
  • Grundstücksfläche: 45 m2
  • Zimmer: 2 Zimmer
  • Badezimmer: 1 Zimmer
  • Parkplätze: /
  • Parkplatz: /
  • Garage: /
  • Stockwerk: /
  • Immobilienansicht: aufs Meer
  • Energieklasse: /
  • Anzahl der Aufrufe: /
Immobiliendetails
Typ
Wohnung
Fläche
65 m2
Grundstücksfläche
45 m2
Zimmer
2 Zimmer
Badezimmer
1 Zimmer
Parkplätze
/
Parkplatz
/
Garage
/
Stockwerk
/
Immobilienansicht
aufs Meer
Energieklasse
/
Anzahl der Aufrufe
/
Kartenansicht
  • Ort
    PAG
  • Region
    ZADARSKA
Agenturinfo
BROKER - Real Estate Agency
Verkäufer kontaktieren
BROKER - Real Estate Agency
Darko Radelja
+
=