VODICE, Neubau, 2. Obergeschoss + Dachterrasse, 450 m vom St... VODICE, Neubau, 2. Obergeschoss + Dachterrasse, 450 m vom Strand entfernt, Meerblick, Garage, Abstellraum

468.346 €

Ausstattung
  • 126 m2
  • 4
  • 2
Lage

VODICE

Beschreibung
VODICE – Moderne Maisonette-Wohnung mit Dachterrasse und Panoramablick aufs Meer zu verkaufen, nur 450 m vom Strand entfernt!

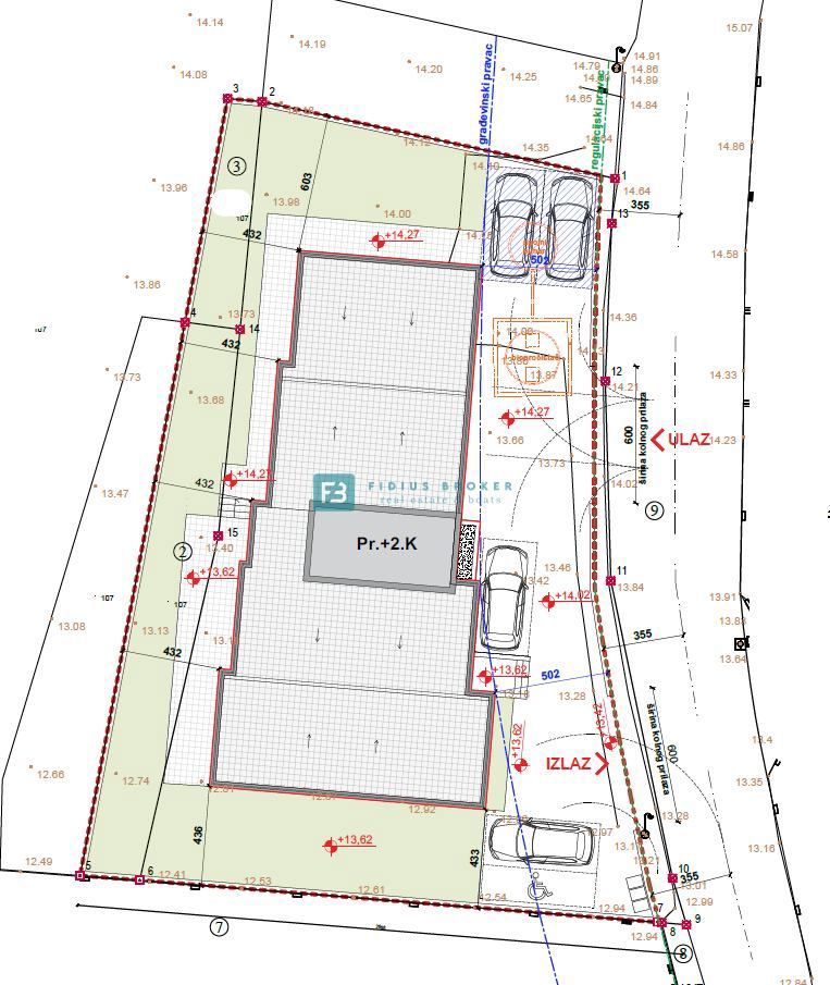
Die Immobilie befindet sich in ruhiger Lage, nur 450 m vom bekannten Stadtstrand (Blauer Strand) und 950 m vom Stadtzentrum entfernt. In unmittelbarer Nähe verläuft eine neu gestaltete Promenade, die Vodice mit Tribunj verbindet.

Ein neues Wohngebäude mit insgesamt fünf Wohneinheiten befindet sich im Bau. Das Gebäude erstreckt sich über vier Etagen: Erdgeschoss, 1. Obergeschoss, 2. Obergeschoss und Dachterrasse. Das moderne Gebäude wird mit hochwertigen Materialien errichtet und nach neuesten Baustandards ausgestattet. Zu den Ausstattungsmerkmalen gehören: 10 cm EPS-Fassade, weiße PVC-Fenster und -Türen (Gaelan), elektrische Rollläden, Dreifachverglasung, Schiebewände, moderne Badezimmerausstattung, hochwertige Keramikfliesen, Laminat in den Schlafzimmern, elektrische Fußbodenheizung in Bädern, Küche und Wohnzimmer, Klimaanlagen in Schlafzimmern und Wohnzimmer, Ladeanschluss für Elektrofahrzeuge in der Garage, Strom- und Wasseranschluss auf den Dachterrassen sowie Abfluss für die Sommerküche. Die Vorinstallation für Solaranlagen auf den Pergolen ist optional und gegen Aufpreis erhältlich. Geplanter Bezugstermin: Sommer 2026.

Die Wohnung S4 erstreckt sich über das 2. und 3. Obergeschoss und bietet eine Wohnfläche von 126,58 m². Sie besteht aus Eingangsbereich, Flur, Badezimmer, drei Schlafzimmern (eines davon mit eigenem Bad), Wohnküche und einem Wohnzimmer mit Zugang zu einer 6,73 m² großen, überdachten Terrasse mit Meerblick. Eine interne Treppe führt zur Dachterrasse im 3. Obergeschoss mit 102,17 m² (netto 25,54 m²) und Panoramablick auf das Meer. Zur Wohnung gehören ein 2,69 m² großer Abstellraum im Erdgeschoss und eine 15,73 m² große Garage.

Der Preis beträgt 468.346 €.

WEITERE WOHNUNGEN IM GEBÄUDE VERFÜGBAR

ERDGESCHOSS

Wohnung S1 – VERKAUFT

1. OBERGESCHOSS

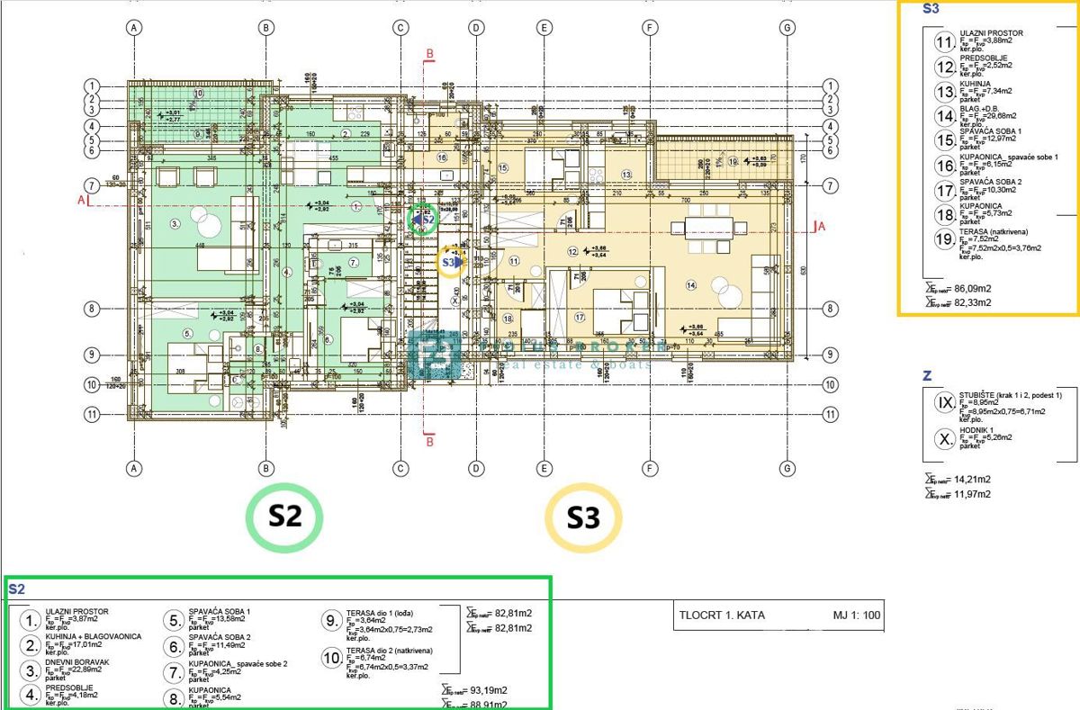
Wohnung S2 befindet sich im 1. Obergeschoss und bietet eine Wohnfläche von 96,26 m². Sie besteht aus Eingangsbereich, Flur, Badezimmer, zwei Schlafzimmern (eines davon mit eigenem Bad), Wohnküche, Wohnzimmer mit Zugang zu einer 10,38 m² großen überdachten Terrasse mit Meerblick. Zur Wohnung gehören ein 2,45 m² großer Abstellraum im Erdgeschoss und zwei Außenstellplätze im Innenhof des Gebäudes. Der Preis beträgt 356.152 €.

Wohnung S3 - RESERVIERT

2. OG + DACHTERRASSE

Die Wohnung S5 erstreckt sich über das 2. und 3. Obergeschoss und bietet eine Gesamtfläche von 119,77 m². Sie besteht aus Eingangsbereich, Flur, Badezimmer, zwei Schlafzimmern (eines davon mit eigenem Bad), Wohnküche und einem Wohnzimmer mit Zugang zu einer überdachten Terrasse (7,52 m²). Über eine interne Treppe gelangt man auf die Dachterrasse im 3. Obergeschoss (94,91 m², davon 24,33 m² Nettofläche) mit Panoramablick auf das Meer. Zur Wohnung gehören außerdem ein Abstellraum im Erdgeschoss (6,05 m²) und eine Garage (15,73 m²). Der Preis beträgt 443.149 €.

Für weitere Informationen kontaktieren Sie uns bitte telefonisch oder per E-Mail.
Übersicht
  • Typ: Wohnung
  • Fläche: 126 m2
  • Grundstücksfläche: / m2
  • Zimmer: 4 Zimmer
  • Badezimmer: 2 Zimmer
  • Parkplätze: /
  • Parkplatz: /
  • Garage: 1
  • Stockwerk: 2
  • Immobilienansicht: aufs Meer
  • Energieklasse: /
  • Anzahl der Aufrufe: /
Immobiliendetails
Typ
Wohnung
Fläche
126 m2
Grundstücksfläche
/ m2
Zimmer
4 Zimmer
Badezimmer
2 Zimmer
Parkplätze
/
Parkplatz
/
Garage
1
Stockwerk
2
Immobilienansicht
aufs Meer
Energieklasse
/
Anzahl der Aufrufe
/
Kartenansicht
  • Ort
    VODICE
  • Region
    ŠIBENSKO-KNINSKA
Agenturinfo
FIDIUS BROKER 2
Verkäufer kontaktieren
FIDIUS BROKER 2
Ljubomir Skočić
+
=