Istrien, Pula: Erdgeschoss wohnung mit garten Istrien, Pula: Erdgeschoss wohnung mit garten

585.000 €

Ausstattung
  • 117 m2
  • 4
  • 2
Lage

PJEŠČANA UVALA , MEDULIN

Beschreibung
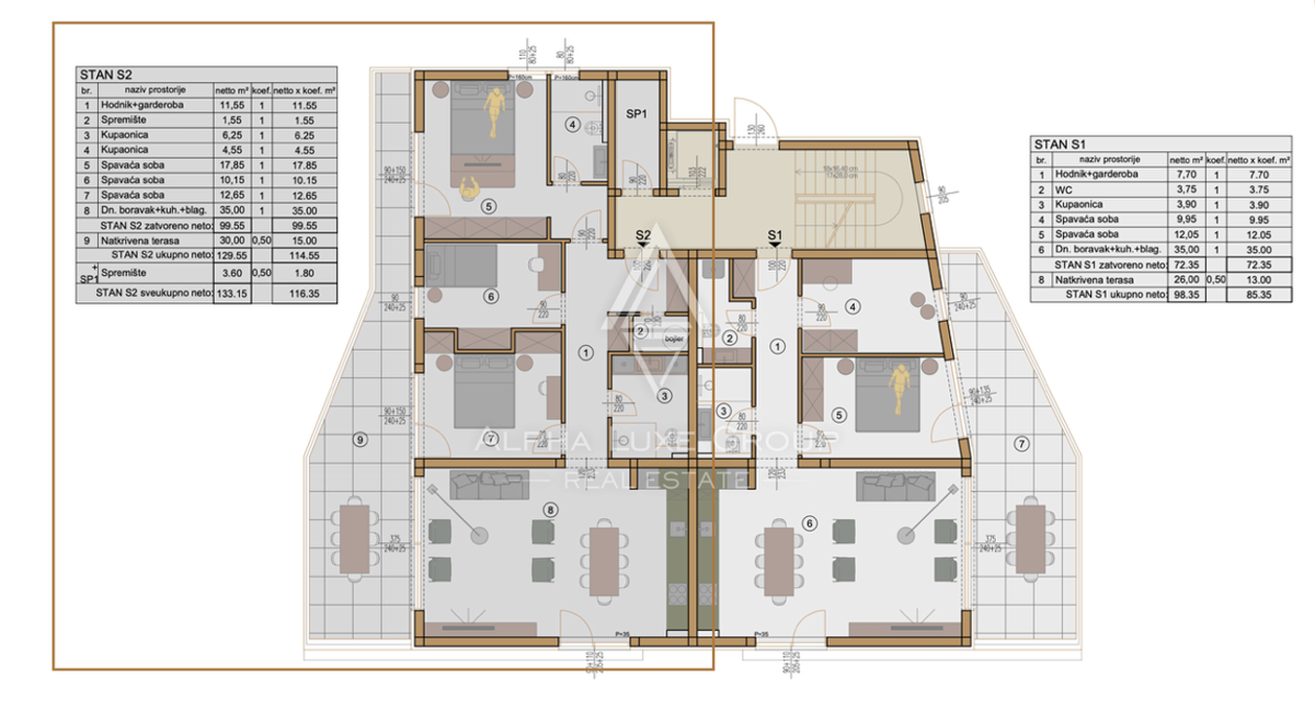
Gelegen in einer der begehrtesten Wohnlagen von Pula befindet sich diese hochwertige Erdgeschosswohnung in einem modernen Luxusprojekt, nur 400 Meter vom Meer entfernt. Dank der Ausrichtung zum Meer und der durchdachten Raumaufteilung bietet diese Immobilie eine ideale Kombination aus modernem Wohnkomfort, Privatsphäre und hohem Investitionspotenzial in einer gefragten Küstenlage.

Die Wohnung verfügt über einen funktionalen und gut organisierten Grundriss mit Eingangsbereich, Garderobe und praktischem Abstellraum. Sie umfasst drei geräumige Schlafzimmer, wobei das Hauptschlafzimmer über ein eigenes en suite Badezimmer verfügt, sowie ein zusätzliches separates Badezimmer. Der offene Wohnbereich vereint eine moderne Küche, Essbereich und ein helles Wohnzimmer, alle mit direktem Zugang zu einer überdachten Terrasse und einem privaten Garten, wodurch ein harmonischer Übergang zwischen Innen- und Außenbereich entsteht. Sowohl der Wohnbereich als auch die Schlafzimmer bieten Zugang zur Terrasse und sorgen für viel Tageslicht und ein großzügiges Raumgefühl.

Es besteht die Möglichkeit, Außen- und Garagenstellplätze zu erwerben, die nicht im Preis enthalten sind. Die Garagenplätze befinden sich im Untergeschoss und sind über eine Rampe erreichbar, während ein Aufzug alle Etagen des Gebäudes verbindet und für maximalen Komfort sorgt.

Der Innenbereich wird mit hochwertigen Materialien ausgestattet, darunter erstklassige Keramikfliesen sowie Parkettböden in den Schlafzimmern. Heizung und Kühlung erfolgen über moderne Klimaanlagen sowie elektrische Fußbodenheizung und gewährleisten ganzjährigen Komfort.

Die Fertigstellung ist für den Winter 2025 geplant. Die Immobilie befindet sich in einer ruhigen und gepflegten Umgebung, die Privatsphäre bietet und gleichzeitig in unmittelbarer Nähe zum Zentrum von Pula und allen wichtigen Einrichtungen liegt, wodurch sie sich ideal für den Eigenbedarf oder als Investition eignet.

Pula zählt zu den attraktivsten Küstenstädten Istriens und ist bekannt für ihr kristallklares Meer, ihre reiche Geschichte und die hohe Nachfrage nach Immobilien. Pješčana Uvala überzeugt durch ihre ruhige Lage, die Nähe zu Stränden und eine ausgezeichnete Infrastruktur und gehört zu den gefragtesten Standorten.

Ihre Zufriedenheit ist unsere Mission. Wir freuen uns auf eine zukünftige Zusammenarbeit!

Besichtigungen werden nach vorheriger Unterzeichnung eines Maklervertrags gemäß dem Immobilienvermittlungsgesetz organisiert.

Die Maklerprovision beträgt 3% + MwSt. und ist bei Unterzeichnung des Vorvertrags oder Kaufvertrags fällig.

https://immobilienistrienkaufen.de
Übersicht
  • Typ: Wohnung
  • Fläche: 117 m2
  • Grundstücksfläche: / m2
  • Zimmer: 4 Zimmer
  • Badezimmer: 2 Zimmer
  • Parkplätze: /
  • Parkplatz: /
  • Garage: 1
  • Stockwerk: /
  • Immobilienansicht: aufs Meer
  • Energieklasse: /
  • Anzahl der Aufrufe: /
Immobiliendetails
Typ
Wohnung
Fläche
117 m2
Grundstücksfläche
/ m2
Zimmer
4 Zimmer
Badezimmer
2 Zimmer
Parkplätze
/
Parkplatz
/
Garage
1
Stockwerk
/
Immobilienansicht
aufs Meer
Energieklasse
/
Anzahl der Aufrufe
/
Kartenansicht
  • Ortsteil
    MEDULIN
  • Ort
    PJEŠČANA UVALA
  • Region
    ISTARSKA
Agenturinfo
ALPHA LUXE GROUP REAL ESTATE
Verkäufer kontaktieren
ALPHA LUXE GROUP REAL ESTATE
Marijana Budimir
+
=