Istrien, Pula: Erdgeschoss wohnung mit terrasse Istrien, Pula: Erdgeschoss wohnung mit terrasse

190.000 €

Ausstattung
  • 55 m2
  • 3
  • 1
Lage

PULA

Beschreibung
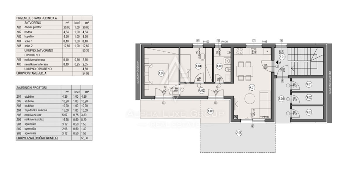
Moderne Erdgeschosswohnung zum Verkauf in einer neu entwickelten Wohnanlage in ruhiger und gut angebundener Lage in Pula. Das Projekt umfasst drei Gebäude in Reihe, wobei jedes Gebäude aus vier sorgfältig geplanten Wohneinheiten besteht und somit Privatsphäre sowie hohen Wohnkomfort gewährleistet.

Die Wohnung befindet sich im Erdgeschoss und verfügt über eine funktionale Raumaufteilung mit Eingangsbereich, offenem Wohnraum mit Küche und Essbereich, zwei Schlafzimmern, einem Badezimmer sowie einer überdachten und einer nicht überdachten Terrasse, ideal für entspannte Stunden im Freien.

Die Immobilie wurde nach hohen Baustandards errichtet und ist mit Klimaanlage für Heizung und Kühlung, Fußbodenheizung, elektrischen Rollläden, Sicherheitstüren sowie hochwertiger PVC-Dreifachverglasung ausgestattet, was eine hervorragende Energieeffizienz und Schalldämmung garantiert.

Zur Wohnung gehören außerdem ein Außenstellplatz und ein Abstellraum, was zusätzlichen Komfort und Stauraum bietet. Die geplante Fertigstellung ist für 2026 vorgesehen und stellt eine hervorragende Gelegenheit für Eigennutzer oder Investoren dar.

Das Eigentum ist klar und vollständig eingetragen 1/1.

Pula gehört zu den gefragtesten Regionen in Istrien und ist bekannt für ihre reiche Geschichte, wunderschöne Küste und stabile Immobiliennachfrage. Das Viertel Valmade bietet eine ruhige Wohnatmosphäre bei gleichzeitig hervorragender Nähe zum Stadtzentrum, zu Stränden, Schulen und allen wichtigen Einrichtungen.

Your satisfaction is our mission. We look forward to future collaboration!

Besichtigungen der Immobilie sind ausschließlich nach vorheriger Unterzeichnung eines Maklervertrags gemäß dem Immobilienvermittlungsgesetz möglich.

Die Maklerprovision beträgt 3% + MwSt. und ist bei Abschluss des Vorvertrags oder Kaufvertrags fällig.

https://immobilienistrienkaufen.de
Übersicht
  • Typ: Wohnung
  • Fläche: 55 m2
  • Grundstücksfläche: / m2
  • Zimmer: 3 Zimmer
  • Badezimmer: 1 Zimmer
  • Parkplätze: /
  • Parkplatz: /
  • Garage: /
  • Stockwerk: /
  • Immobilienansicht: /
  • Energieklasse: 1
  • Anzahl der Aufrufe: /
Immobiliendetails
Typ
Wohnung
Fläche
55 m2
Grundstücksfläche
/ m2
Zimmer
3 Zimmer
Badezimmer
1 Zimmer
Parkplätze
/
Parkplatz
/
Garage
/
Stockwerk
/
Immobilienansicht
/
Energieklasse
1
Anzahl der Aufrufe
/
Kartenansicht
  • Ort
    PULA
  • Region
    ISTARSKA
Agenturinfo
ALPHA LUXE GROUP REAL ESTATE
Verkäufer kontaktieren
ALPHA LUXE GROUP REAL ESTATE
Marijana Budimir
+
=