Podstrana - schöne Drei-Zimmer-Wohnung mit Garten Podstrana - schöne Drei-Zimmer-Wohnung mit Garten

291.000 €

Ausstattung
  • 77 m2
  • 3
  • 2
Lage

PODSTRANA

Beschreibung
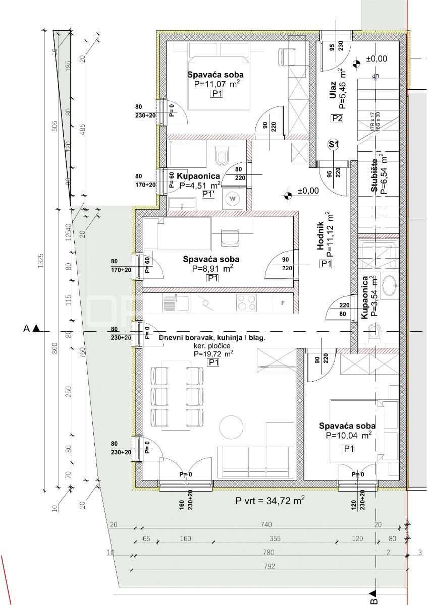
In einem ruhigen und äußerst gefragten Teil von Podstrana, in der Nähe des Meeres und gepflegter Strände, entsteht ein modernes Wohngebäude mit zeitgenössischer Architektur, das dieses elegante Drei-Zimmer-Apartment im Erdgeschoss beherbergt. Die Gesamtwohnfläche beträgt 76,68 m², zusätzlich mit einem privaten Garten von 35 m², ideal zum Entspannen, für gesellige Treffen oder zum Genießen des mediterranen Lebensstils.

Die Wohnung ist auf Funktionalität und Komfort ausgelegt und verbindet modernes Design mit praktischen Lösungen für den Alltag. Wohnzimmer, Küche und Essbereich bilden einen offenen, hellen und luftigen Raum, der sich natürlich in den Garten erstreckt und Privatsphäre sowie Verbindung zum Außenbereich bietet.

Drei komfortable Schlafzimmer ermöglichen erholsame Nächte, während das Badezimmer und ein zusätzlicher Abstellraum die Funktionalität erhöhen. Der direkte Zugang vom Wohnzimmer zum Garten macht die Wohnung besonders attraktiv für Familienleben und Outdoor-Aktivitäten.

Der Blick auf die Umgebung und der gepflegte Außenbereich verstärken das Komfortgefühl und die mediterrane Atmosphäre. Das Gebäude und die Wohnungen werden nach hohen Standards gebaut, mit hochwertigen Materialien und Ausführungen, die langfristigen Wert garantieren.

Die Konstruktion umfasst Stahlbetonbau nach Vorschriften, thermisch isolierte Außenwände (ETICS-System) und erdbebensichere Bauweise. Das Flachdach ist mit Hydro- und Wärmedämmung ausgestattet.

Fassade und Dämmung bestehen aus einem 10 cm Mineralwoll-ETICS-System mit Silikon-Silikat-Finish sowie Wärme- und Schalldämmung zwischen den Geschossen.

Die Tischlerei ist hochwertig aus PVC und ALU mit elektrischen Rollläden und einbruchssicheren Eingangstüren. Die Böden in den Zimmern sind Mehrschichtparkett hoher Qualität, während Wohnzimmer, Küche und Flur mit italienischen Keramikfliesen ausgestattet sind, ebenso die Bäder. Terrassen und Balkone erhalten rutschfeste Fliesen. Käufer können ihre bevorzugten Fliesen und Parkettböden in einem vom Bauträger festgelegten Showroom auswählen, wenn die Wohnung in diesem Bauabschnitt erworben wird.

Die Sanitäranlagen stammen von renommierten Herstellern, mit GEBERIT Unterputzspülkästen. Die Installationen umfassen ein Multisplit-Klimagerät im Wohnzimmer, Klimavorbereitung in den Schlafzimmern, Video-Gegensprechanlage und TV/Internet-Vorbereitung. Fußbodenheizung ist in den Badezimmern vorgesehen.

Die Umgebung umfasst einen gestalteten Garten, Außenbeleuchtung und einen Parkplatz, der für zusätzlich 15.000 € erworben werden kann.

Die Architektur ist klar und elegant, die Gemeinschaftsbereiche wurden sorgfältig gestaltet, um den Bewohnern Sicherheit und Komfort zu bieten. Die Lage ermöglicht schnellen Zugang nach Split und zu allen für das ganze Jahr erforderlichen Einrichtungen, einschließlich Geschäften, Schulen, Restaurants und Promenaden am Meer.

Die Rohbauarbeiten sind derzeit im Gange, das Erdgeschoss ist fertiggestellt, und der geplante Einzugstermin ist Ende 2026.

Dieses Drei-Zimmer-Apartment stellt eine ausgezeichnete Gelegenheit für Familienleben, einen Aufenthalt am Meer oder eine sichere Investition in eine der begehrtesten Destinationen Mitteldalmatiens dar.
Übersicht
  • Typ: Wohnung
  • Fläche: 77 m2
  • Grundstücksfläche: / m2
  • Zimmer: 3 Zimmer
  • Badezimmer: 2 Zimmer
  • Parkplätze: /
  • Parkplatz: /
  • Garage: /
  • Stockwerk: /
  • Immobilienansicht: /
  • Energieklasse: /
  • Anzahl der Aufrufe: /
Immobiliendetails
Typ
Wohnung
Fläche
77 m2
Grundstücksfläche
/ m2
Zimmer
3 Zimmer
Badezimmer
2 Zimmer
Parkplätze
/
Parkplatz
/
Garage
/
Stockwerk
/
Immobilienansicht
/
Energieklasse
/
Anzahl der Aufrufe
/
Kartenansicht
  • Ort
    PODSTRANA
  • Region
    SPLITSKO-DALMATINSKA
Agenturinfo
Opereta Real Estate
Verkäufer kontaktieren
Opereta Real Estate
Zagreb Office
+
=