Wohnung 3Z, 94,81 m² in erhöhter Lage mit Meerblick, Makarsk... Wohnung 3Z, 94,81 m² in erhöhter Lage mit Meerblick, Makarska

324.606 €

Ausstattung
  • 95 m2
  • 3
  • 2
Lage

MAKARSKA

Beschreibung
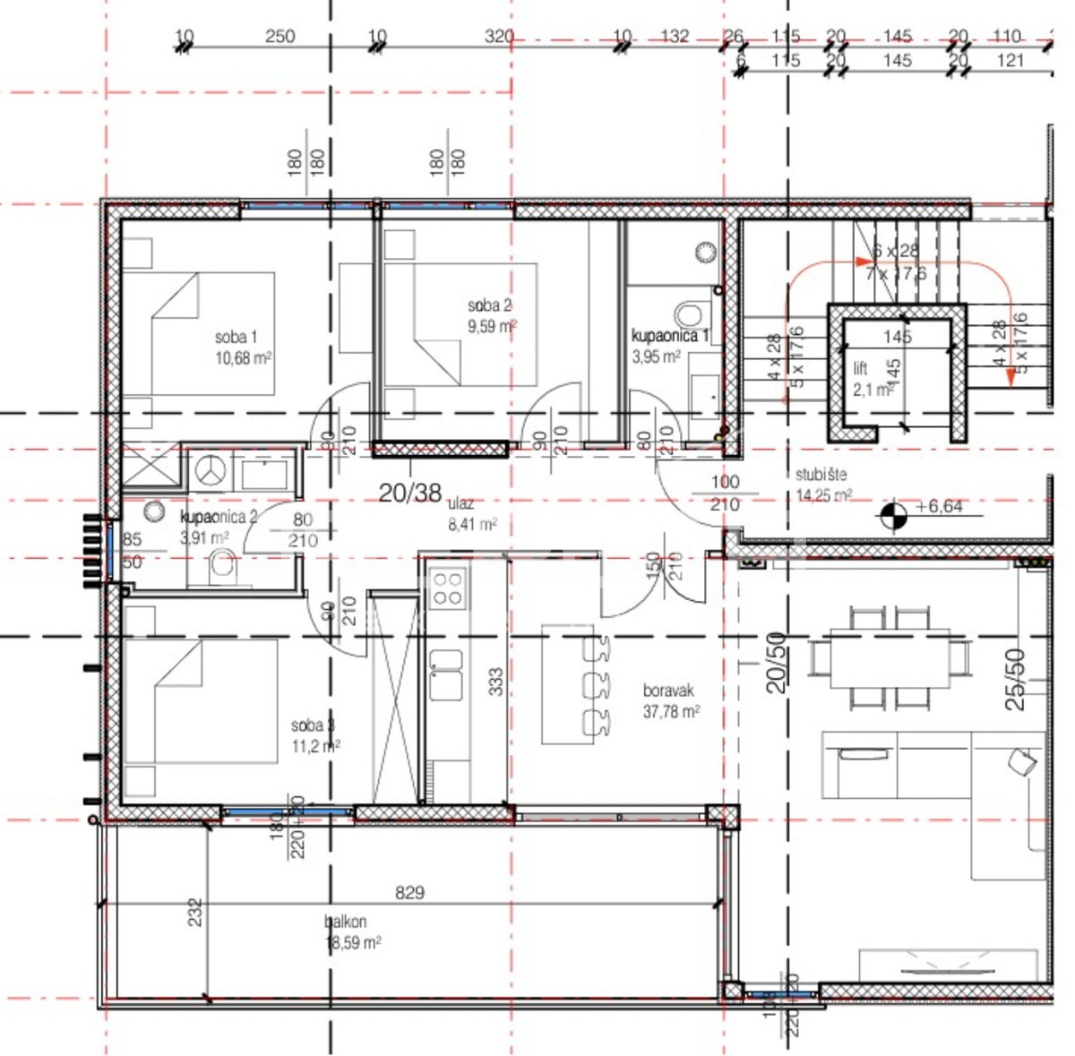
3-Zimmer-Wohnung, 94,81 m² mit großem Balkon und Meerblick – Makarska

In erhöhter Lage, in einem ruhigen und familienfreundlichen Teil von Makarska, befindet sich diese Wohnung mit einer Gesamtfläche von 94,81 m². Sie überzeugt durch Großzügigkeit, Offenheit und ein sehr angenehmes Wohngefühl. Große Glasflächen und ein durchdachter Grundriss sorgen für viel Tageslicht und betonen die Verbindung zwischen Innen- und Außenbereich.

Die Wohnung besteht aus drei Schlafzimmern, zwei Badezimmern, einer Küche sowie einem großzügigen Wohnbereich, der das Herzstück der Wohnung bildet. Über große Schiebe-Glaselemente öffnet sich der Wohnbereich zu einem großen Balkon, der bei vollständig geöffneten Elementen zu einer natürlichen Erweiterung des Wohnraums wird und eine großzügige, harmonische Einheit schafft. Vom Balkon aus bietet sich ein wunderschöner Blick auf das Meer und die umliegende Natur.

Das Gebäude ist nach höheren Baustandards konzipiert und verfügt über einen Aufzug, der alle Etagen miteinander verbindet und einen einfachen sowie komfortablen Zugang zur Wohnung ermöglicht. Große Glasflächen schaffen helle und luftige Räume, während hochwertige Materialien langfristigen Wohnkomfort gewährleisten.

Die Lage eignet sich sowohl für ruhiges Wohnen als auch als sichere Investitionsmöglichkeit. Eine Grundschule und ein Kindergarten befinden sich in unmittelbarer Nähe, Strand und Zentrum von Makarska sind nur wenige Fahrminuten entfernt. Die Kombination aus Lage, funktionalem Grundriss, großzügigem Außenbereich und Meerblick macht diese Wohnung zu einer attraktiven Wahl für den täglichen Gebrauch oder die gelegentliche Nutzung, mit klarem Wert als langfristiges Zuhause und stabile Investition.

Die geplante Fertigstellung und der Bezug sind für Juli 2026 vorgesehen. Der Investor ist geprüft und zuverlässig und verfügt über bereits realisierte Mehrfamilienprojekte in Makarska und Umgebung, die als klare Referenz für Bauqualität und Termintreue dienen.
Übersicht
  • Typ: Wohnung
  • Fläche: 95 m2
  • Grundstücksfläche: / m2
  • Zimmer: 3 Zimmer
  • Badezimmer: 2 Zimmer
  • Parkplätze: /
  • Parkplatz: 1
  • Garage: 1
  • Stockwerk: 2
  • Immobilienansicht: aufs Meer
  • Energieklasse: /
  • Anzahl der Aufrufe: /
Immobiliendetails
Typ
Wohnung
Fläche
95 m2
Grundstücksfläche
/ m2
Zimmer
3 Zimmer
Badezimmer
2 Zimmer
Parkplätze
/
Parkplatz
1
Garage
1
Stockwerk
2
Immobilienansicht
aufs Meer
Energieklasse
/
Anzahl der Aufrufe
/
Kartenansicht
  • Ort
    MAKARSKA
  • Region
    SPLITSKO-DALMATINSKA
Agenturinfo
Opereta Real Estate
Verkäufer kontaktieren
Opereta Real Estate
Zagreb Office
+
=