Neubau in Stara Novalja, 2-Zimmer-Wohnung mit Terrasse Neubau in Stara Novalja, 2-Zimmer-Wohnung mit Terrasse

225.000 €

Ausstattung
  • 66 m2
  • 2
  • 1
Lage

STARA NOVALJA , NOVALJA

Beschreibung
Neubau in Stara Novalja, 2-Zimmer-Wohnung mit Terrasse

In Stara Novalja, nur wenige Minuten vom Meer entfernt, entstehen drei kleinere Gebäude mit jeweils sechs Wohnungen, die nach hohen Baustandards und mit modernem, elegantem Design errichtet werden.
Alle Gebäude verfügen über nahezu identische Wohnungsgrößen und Grundrisse. Auf jeder Etage befinden sich zwei Zweizimmerwohnungen mit eigenen Terrassen.

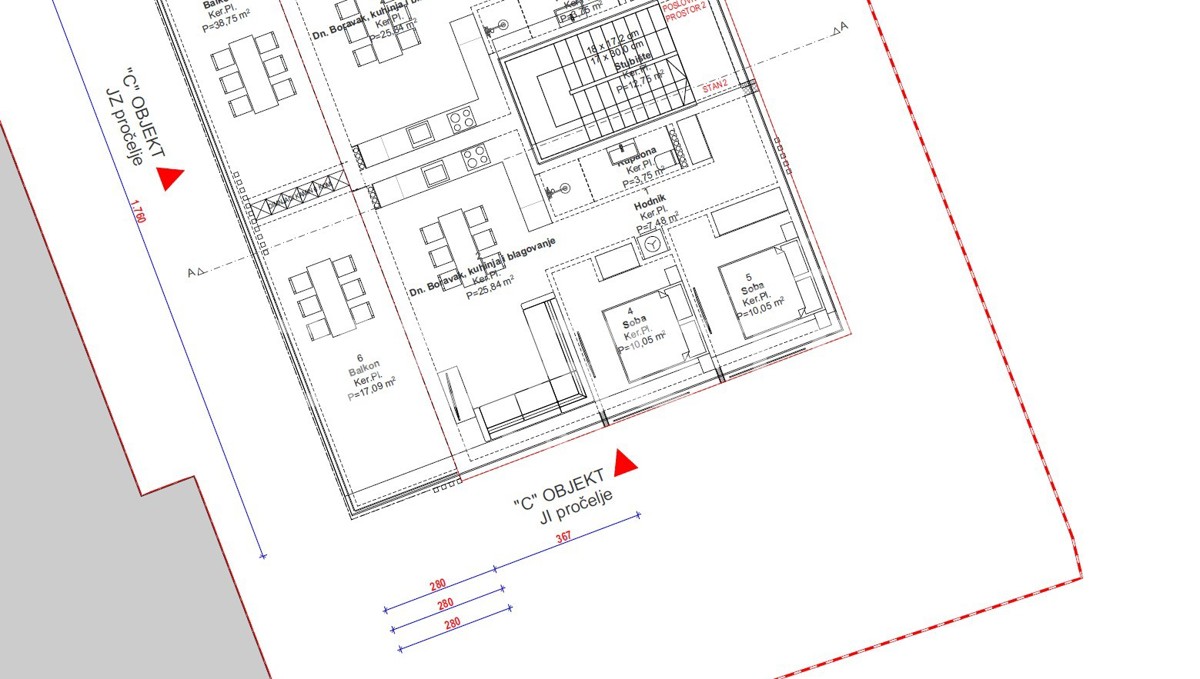
Gebäude C, Wohnung 4, 1. Stock
Sie besteht aus zwei Schlafzimmern, einem offenen Wohn- und Küchenbereich und einer großen überdachten Terrasse.
Im Preis jeder Wohnung sind ein kostenloser Parkplatz und ein gemauerter Grill enthalten.

Der Grundriss ist funktional und leicht einzurichten, mit Schwerpunkt auf großzügigen Außenflächen und einem hellen Wohnbereich.
Jedes Schlafzimmer sowie das Wohnzimmer verfügen über eine eigene Klimaanlage, insgesamt drei, in den Badezimmern ist Fußbodenheizung verlegt.

Das Gebäude wird in Stahlbetonbauweise errichtet, mit 15 cm Außenwärmedämmung, Aluminium-Dreifachverglasung mit Hebe-Schiebe-Elementen und Stop-Sol-Beschichtung, hochwertigen Keramikbelägen in allen Räumen und einbruchsicheren Eingangstüren.
Die Innenräume sind mit doppelter Gipskarton- und Steinwolldämmung voneinander getrennt, was den Schall- und Brandschutz verbessert.
Die Eingangstüren des Gebäudes sind Inotherm-Aluminium-Sicherheitstüren, das Treppenhaus ist brandschutzgesichert und jede Wohnung verfügt über eine Video-Gegensprechanlage.

Die Erteilung aller erforderlichen Genehmigungen ist für das erste Quartal 2026 vorgesehen, eine Besichtigung ist nach vorheriger Vereinbarung möglich.

Stara Novalja besticht durch seine ruhige Umgebung, die Nähe zu Stränden und kristallklarem Meer und bietet gleichzeitig eine gute Anbindung an den Rest der Insel und die Annehmlichkeiten in Novalja.
Dieser Neubau verbindet modernes Design, hohe Bauqualität, gesicherte Parkplätze und eine ruhige Lage.
Übersicht
  • Typ: Wohnung
  • Fläche: 66 m2
  • Grundstücksfläche: / m2
  • Zimmer: 2 Zimmer
  • Badezimmer: 1 Zimmer
  • Parkplätze: /
  • Parkplatz: 1
  • Garage: /
  • Stockwerk: 1
  • Immobilienansicht: aufs Meer
  • Energieklasse: /
  • Anzahl der Aufrufe: /
Immobiliendetails
Typ
Wohnung
Fläche
66 m2
Grundstücksfläche
/ m2
Zimmer
2 Zimmer
Badezimmer
1 Zimmer
Parkplätze
/
Parkplatz
1
Garage
/
Stockwerk
1
Immobilienansicht
aufs Meer
Energieklasse
/
Anzahl der Aufrufe
/
Kartenansicht
  • Ortsteil
    NOVALJA
  • Ort
    STARA NOVALJA
  • Region
    LIČKO-SENJSKA
Agenturinfo
Opereta Real Estate
Verkäufer kontaktieren
Opereta Real Estate
Zagreb Office
+
=