Šilo, eine luxuriöse Villa mit einem weitläufigen Garten in ... Šilo, eine luxuriöse Villa mit einem weitläufigen Garten in unmittelbarer Nähe zum Meer!

1.499.000 €

Ausstattung
  • 232 m2
  • 5
  • 5
Lage

ŠILO , KRK

Beschreibung
Über unsere Agentur in Kvarner wird ein äußerst wertvolles und hochwertig erbautes Ferienhaus in einer bekannten und attraktiven adriatischen Tourismusregion auf der Insel Krk, im Ort Šilo, zum Verkauf angeboten.
Diese elegante Immobilie stellt eine hervorragende Wahl sowohl für die touristische Vermietung, als auch für einen luxuriösen Urlaub oder einen angenehmen ganzjährigen Aufenthalt an der Adriaküste dar.

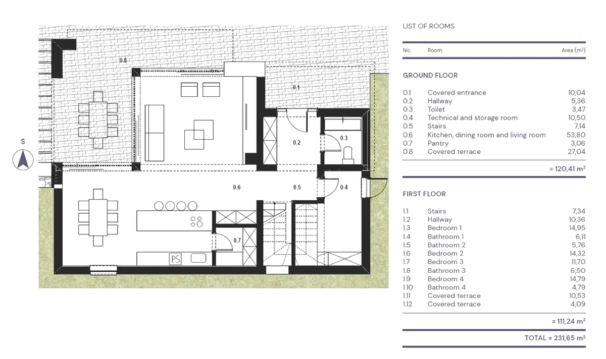
Das Haus erstreckt sich über zwei Etagen mit einer gesamten Wohnfläche von 232 m² und wurde nach hohen Standards in Bezug auf Komfort, Qualität und modernes Wohnen konzipiert und ausgeführt.
Der Innenbereich umfasst ein großzügiges, offen gestaltetes Wohnzimmer mit Verbindung zur Küche und zum Essbereich, vier komfortable Schlafzimmer, vier modern ausgestattete Badezimmer, ein zusätzliches Gäste-WC, eine Terrasse sowie zwei Balkone. Die Raumaufteilung wurde sorgfältig geplant, um maximale Funktionalität und ein angenehmes Gefühl von Großzügigkeit und Luftigkeit zu gewährleisten.

Ein besonderer Wert dieser Immobilie liegt in ihrem Premium-Ausführungsstandard, da sie nach den Standards von Fünf-Sterne-Villen geplant und realisiert wurde.
Das Haus wird vollständig mit Designermöbeln möbliert verkauft und ist zudem mit allen notwendigen Geräten sowie komplettem Inventar ausgestattet, einschließlich Bettwäsche, Handtüchern, Geschirr und Besteck, was dem zukünftigen Eigentümer einen sofortigen Einzug oder die Fortführung der touristischen Vermietung ohne zusätzliche Investitionen ermöglicht. Für ganzjährigen Komfort wurden zusätzlich Fußbodenheizung und ein modernes HVAC-System installiert.

Das Grundstück dieser luxuriösen Immobilie wurde sorgfältig gestaltet und als private Oase für Erholung und Genuss konzipiert.
Im Mittelpunkt des Außenbereichs befindet sich ein Swimmingpool mit Sonnenterrasse, ergänzt durch einen Bereich für Grillen und Entspannung im Freien. Ein besonderes Ambiente verleiht dem gesamten Anwesen die beeindruckende gärtnerische Gestaltung, die sogar 24 etwa 150 Jahre alte Olivenbäume, mehr als 700 sorgfältig ausgewählte Pflanzen sowie professionell angelegte mediterrane Gärten umfasst. Auf dem Grundstück stehen außerdem Parkplätze für zwei Fahrzeuge zur Verfügung.

Neben der erstklassigen Lage und dem attraktiven Außenbereich wird diese Immobilie zusätzlich durch einen sehr schönen offenen Meerblick hervorgehoben, der den mediterranen Charakter des gesamten Anwesens perfekt abrundet.

Große Aufmerksamkeit wurde auch der Bauqualität selbst gewidmet, wobei ausschließlich hochwertige Materialien und Ausstattung verwendet wurden. Der Bau wurde von erfahrenen Fachkräften unter ständiger fachlicher Aufsicht ausgeführt, wobei in allen Phasen der Realisierung besonderes Augenmerk auf Details, Endverarbeitung und langfristige Qualität gelegt wurde.

Die Immobilie befindet sich im Mehrwertsteuersystem (MwSt.), und der Eigentümer garantiert ordnungsgemäße Eigentumsunterlagen sowie die Möglichkeit einer schnellen Eigentumsübertragung auf den Käufer.

Die Agentur STAN GRAD Immobilien bietet umfassende Unterstützung während des gesamten Kaufprozesses.
Neben einer professionellen Besichtigung und Präsentation der Immobilie sowie der Prüfung ihres rechtlichen Status steht unser kompetentes und herzliches Team dem Käufer auch bei der Übertragung der Eigentumsrechte sowie bei der Umschreibung der Versorgungsanschlüsse und Nebenkostenverträge auf seinen Namen zur Verfügung.
Übersicht
  • Typ: Haus
  • Fläche: 232 m2
  • Grundstücksfläche: 570 m2
  • Zimmer: 5 Zimmer
  • Badezimmer: 5 Zimmer
  • Parkplätze: /
  • Parkplatz: /
  • Garage: /
  • Stockwerk: /
  • Immobilienansicht: aufs Meer
  • Energieklasse: /
  • Anzahl der Aufrufe: /
Immobiliendetails
Typ
Haus
Fläche
232 m2
Grundstücksfläche
570 m2
Zimmer
5 Zimmer
Badezimmer
5 Zimmer
Parkplätze
/
Parkplatz
/
Garage
/
Stockwerk
/
Immobilienansicht
aufs Meer
Energieklasse
/
Anzahl der Aufrufe
/
Kartenansicht
  • Ortsteil
    KRK
  • Ort
    ŠILO
  • Region
    PRIMORSKO-GORANSKA
Agenturinfo
Stan Grad Immobilien
Verkäufer kontaktieren
+
=