Haus Polje, Dobrinj, 468m2 Haus Polje, Dobrinj, 468m2

0 €

Ausstattung
  • 468 m2
  • 8
  • 7
Lage

POLJE , KRK

Beschreibung
Eine zeitlose Vision von Luxus im Herzen der Insel Krk

Kaiser Immobilien präsentiert ein exklusives Luxusvillenprojekt, das weit mehr ist als nur eine Sammlung von Immobilien zum Verkauf – es ist Ausdruck einer neu entfachten Leidenschaft für den Erhalt der zeitlosen Schönheit und Tradition der Insel Krk.

Eingebettet in die friedliche Landschaft von Polje, im Herzen der Region Dobrinj, bilden diese Villen eine neue mediterrane Oase – sechs elegante Gebäude, entworfen für all jene, die Ruhe, Authentizität und Architektur mit Seele schätzen. Hier verschmelzen der Charme des Erbes und die Ästhetik der Toskana nahtlos mit höchstem modernen Komfort und schaffen einen Ort, an dem Tradition Land, Meer und Menschen in einer raffinierten Lebensart verbindet.

Umgeben von duftenden Olivenhainen und mediterraner Vegetation bietet jede Villa einen atemberaubenden Panoramablick auf die Adria. Das architektonische Konzept zelebriert Licht und Weite, unterstrichen durch große Glaswände, die die Grenze zwischen Innenraum und sorgfältig angelegten Gärten verschwimmen lassen.

Das Herzstück jedes Hauses bilden offene, lichtdurchflutete Räume. Schlafzimmer mit eigenem Bad und Balkone mit Meerblick gewährleisten absolute Privatsphäre.

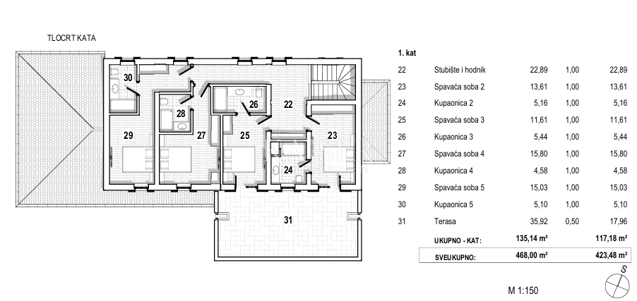
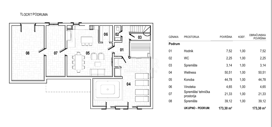
Die Vielfalt des Angebots ermöglicht es jedem Käufer, sein Traumhaus zu finden – von Villen mit 150 und 170 m² über großzügige Gebäude mit 191 m² bis hin zu einer beeindruckenden Residenz mit 468 m², einem zusätzlichen Stockwerk und einer privaten Wellnessoase – ein wahres Juwel dieses Projekts.

Jede Villa ist mit modernster Technik ausgestattet – Fußbodenheizung, Klimaanlage und hochwertigen Materialien. Private Pools und gepflegte Gärten schaffen eine Atmosphäre mediterranen Luxus.

Diese nach höchsten Standards gebauten Immobilien garantieren Langlebigkeit, Energieeffizienz und sorgenfreies Wohnen. Der schlüsselfertige Verkauf ermöglicht einen unkomplizierten Einzug in Ihr neues Zuhause oder einen schnellen Start in die Ferienvermietung. Die im Preis enthaltene Mehrwertsteuer unterstreicht die Sicherheit Ihrer Investition.

Dies ist mehr als nur eine Immobilie – dies ist eine Einladung, im Einklang mit der Natur zu leben, in einer Umgebung, in der jedes Detail von Qualität zeugt und jeder Ausblick uns daran erinnert, warum Krk eine Insel mit Seele ist.

Kaiser Immobilien – Ihr Partner für hochwertige Immobilien in der Kvarner-Region

Die Maklerprovision für den Käufer beträgt 3 % zzgl. MwSt. Die Provision deckt alle mit dem Kauf verbundenen Leistungen ab und wird erst nach Abschluss des Kaufvertrags fällig.

Für weitere Informationen kontaktieren Sie bitte:

Marijana Cuculić
Telefon: +385 981 8699 50
E-Mail: marijana.cuculic@kaiser-immobilien.hr

Nelica Arsenijević
Telefon: +385 91 925 48 09
E-Mail: nelica@kaiser-immobilien.hr
Übersicht
  • Typ: Haus
  • Fläche: 468 m2
  • Grundstücksfläche: 637 m2
  • Zimmer: 8 Zimmer
  • Badezimmer: 7 Zimmer
  • Parkplätze: /
  • Parkplatz: /
  • Garage: /
  • Stockwerk: /
  • Immobilienansicht: aufs Meer
  • Energieklasse: /
  • Anzahl der Aufrufe: /
Immobiliendetails
Typ
Haus
Fläche
468 m2
Grundstücksfläche
637 m2
Zimmer
8 Zimmer
Badezimmer
7 Zimmer
Parkplätze
/
Parkplatz
/
Garage
/
Stockwerk
/
Immobilienansicht
aufs Meer
Energieklasse
/
Anzahl der Aufrufe
/
Kartenansicht
  • Ortsteil
    KRK
  • Ort
    POLJE
  • Region
    PRIMORSKO-GORANSKA
Agenturinfo
Kaiser Immobilien
Verkäufer kontaktieren
+
=