Immobilien Istrien, Zum Verkauf eine Wohnung in Novigrad, Ma... Immobilien Istrien, Zum Verkauf eine Wohnung in Novigrad, Mareda

220.000 €

Ausstattung
  • 40 m2
  • 1
  • 1
Lage

NOVIGRAD

Beschreibung
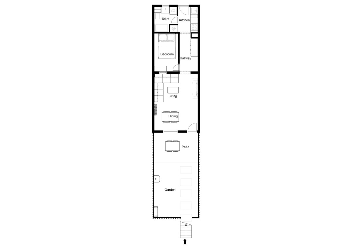
Wohnung in Novigrad (Mareda) haben insgesamt 40 m2. Die Wohnung befindet sich im Erdgeschoss, nur 5 min. (400m) vom Meer und schönen Stränden, 10 min. (4000 m) sind Sie vom Stadtzentrum Novigrad entfernt. Die Wohnung besteht aus Küche, Wohnraum, Badezimmer, Schlafzimmer, Terrasse 15 m2. Es ist mit einer Klimaanlage ausgestattet, Sommerküche.
Die Wohnung ist nur etwa 1000 m vom Verkaufsladen, vom Restaurant 200 m, Marktplatz 3000 m, Arzt 3000 m, Apotheke 3000 m, vom Flughafen in Pula 60 km und vom Flughafen in Portorož 30 km, von der Marine Novigrad 3000 m, und von dem Aquapark (Istralandia) 7 km.

Für weitere Auskünfte stehen wir Ihnen gerne zur Verfügung.
Übersicht
  • Typ: Wohnung
  • Fläche: 40 m2
  • Grundstücksfläche: 15 m2
  • Zimmer: 1 Zimmer
  • Badezimmer: 1 Zimmer
  • Parkplätze: /
  • Parkplatz: /
  • Garage: /
  • Stockwerk: /
  • Immobilienansicht: /
  • Energieklasse: /
  • Anzahl der Aufrufe: /
Immobiliendetails
Typ
Wohnung
Fläche
40 m2
Grundstücksfläche
15 m2
Zimmer
1 Zimmer
Badezimmer
1 Zimmer
Parkplätze
/
Parkplatz
/
Garage
/
Stockwerk
/
Immobilienansicht
/
Energieklasse
/
Anzahl der Aufrufe
/
Kartenansicht
  • Ort
    NOVIGRAD
  • Region
    ISTARSKA
Agenturinfo
REN nekretnine
Verkäufer kontaktieren
+
=