Novalja – Zweizimmerwohnung im zweiten Stock Novalja – Zweizimmerwohnung im zweiten Stock

263.000 €

Ausstattung
  • 62 m2
  • 3
  • 1
Lage

NOVALJA

Beschreibung
NOVALJA – NEUBAU | 400 m VOM MEER ENTFERNT | FERTIGSTELLUNG 04/2027

Zum Angebot steht ein erstklassiges Projekt eines modernen Neubaus in Novalja, gelegen an einer ruhigen und attraktiven Lage, nur ca. 400 Meter vom Meer und 700 Meter vom Stadtzentrum entfernt.

Es handelt sich um ein kleines Wohngebäude mit insgesamt 6 Wohneinheiten, was den zukünftigen Eigentümern zusätzliche Privatsphäre und Ruhe garantiert. Das Projekt wurde mit Schwerpunkt auf Funktionalität, modernem Design und maximaler Raumausnutzung konzipiert, mit viel natürlichem Licht und einer hochwertigen Grundrissgestaltung. Die Wohnungen sind sorgfältig geplant, um sowohl den Bedürfnissen des ganzjährigen Wohnens als auch der touristischen Vermietung gerecht zu werden, was diese Immobilie zu einer ausgezeichneten Investitionsmöglichkeit macht.

Die geplante Fertigstellung des Baus ist April 2027.

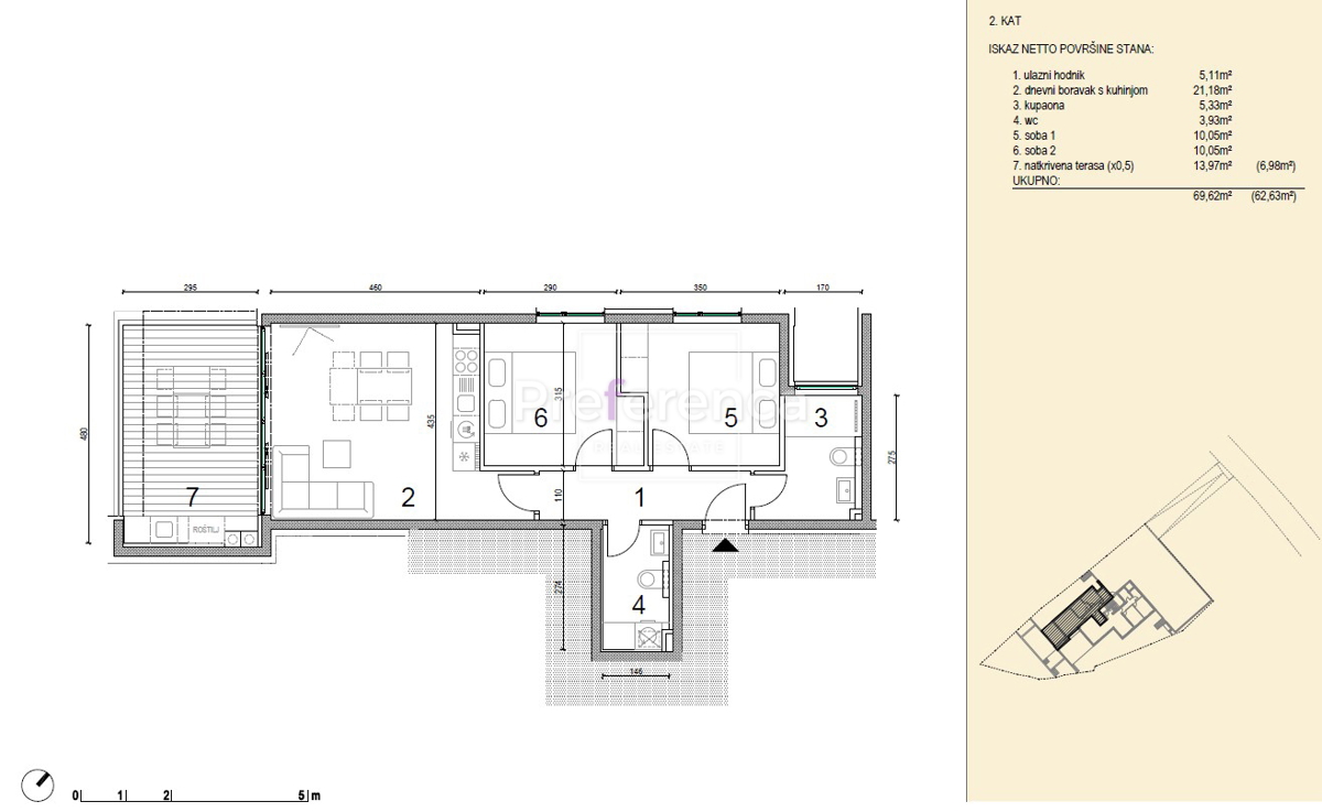
WOHNUNG S1 – 1. OBERGESCHOSS

Gesamtfläche: 69,65 m2 (berechnet 62,66 m2)

Zugehöriger Parkplatz: 12,50 m2

Flächenaufteilung:

- Eingangshalle – 5,11 m2
- Wohnzimmer mit Küche – 21,21 m2
- Badezimmer – 5,33 m2
- WC – 3,93 m2
- Zimmer 1 – 10,05 m2
- Zimmer 2 – 10,05 m2
- überdachte Terrasse – 13,97 m2 (berechnet 6,98 m2)

Beschreibung:

Die Wohnung S1 befindet sich im ersten Obergeschoss und stellt eine ideale Verbindung von Funktionalität und Komfort dar. Der dreizimmerige Grundriss mit zwei Schlafzimmern und getrennten Sanitäreinheiten ermöglicht einen angenehmen Aufenthalt sowohl für Familien als auch für touristische Vermietung. Das Wohnzimmer mit Küche ist als offener Raum gestaltet und bietet Zugang zur überdachten Terrasse, die zusätzlichen Raum zum Entspannen und Aufenthalt im Freien bietet. Zur Wohnung gehört ein Parkplatz, was den praktischen Nutzen und den Wert der Immobilie zusätzlich erhöht.
Dank der ausgezeichneten Lage, der Qualität des Projekts und des funktionalen Grundrisses stellt diese Wohnung eine sichere und attraktive Investition in einen Neubau in Novalja dar.

Übersicht
  • Typ: Wohnung
  • Fläche: 62 m2
  • Grundstücksfläche: / m2
  • Zimmer: 3 Zimmer
  • Badezimmer: 1 Zimmer
  • Parkplätze: /
  • Parkplatz: 12
  • Garage: /
  • Stockwerk: 2
  • Immobilienansicht: /
  • Energieklasse: /
  • Anzahl der Aufrufe: /
Immobiliendetails
Typ
Wohnung
Fläche
62 m2
Grundstücksfläche
/ m2
Zimmer
3 Zimmer
Badezimmer
1 Zimmer
Parkplätze
/
Parkplatz
12
Garage
/
Stockwerk
2
Immobilienansicht
/
Energieklasse
/
Anzahl der Aufrufe
/
Kartenansicht
  • Ort
    NOVALJA
  • Region
    LIČKO-SENJSKA
Agenturinfo
RealEstate Novalja
Verkäufer kontaktieren
RealEstate Novalja
Zorica Tamarut
+
=