Neues, modernes Haus mit Swimmingpool – Region Medulin Neues, modernes Haus mit Swimmingpool – Region Medulin

550.000 €

Ausstattung
  • 180 m2
  • 4
  • 2
Lage

LIŽNJAN

Beschreibung
Region Medulin, Istrien

Nur wenige Autominuten vom schönen Pula entfernt, in einem ruhigen Dorf nahe dem malerischen Medulin, steht ein modernes Doppelhaus in angenehmer mediterraner Umgebung zum Verkauf. Die Lage ist bekannt für ihre unberührte Natur, die entspannte Atmosphäre und das authentische istrische Flair, das den Alltag äußerst angenehm macht und sich auch hervorragend für die touristische Vermietung eignet. Die Nähe zu wunderschönen Stränden, kristallklarem Meer und gepflegten Promenaden bietet die ideale Balance zwischen Privatsphäre und der guten Erreichbarkeit aller Annehmlichkeiten wie Restaurants, Geschäften und Freizeiteinrichtungen.

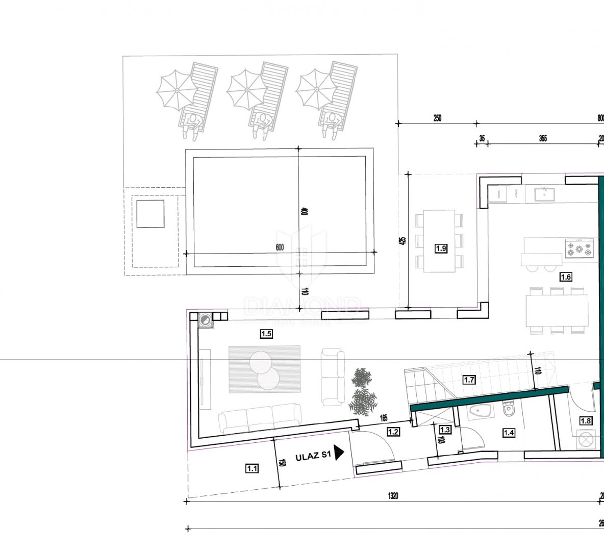
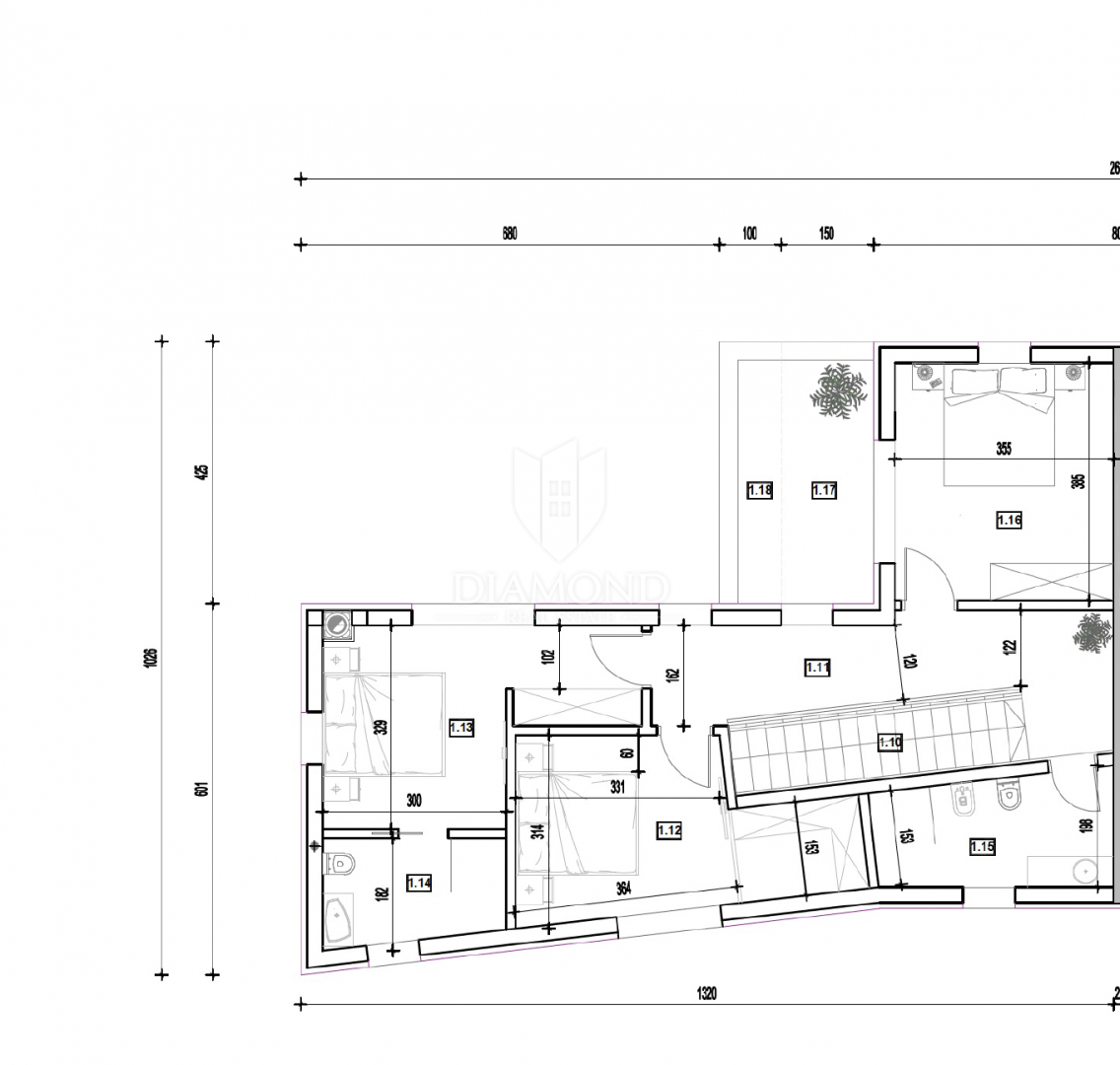
Dieses brandneue Doppelhaus erstreckt sich über zwei Etagen und wurde sorgfältig geplant, um maximalen Wohnkomfort und Funktionalität zu bieten. Im Erdgeschoss befinden sich ein geräumiges Wohnzimmer mit offenem Essbereich und Küche sowie ein zusätzliches Badezimmer und ein praktischer Abstellraum. Im Obergeschoss befinden sich drei komfortable Schlafzimmer und ein Badezimmer. Eines der Zimmer bietet einen teilweisen Meerblick. Das Haus ist vollklimatisiert. Besonders hervorzuheben sind der eigene Swimmingpool mit gepflasterter Sonnenterrasse und der umzäunte Garten, der Privatsphäre und Sicherheit bietet. Vor dem Haus befinden sich zwei umzäunte Parkplätze mit automatischem Tor.

Wenn Sie eine moderne Immobilie in Meeresnähe suchen, sei es für ein komfortables Familienleben oder als sichere Kapitalanlage zur touristischen Vermietung, bietet Ihnen dieses Haus eine hervorragende Gelegenheit. Für weitere Informationen und zur Vereinbarung eines Besichtigungstermins kontaktieren Sie uns bitte und überzeugen Sie sich selbst von den Vorzügen dieser Immobilie in der attraktiven Umgebung von Medulin.
Übersicht
  • Typ: Haus
  • Fläche: 180 m2
  • Grundstücksfläche: 400 m2
  • Zimmer: 4 Zimmer
  • Badezimmer: 2 Zimmer
  • Parkplätze: /
  • Parkplatz: 1
  • Garage: /
  • Stockwerk: /
  • Immobilienansicht: aufs Meer
  • Energieklasse: /
  • Anzahl der Aufrufe: /
Immobiliendetails
Typ
Haus
Fläche
180 m2
Grundstücksfläche
400 m2
Zimmer
4 Zimmer
Badezimmer
2 Zimmer
Parkplätze
/
Parkplatz
1
Garage
/
Stockwerk
/
Immobilienansicht
aufs Meer
Energieklasse
/
Anzahl der Aufrufe
/
Kartenansicht
  • Ort
    LIŽNJAN
  • Region
    ISTARSKA
Agenturinfo
DIAMOND Real Estate
Verkäufer kontaktieren
DIAMOND Real Estate
Robert Pinzan
+
=